River Life

Eladó ikerház
Dunavarsány

98 000 000 Ft98 M Ft 1 031 579 Ft/m2
4 szoba
95 m²
építés éve:2025

Részletes adatok

Telekméret: 870 m2
Fűtés: Egyéb
Energetikai besorolás: Nem adta meg a hirdető

Az OTP Bank lakáshitel ajánlataFizetett hirdetés

3624769707
Kosik Henrietta
referens

Érdekel az OTP Bank kedvezményes lakáshitel ajánlata? *

* A kérdésre „Igen” válasz bejelölése esetén, az „Üzenet küldése” gombra kattintva kijelentem, hogy az OTP Bank Nyrt. Adatkezelési tájékoztatójának tartalmát megismertem és tudomásul vettem.

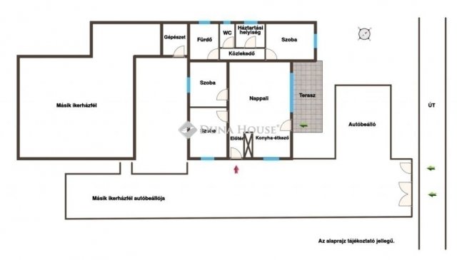
Eladó ikerház leírása

Dunavarsány kertvárosi, fejlődő környékén kínálok megvételre egy újépítésű, 95 nm-es téglafalazatú ikerházfelet.

Az ingatlan elrendezése rendkívül praktikus: amerikai konyhás nappali, három hálószoba, előtér, fürdőszoba, külön WC és háztartási helyiség alkotják a belső tereket. A gépészeti helyiség a másik ikerházfélhez kapcsolódik. A házhoz egy körülbelül 16 m²-es nyitott terasz is tartozik, illetve egy saját autóbeálló.

Műszaki tartalom:
- Falazat: 30 cm vastag vázkerámia tégla, rajta 10 cm-es szigeteléssel
- Fa födémszerkezet, rajta 30 cm szálas hőszigetelés
- Homlokzat: fehér dörzsölt vakolat
- Lábazat: barna színű, dörzsölt fagyálló vakolat
- Tetőfedés: barna beton cserép
- Nyílászárók: barna színű műanyag ablakok, 3 rétegű hőszigetelő üvegezéssel
- Fűtés: levegő-víz hőszivattyús rendszer
- Klíma: 2 db inverteres klímaberendezés beépítve

A burkolatok és szaniterek egyedi ízlés szerint alakíthatók:
Melegburkolat: bruttó 6.000 Ft/m²-ig
Hidegburkolat: bruttó 8.000 Ft/m²-ig
Szaniterek: összesen 400.000 Ft értékhatárig, igény szerint kiválaszthatók

Az ár a kulcsrakész állapotra értendő.
Átadás: 2026. III. negyedév

A környék nyugodt, kertvárosias hangulatú. Néhány percre található egy horgásztó, a település központja, üzletek, óvoda, iskola, és a Budapest felé közlekedő vonatállomás is könnyen elérhető.

További kérdés esetén állok szíves rendelkezésükre.

Referencia szám: HZ047851

Hirdetés feltöltve: 2026. 03. 12. Utoljára módosítva: 2026. 04. 01.

4 szobás ikerházak ára Dunavarsányban

Ebből az összehasonlításból megtudhatod, hogyan viszonyul a lakás ára a környékbeli ikerházak átlagos árához. Ez nem azt jelenti, hogy ennyivel olcsóbb vagy drágább, mint amennyit a lakás ér, hanem hogy ennyivel tér el a környékbeli átlagtól.

Ennek a m² ára
Dunavarsány m² ár
1032 e Ft
994 e Ft -4%
Ennek az ára
Dunavarsány átlagár
98 M Ft m Ft
102.1 m Ft 4%

Az ingatlan elhelyezkedése

Cím: Dunavarsány

Eladó ikerházak a környékről

Budakalász
Eladó ikerház

Budakalász

159 M Ft
6 szoba
140 m²
Vác
Eladó ikerház

Vác

149.9 M Ft
5 szoba
202 m²
Dunavarsány
Eladó ikerház

Dunavarsány

99.8 M Ft
4 szoba
93 m²
Szentendre
Eladó ikerház

Szentendre

359 M Ft
5 + 1 szoba
289 m²
Szentendre
Eladó ikerház

Szentendre

718 M Ft
10 + 2 szoba
578 m²
Dunavarsány
Eladó ikerház

Dunavarsány

120 M Ft
5 szoba
118 m²
Dunavarsány
Eladó ikerház

Dunavarsány

98 M Ft
4 szoba
96 m²
Dunavarsány
Eladó ikerház

Dunavarsány

99 M Ft
522 m²
138 m²
Nagytarcsa
Eladó ikerház

Nagytarcsa

119.9 M Ft
4 szoba
103 m²
Dunavarsány
Eladó ikerház

Dunavarsány

98 M Ft
4 szoba
95 m²
Pomáz
Eladó ikerház

Pomáz

129.5 M Ft
4 szoba
100 m²
Dunavarsány
Eladó ikerház

Dunavarsány

90 M Ft
5 szoba
102 m²
Kiskunlacháza
Eladó ikerház

Kiskunlacháza

44.9 M Ft
2 szoba
39 m²
Vácrátót
Eladó ikerház

Vácrátót

99.9 M Ft
3 + 2 szoba
112 m²
Dunavarsány
Eladó ikerház

Dunavarsány

99.9 M Ft
5 szoba
118 m²
Vác
Eladó ikerház

Vác

96.7 M Ft
4 + 1 szoba
126 m²
Pécel, Pécel - kertváros
Eladó ikerház

Pécel

127 M Ft
4 szoba
125 m²
Herceghalom
Eladó ikerház

Herceghalom

135 M Ft
5 szoba
134 m²
Dunavarsány
Eladó ikerház

Dunavarsány

99.6 M Ft
4 szoba
115 m²
Vác
Eladó ikerház

Vác

99.7 M Ft
4 + 1 szoba
129 m²
Dunavarsány
Eladó ikerház

Dunavarsány

99.6 M Ft
4 szoba
115 m²
Dunavarsány
Eladó ikerház

Dunavarsány

99.8 M Ft
4 szoba
93 m²
Szentendre
Eladó ikerház

Szentendre

179 M Ft
5 + 1 szoba
147 m²
Mogyoród
Eladó ikerház

Mogyoród

135 M Ft
5 szoba
137 m²

Falusi CSOK ingatlanok

Kocsér
Eladó családi ház

Kocsér

17.9 M Ft
1 + 2 szoba
73 m²
Csesztreg
Eladó családi ház

Csesztreg

53 M Ft
4 szoba
78 m²
Szigetcsép
Eladó családi ház

Szigetcsép

110 M Ft
3 szoba
137 m²
Balatonszepezd
Eladó családi ház

Balatonszepezd

299 M Ft
5 szoba
220 m²
Tápióbicske
Eladó ikerház

Tápióbicske

93.5 M Ft
7 szoba
136 m²
Darnózseli
Eladó családi ház

Darnózseli

69.9 M Ft
4 szoba
104 m²
Nagykarácsony
Eladó családi ház

Nagykarácsony

34.9 M Ft
3 szoba
112 m²
Recsk
Eladó családi ház

Recsk

59 M Ft
2 szoba
70 m²