Astora Art House

Eladó ikerház
Diósd

+ 6 kép 1/9
185 000 000 Ft185 M Ft 1 088 235 Ft/m2
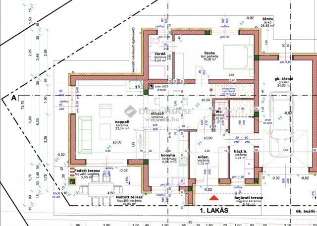
5 szoba
170 m²
építés éve:2024

Részletes adatok

Telekméret: 535 m2
Fűtés: Egyéb
Energetikai besorolás: Nem adta meg a hirdető

Az OTP Bank lakáshitel ajánlataFizetett hirdetés

+36 1 690
Drevnó Béla
Duna House Kispest

Érdekel az OTP Bank kedvezményes lakáshitel ajánlata? *

* A kérdésre „Igen” válasz bejelölése esetén, az „Üzenet küldése” gombra kattintva kijelentem, hogy az OTP Bank Nyrt. Adatkezelési tájékoztatójának tartalmát megismertem és tudomásul vettem.

Eladó ikerház leírása

RING LIGET LUXUS LAKÓPARK AZ ERDŐ KÖZELSÉGÉBEN!
MAGAS MŰSZAKI TARTALOMMAL ÉPÜLŐ ÖNÁLLÓ CSALÁDI HÁZAK ÉS IKERHÁZAK ELADÓAK!
1.8 HEKTÁROS TERÜLETÉN, MELY KÖZIGAZGATÁSILAG DIÓSDHOZ TARTOZIK , ÖSSZESEN 16 KÉTLAKÁSOS ÉS 1 EGYLAKÁSOS LAKÓÉPÜLET KERÜL MEGÉPÍTÉSRE, 2 Ütemben. Az első ütemben 7 kétlakásos és 3 egylakásos épül, amiből már 3 db ingatlan elkelt.

Most Öné lehet idén bevezető áron egy nettó 170 m2-es, 2 szintes ikerház. A két lakás CSAK GARÁZZSAL ÉRINTKEZIK. Az ott megépülő, új ingatlanokat egy saját, térkövezett, sorompóval lezárt utcáról lehet majd megközelíteni.
Tágas, világos terek köszönhetően az egyedi, jó méretű nyílászáróknak.
Hozzá tartozó telek mérete 535 m2.

Foglalja le már most leendő otthonát 10%-al. Az építkezés hamarosan kezdetét veszi, így saját ízlése és igénye szerint választhatja ki a ház belső kinézetét, illetve végig követheti az építkezést.
Amennyiben egyedi igényei lennének az elosztással kapcsolatban, a kivitelező rugalmas a változtatásokra.
A Duna House teljes kínálatával kapcsolatban forduljanak hozzám bizalommal!

Bankfüggetlen pénzügyi szakembereink tanácsadással, ügyintézéssel tudják segíteni Önöket álmaik, céljaik megvalósításában!

Vegye igénybe díjmentes konzultációinkat!

https://www.facebook.com/otthonkonnyeden

Referencia szám: HZ077770

Hirdetés feltöltve: 2026. 04. 28.

5 szobás ikerházak ára Diósdon

Ebből az összehasonlításból megtudhatod, hogyan viszonyul a lakás ára a környékbeli ikerházak átlagos árához. Ez nem azt jelenti, hogy ennyivel olcsóbb vagy drágább, mint amennyit a lakás ér, hanem hogy ennyivel tér el a környékbeli átlagtól.

Ennek a m² ára
Diósd m² ár
1088 e Ft
1053 e Ft -3%
Ennek az ára
Diósd átlagár
185 M Ft m Ft
177 m Ft -5%

Az ingatlan elhelyezkedése

Cím: Diósd

Eladó ikerházak a környékről

Diósd
Eladó ikerház

Diósd

179.9 M Ft
5 szoba
179 m²
Vác
Eladó ikerház

Vác

149.9 M Ft
5 szoba
202 m²
Vác
Eladó ikerház

Vác

96.7 M Ft
4 + 1 szoba
126 m²
Pomáz
Eladó ikerház

Pomáz

129.5 M Ft
4 szoba
100 m²
Diósd
Eladó ikerház

Diósd

197 M Ft
4 + 1 szoba
179 m²
Kiskunlacháza
Eladó ikerház

Kiskunlacháza

44.9 M Ft
2 szoba
39 m²
Pécel, Pécel - kertváros
Eladó ikerház

Pécel

127 M Ft
4 szoba
125 m²
Diósd
Eladó ikerház

Diósd

197 M Ft
4 + 1 szoba
179 m²
Érd
Eladó ikerház

Érd

177.7 M Ft
7 szoba
181 m²
Diósd
Eladó ikerház

Diósd

206.25 M Ft
5 szoba
184 m²
Diósd
Eladó ikerház

Diósd

185 M Ft
5 szoba
170 m²
Diósd
Eladó ikerház

Diósd

197 M Ft
4 + 1 szoba
179 m²
Diósd
Eladó ikerház

Diósd

213.46 M Ft
5 szoba
186 m²
Szentendre
Eladó ikerház

Szentendre

179 M Ft
5 + 1 szoba
147 m²
Nagytarcsa
Eladó ikerház

Nagytarcsa

119.9 M Ft
4 szoba
103 m²
Herceghalom
Eladó ikerház

Herceghalom

99 M Ft
4 szoba
106 m²
Diósd
Eladó ikerház

Diósd

279 M Ft
6 szoba
242 m²
Herceghalom
Eladó ikerház

Herceghalom

148 M Ft
5 szoba
134 m²
Szentendre
Eladó ikerház

Szentendre

359 M Ft
5 + 1 szoba
289 m²
Szentendre
Eladó ikerház

Szentendre

718 M Ft
10 + 2 szoba
578 m²
Diósd
Eladó ikerház

Diósd

196.5 M Ft
4 + 1 szoba
179 m²
Pécel
Eladó ikerház

Pécel

369 M Ft
11 szoba
430 m²
Diósd
Eladó ikerház

Diósd

199 M Ft
5 szoba
186 m²
Mogyoród
Eladó ikerház

Mogyoród

129 M Ft
5 szoba
123 m²

Falusi CSOK ingatlanok

Fülöpszállás
Eladó családi ház

Fülöpszállás

299 M Ft
14 + 5 szoba
680 m²
Tápióbicske
Eladó családi ház

Tápióbicske

79.9 M Ft
3 szoba
160 m²
Badacsonytomaj
Eladó családi ház

Badacsonytomaj

285 M Ft
4 szoba
230 m²
Badacsonytördemic
Eladó családi ház

Badacsonytördemic

90 M Ft
3 szoba
130 m²
Pakod
Eladó családi ház

Pakod

19.9 M Ft
2 szoba
65 m²
Seregélyes
Eladó családi ház

Seregélyes

75 M Ft
6 szoba
160 m²
Marcalgergelyi
Eladó családi ház

Marcalgergelyi

31 M Ft
2 + 1 szoba
120 m²
Nagyberki
Eladó családi ház

Nagyberki

39.9 M Ft
5 szoba
170 m²