City Pearl

Eladó ikerház
Dánszentmiklós

1/2
89 900 000 Ft89.9 M Ft 832 407 Ft/m2
4 szoba
108 m2
építés éve:2025

Részletes adatok

Telekméret: 1550 m2
Fűtés: Egyéb
Energetikai besorolás: Nem adta meg a hirdető

Az OTP Bank lakáshitel ajánlataFizetett hirdetés

3629619084
Rizmayer Mária
referens

Érdekel az OTP Bank kedvezményes lakáshitel ajánlata? *

* A kérdésre „Igen” válasz bejelölése esetén, az „Üzenet küldése” gombra kattintva kijelentem, hogy az OTP Bank Nyrt. Adatkezelési tájékoztatójának tartalmát megismertem és tudomásul vettem.

Eladó ikerház leírása

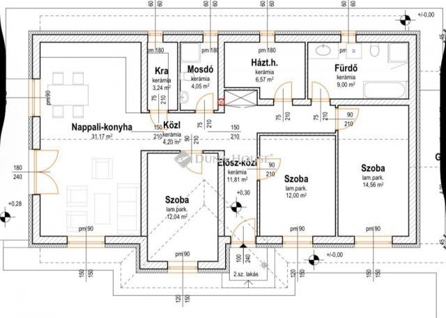
BUDAPESTTŐL MINDÖSSZE 40 PERCRE !!!Dánszentmiklóson csendes , rendezett kis utcában kínálom megvételre ezt a 108 nm alapterülettel rendelkező Amerikai konyhás nappali+ 3 hálószobásúj építésű ikerház felet.Az ingatlan várható átadása 2026 08 hó.Az ingatlan hasznos alapterülete 108 nmKialakítása-Amerikai konyhás nappali-3 db hálószoba-fürdőszoba-wc-háztartási helység-közlekedőMűszaki leírás-Vasalt beton alap-30-as Leier tégla , 10 cm tégla válasz falak15 cm hungarocell szigetelés , nemes vakolat záró réteggelBramac tetőcserép ( 20 cm födém szigetelés )Az ingatlan fűtése : hőszivattyú padlón keresztül történő hőleadással-3 rétegű fehér műanyag ablakokSzaniterek és beltéri ajtók a vételárbanHideg/Meleg burkolatok 6000 Ft/ nm -ig választhatóak.1 db 3,5 Kw hűtő - fűtő klímaMegtekintéskor a teljes műszaki tartalmat prezentálom
Érd.: Rizmayer Mária +36202114504 email: rizmayer.maria@dh.hu

Referencia szám: HZ033751

Hirdetés feltöltve: 2025. 11. 28. Utoljára módosítva: 2026. 01. 22.

Az ingatlan elhelyezkedése

Cím: Dánszentmiklós

Eladó ikerházak a környékről

Eladó ikerház
Eladó ikerház

Diósd

206.25 M Ft
5 szoba
184 m2
Eladó ikerház
Eladó ikerház

Dánszentmiklós

38.88 M Ft
2 szoba
48 m2
Eladó ikerház
Eladó ikerház

Vác

175.356 M Ft
5 szoba
165 m2
Eladó ikerház
Eladó ikerház

Mogyoród, Fóti út

188 M Ft
6 szoba
182 m2
Eladó ikerház
Eladó ikerház

Dánszentmiklós

66.5 M Ft
3 szoba
80 m2
Eladó ikerház
Eladó ikerház

Diósd

213.46 M Ft
5 szoba
186 m2
Eladó ikerház
Eladó ikerház

Pécel

149.9 M Ft
5 szoba
306 m2
Eladó ikerház
Eladó ikerház

Vác

99.7 M Ft
4 + 1 szoba
129 m2
Eladó ikerház
Eladó ikerház

Dánszentmiklós

60.75 M Ft
2 szoba
75 m2
Eladó ikerház
Eladó ikerház

Pécel, Pécel - kertváros

127 M Ft
4 szoba
125 m2
Eladó ikerház
Eladó ikerház

Vác

149.9 M Ft
5 szoba
202 m2
Eladó ikerház
Eladó ikerház

Veresegyház

145 M Ft
4 szoba
120 m2
Eladó ikerház
Eladó ikerház

Dánszentmiklós

58.5 M Ft
3 szoba
78 m2
Eladó ikerház
Eladó ikerház

Dánszentmiklós

38.88 M Ft
2 szoba
48 m2
Eladó ikerház
Eladó ikerház

Szentendre

359 M Ft
5 + 1 szoba
289 m2
Eladó ikerház
Eladó ikerház

Dánszentmiklós

48.6 M Ft
2 szoba
60 m2
Eladó ikerház
Eladó ikerház

Dánszentmiklós

42.9 M Ft
2 szoba
53 m2
Eladó ikerház
Eladó ikerház

Dánszentmiklós

56.9 M Ft
4 szoba
67 m2
Eladó ikerház
Eladó ikerház

Dánszentmiklós, Dózsa György utca

55 M Ft
3 szoba
60 m2
Eladó ikerház
Eladó ikerház

Dánszentmiklós, Kossuth Lajos utca

89.9 M Ft
4 szoba
108 m2
Eladó ikerház
Eladó ikerház

Dánszentmiklós

38.88 M Ft
2 szoba
48 m2
Eladó ikerház
Eladó ikerház

Mogyoród

135 M Ft
5 szoba
137 m2
Eladó ikerház
Eladó ikerház

Pécel, Pécel

144.9 M Ft
6 szoba
200 m2
Eladó ikerház
Eladó ikerház

Dánszentmiklós

48.6 M Ft
2 szoba
60 m2

Falusi CSOK ingatlanok

Eladó családi ház
Eladó családi ház

Törtel

32.9 M Ft
3 szoba
68 m2
Eladó családi ház
Eladó családi ház

Nyékládháza, Mátyás király utca

34.9 M Ft
2 szoba
88 m2
Eladó családi ház
Eladó családi ház

Sükösd

40 M Ft
3 szoba
112 m2
Eladó családi ház
Eladó családi ház

Újlengyel

110 M Ft
4 szoba
121 m2
Eladó családi ház
Eladó családi ház

Bag

16.9 M Ft
6 szoba
160 m2
Eladó családi ház
Eladó családi ház

Gönyű, Kossuth Lajos utca

77.9 M Ft
3 szoba
80 m2
Eladó családi ház
Eladó családi ház

Törtel

39 M Ft
1 + 1 szoba
118 m2
Eladó családi ház
Eladó családi ház

Bezenye

84.9 M Ft
4 szoba
139 m2