Astora Art House

Eladó ikerház
Budapest, XXII. kerület

+ 4 kép 1/7
149 000 000 Ft149 M Ft 1 693 182 Ft/m2
4 szoba
88 m²
építés éve:2026

Részletes adatok

Telekméret: 250 m2
Fűtés: Egyéb
Parkolás: Kocsibeálló
Energetikai besorolás: A

Az OTP Bank lakáshitel ajánlataFizetett hirdetés

+36 30 638
László István
referens

Érdekel az OTP Bank kedvezményes lakáshitel ajánlata? *

* A kérdésre „Igen” válasz bejelölése esetén, az „Üzenet küldése” gombra kattintva kijelentem, hogy az OTP Bank Nyrt. Adatkezelési tájékoztatójának tartalmát megismertem és tudomásul vettem.

Eladó ikerház leírása

Eladásra kínálunk Budapest XXII. kerületében Budafokon 250 m2-es kerttel rendelkező belső kétszintes, dupla komfortos, nappali + 3 szobás, összesen 87,5 m2 nettó hasznos lakóterülettel rendelkező, új építésű ikerházat.

Az ingatlan leköthető 2 db. gépkocsibeállóval - igény szerinti befejezéssel.

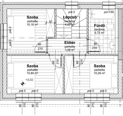
Elrendezés:

Földszint: nettó 41.93 m2 + terasz

• Nappali 18.26 m2
• Konyha - étkező 11.58 m2
• Előszoba 5.15 m2
• Mosdó 5.27 m2
• Háztartási h. 5.02 m2
• Terasz 13 m2

Emelet: nettó 45,64 m2

• 3 szoba 10.8 m2, 10.26 m2, 10.16 m2
• Fürdőszoba + mosdó 6.72 m2
• Előszoba 3,08 m2
• Lépcső 4,62 m2

Kert:
• 200 m2
• 2 db. autóbeálló

Műszaki paraméterek – szerkezeti leírás (részlet):
Beton sávalap. Tégla főfalak + 15 cm dryvit szigetelés.Tégla válaszfalak. Műanyag külső nyílászárók hőszigetelt üvegezéssel. Belső nyílászárók dekorfóliás ajtók. Cserép fedésű tető.

Fűtés: Az épület fűtését hőszivattyús rendszer látja el, minden helyiségben padlófűtés található.
Hideg-meleg burkolatok kiválaszthatók a műszaki leírásban rögzített árak szerint.

Tapasztalt - megbízható generál kivitelező munkájával készül a ház - referencia ingatlanjai megtekinthetőek!

Kiváló lokációval rendelkezik az ingatlan. A közelben található iskola – óvoda – bölcsőde – bevásárlóközpont.

Projekt átadás: 2026. november -december

Az ingatlant fiatal pároknak és családoknak egyaránt ajánljuk.

Amennyiben Önnek a vásárláshoz szüksége lenne hitelre egyedi kedvezménnyel,kezdeményezheti a kapcsolatfelvételt bankfüggetlen hitelügyintézőinkkel, teljesen DÍJMENTESEN.

Az ingatlan részletes ismertetése és bemutatása előre egyeztetett időpontban lehetséges, melyet nagyon rugalmasan kezelünk, akár HÉTVÉGÉN is.

Amennyiben felkeltette az érdeklődését, további kérdéseivel kapcsolatban várom jelentkezését! ...TOVÁBBI, TÖBBEZRES INGATLAN KÍNÁLAT: www.gdn-ingatlan.hu - GDN azonosító: 394014

Hirdetés feltöltve: 2026. 03. 24. Utoljára módosítva: 2026. 04. 13.

4 szobás ikerházak ára Budapesten

Ebből az összehasonlításból megtudhatod, hogyan viszonyul a lakás ára a környékbeli ikerházak átlagos árához. Ez nem azt jelenti, hogy ennyivel olcsóbb vagy drágább, mint amennyit a lakás ér, hanem hogy ennyivel tér el a környékbeli átlagtól.

Ennek a m² ára
XXII. kerület m² ár
Budapest m² ár
1693 e Ft
1446 e Ft -17%
1166 e Ft -45%
Ennek az ára
XXII. kerület átlagár
Budapest átlagár
149 M Ft m Ft
222 m Ft 33%
166.3 m Ft 10%

Az ingatlan elhelyezkedése

Cím: Budapest, XXII. kerület

Eladó ingatlanok a környékről

XI. kerület, Kőérberek, Kánai út 31
Eladó téglalakás

Budapest, XI. kerület

125.99 M Ft
3 szoba
63 m²
XXII. kerület
Eladó ikerház

Budapest, XXII. kerület

266.75 M Ft
4 szoba
191 m²
XI. kerület, Kőérberek, Kánai út 31
Eladó téglalakás

Budapest, XI. kerület

156.49 M Ft
4 szoba
90 m²
XXII. kerület
Eladó ikerház

Budapest, XXII. kerület

315.13 M Ft
5 szoba
227 m²
XXII. kerület
Eladó ikerház

Budapest, XXII. kerület

266.25 M Ft
4 szoba
191 m²
XI. kerület, Kőérberek, Kánai út 31
Eladó téglalakás

Budapest, XI. kerület

130.99 M Ft
3 szoba
60 m²
XXII. kerület
Eladó ikerház

Budapest, XXII. kerület

229.99 M Ft
4 szoba
151 m²
XI. kerület, Kőérberek, Kánai út 31
Eladó téglalakás

Budapest, XI. kerület

117.49 M Ft
3 szoba
63 m²
XXII. kerület
Eladó ikerház

Budapest, XXII. kerület

164.9 M Ft
5 + 1 szoba
139 m²
XI. kerület, Kőérberek, Kánai út 31
Eladó téglalakás

Budapest, XI. kerület

121.99 M Ft
3 szoba
61 m²
XXII. kerület
Eladó ikerház

Budapest, XXII. kerület

229.999 M Ft
4 szoba
150 m²
XXII. kerület
Eladó ikerház

Budapest, XXII. kerület

232.7 M Ft
3 + 1 szoba
184 m²
XI. kerület, Kőérberek, Kánai út 31
Eladó téglalakás

Budapest, XI. kerület

135.99 M Ft
3 szoba
68 m²
XI. kerület, Kőérberek, Kánai út 31
Eladó téglalakás

Budapest, XI. kerület

179.99 M Ft
4 szoba
88 m²
XXII. kerület
Eladó ikerház

Budapest, XXII. kerület

315.13 M Ft
5 szoba
227 m²
XXII. kerület
Eladó ikerház

Budapest, XXII. kerület

139.96 M Ft
7 szoba
170 m²
XXII. kerület
Eladó ikerház

Budapest, XXII. kerület

168 M Ft
5 szoba
160 m²
XXII. kerület
Eladó ikerház

Budapest, XXII. kerület

581.88 M Ft
9 szoba
416 m²
XI. kerület, Kőérberek, Kánai út 31
Eladó téglalakás

Budapest, XI. kerület

170.99 M Ft
4 szoba
88 m²
XI. kerület, Kőérberek, Kánai út 31
Eladó téglalakás

Budapest, XI. kerület

101.99 M Ft
2 szoba
49 m²
XI. kerület, Kőérberek, Kánai út 31
Eladó téglalakás

Budapest, XI. kerület

254.99 M Ft
5 szoba
118 m²
XI. kerület, Kőérberek, Kánai út 31
Eladó téglalakás

Budapest, XI. kerület

145.99 M Ft
3 szoba
63 m²
XI. kerület, Kőérberek, Kánai út 31
Eladó téglalakás

Budapest, XI. kerület

88.49 M Ft
2 szoba
46 m²
XI. kerület, Kőérberek, Kánai út 31
Eladó téglalakás

Budapest, XI. kerület

204.99 M Ft
4 szoba
85 m²

Falusi CSOK ingatlanok

Nyírjákó
Eladó családi ház

Nyírjákó

19 M Ft
3 szoba
115 m²
Villány
Eladó családi ház

Villány

65 M Ft
3 szoba
95 m²
Csabacsűd
Eladó családi ház

Csabacsűd

21 M Ft
3 szoba
125 m²
Hegyeshalom, Margaréta utca 12
Eladó téglalakás

Hegyeshalom

32.89 M Ft
1 szoba
27 m²
Németkér
Eladó családi ház

Németkér

149.9 M Ft
2 szoba
540 m²
Tóalmás
Eladó családi ház

Tóalmás

38.9 M Ft
3 szoba
62 m²
Jobbágyi
Eladó családi ház

Jobbágyi

399 M Ft
6 + 1 szoba
200 m²
Bag
Eladó családi ház

Bag

110 M Ft
5 szoba
320 m²