Seven Pearl

Eladó ikerház
Budapest, XXII. kerület

+ 4 kép 1/7
169 000 000 Ft169 M Ft 1 251 852 Ft/m2
5 szoba
135 m²
építés éve:2026

Részletes adatok

Telekméret: 394 m2
Fűtés: Egyéb
Parkolás: Garázs
Energetikai besorolás: Nem adta meg a hirdető

Az OTP Bank lakáshitel ajánlataFizetett hirdetés

+36 30 250
Nyegrutz Tibor
referens

Érdekel az OTP Bank kedvezményes lakáshitel ajánlata? *

* A kérdésre „Igen” válasz bejelölése esetén, az „Üzenet küldése” gombra kattintva kijelentem, hogy az OTP Bank Nyrt. Adatkezelési tájékoztatójának tartalmát megismertem és tudomásul vettem.

Eladó ikerház leírása

ÚJ AJÁNLAT A KÍNÁLATUNKBAN!

XXII. kerület Óhegy kertvárosias környezetében, összesen 788 m2-es telken épülő 2 db 135 m2-es hasznos alapterületű, 5 szobás, saját garázzsal rendelkező, nagy teraszos "A" és "B" jelű házat kínálunk megvételre.

Mindkét ház ALAPRAJZA, TELEK MÉRETE, KIVITELEZÉSE AZONOS !

A megvételre kínált:
"A" és "B" jelű ingatlan KULCSRAKÉSZ ÁRA : 169 millió Ft

Az ingatlanok saját 394 m2-es szeparált telek résszel, egyállásos garázzsal, térkövezett kocsibeállóval, külön mérőórákkal rendelkeznek.

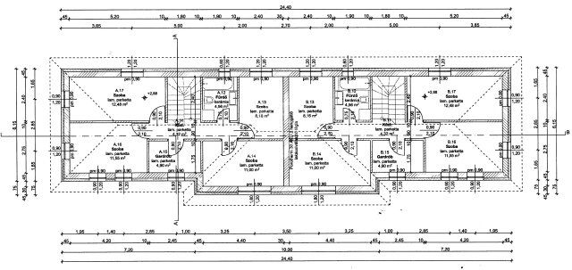
Helyiségei:
FÖLDSZINTEN: előszoba 3,68 m2, garázs 16,20 m2, fürdőszoba 5,76 m2,
amerikai nappali+konyha 34,75 m2, terasz 15,38 m2.

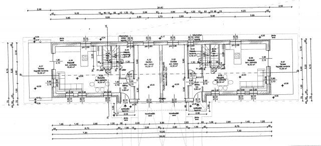
EMELETEN: közlekedő 4,32 m2, fürdőszoba 4,56 m2, 4 szoba (11,55 m2,
12,48 m2, 8,16 m2, 11 m2) plusz gardrób szoba 4,9 m2.

MÉRETEKET, ELRENDEZÉST lásd az ALAPRAJZOKON!

MŰSZAKI TARTALOM RÉSZLET:
-Porotherm 30-as falazat 15 cm külső homlokzati szigeteléssel
-25 cm tetőszigetelés, 12 cm lábazat xps szigetelés
-Leier betoncserép, csatorna rendszerrel
-3 rétegű üvegezéssel ellátott műanyag nyílászárók
-elektromos alumínium redőnyök szúnyoghálóval felszerelve
-minden helyiségben padlófűtés, helyiségenként szabályozható osztógyűjtővel
-Hőszivattyú 10 KW
-Vízmelegítő: ARISTON LYDOS HYBRID 100L hőszivattyús
-Villamos energia 1x32A, 2x16A H tarifás mérőórával
-2 db 3,5 KW hűtő-fűtő KLIMA berendezés
-szárnyas kerítés kiskapuval elektromos nyitás - zárás

Átadás előtt tereprendezésre kerül sor, építési törmelék elszállítás, talaj kiegyenlítéssel.

TERVEZETT ÁTADÁS IDŐPONTJA : 2026. szeptember 30.

A házak önálló mérőórákkal, használatbavételi engedéllyel, társasház alapító okirattal és H-tarifás villanyórával kerülnek átadásra.

A környék lokációja jó, közelben található iskola, óvoda, bölcsőde.
Bevásárlási lehetőségek autóval 5-10 percre ALDI, LIDL, CAMPONA bevásárlóközpont.
Autóbusz megállók sétatávolságra elérhetők (213,114,214,287)
Kelenföldi pályaudvar busszal 25 perc távolságra az ingatlantól.

Részletes műszaki dokumentációval rendelkezem !

Az ingatlan megtekintése előre egyeztetett időpontban lehetséges.
VÁROM HÍVÁSÁT, TOVÁBBI KÉRDÉSEIVEL KAPCSOLATBAN JELENTKEZÉSÉT !
(G.I.) ...TOVÁBBI, TÖBBEZRES INGATLAN KÍNÁLAT: www.gdn-ingatlan.hu - GDN azonosító: 392603

Hirdetés feltöltve: 2026. 02. 13. Utoljára módosítva: 2026. 02. 13.

5 szobás ikerházak ára Budapesten

Ebből az összehasonlításból megtudhatod, hogyan viszonyul a lakás ára a környékbeli ikerházak átlagos árához. Ez nem azt jelenti, hogy ennyivel olcsóbb vagy drágább, mint amennyit a lakás ér, hanem hogy ennyivel tér el a környékbeli átlagtól.

Ennek a m² ára
XXII. kerület m² ár
Budapest m² ár
1252 e Ft
1274 e Ft 2%
1194 e Ft -5%
Ennek az ára
XXII. kerület átlagár
Budapest átlagár
169 M Ft m Ft
199.5 m Ft 15%
209.8 m Ft 19%

Az ingatlan elhelyezkedése

Cím: Budapest, XXII. kerület

Eladó ingatlanok a környékről

XXII. kerület, Budafok
Eladó ikerház

Budapest, XXII. kerület

249.99 M Ft
4 szoba
151 m²
XXII. kerület
Eladó ikerház

Budapest, XXII. kerület

249.99 M Ft
4 szoba
151 m²
VI. kerület
Eladó téglalakás

Budapest, VI. kerület

180 M Ft
5 szoba
85 m²
XXII. kerület
Eladó ikerház

Budapest, XXII. kerület

581.88 M Ft
9 szoba
416 m²
VIII. kerület
Eladó téglalakás

Budapest, VIII. kerület

106.9 M Ft
2 + 2 szoba
95 m²
III. kerület, Csillaghegy, Pusztakúti út
Eladó telek

Budapest, III. kerület

500 M Ft
4839 m²
0 m²
I. kerület, Krisztinaváros, Logodi utca
Eladó iroda

Budapest, I. kerület

80 M Ft
60 m²
VI. kerület
Eladó téglalakás

Budapest, VI. kerület

74.3 M Ft
2 szoba
42 m²
VI. kerület
Eladó téglalakás

Budapest, VI. kerület

99.5 M Ft
2 szoba
53 m²
XV. kerület, Rákospalota
Eladó téglalakás

Budapest, XV. kerület

96.66 M Ft
3 szoba
65 m²
XXII. kerület, Budafok
Eladó ikerház

Budapest, XXII. kerület

315.13 M Ft
5 szoba
227 m²
I. kerület, Krisztinaváros, Logodi ut
Eladó iroda

Budapest, I. kerület

315 M Ft
303 m²
XXII. kerület, Budafok
Eladó ikerház

Budapest, XXII. kerület

249 M Ft
4 szoba
150 m²
IX. kerület
Eladó téglalakás

Budapest, IX. kerület

79.9 M Ft
2 szoba
52 m²
XXII. kerület, Nagytétény
Eladó ikerház

Budapest, XXII. kerület

130 M Ft
4 szoba
96 m²
VI. kerület, Belső Terézváros, Nagymező
Eladó téglalakás

Budapest, VI. kerület

59 M Ft
1 szoba
26 m²
XXI. kerület
Eladó téglalakás

Budapest, XXI. kerület

69.8 M Ft
3 szoba
67 m²
XXII. kerület, Budafok
Eladó ikerház

Budapest, XXII. kerület

168 M Ft
5 szoba
160 m²
XXI. kerület
Eladó panellakás

Budapest, XXI. kerület

49.5 M Ft
2 szoba
55 m²
XX. kerület, Gubacsipuszta
Eladó ikerház

Budapest, XX. kerület

59 M Ft
1 szoba
38 m²
XXII. kerület, Budafok
Eladó téglalakás

Budapest, XXII. kerület

82.5 M Ft
2 + 1 szoba
55 m²
XXII. kerület, Budatétény
Eladó ikerház

Budapest, XXII. kerület

266.25 M Ft
4 szoba
191 m²
XXII. kerület
Eladó ikerház

Budapest, XXII. kerület

266.75 M Ft
4 szoba
191 m²
VI. kerület, Belső Terézváros, Teréz körút
Eladó téglalakás

Budapest, VI. kerület

65 M Ft
1 + 1 szoba
35 m²

Falusi CSOK ingatlanok

Nagyszentjános
Eladó téglalakás

Nagyszentjános

74.9 M Ft
4 szoba
117 m²
Vásárosdombó
Eladó családi ház

Vásárosdombó

14.99 M Ft
2 szoba
69 m²
Perbál
Eladó családi ház

Perbál

199 M Ft
4 szoba
150 m²
Bernecebaráti
Eladó családi ház

Bernecebaráti

86 M Ft
4 szoba
95 m²
Nagyharsány
Eladó téglalakás

Nagyharsány

22.5 M Ft
3 szoba
71 m²
Jakabszállás
Eladó családi ház

Jakabszállás

105 M Ft
6 szoba
180 m²
Újkígyós
Eladó családi ház

Újkígyós

19.99 M Ft
2 + 1 szoba
72 m²
Vasboldogasszony
Eladó családi ház

Vasboldogasszony

85 M Ft
6 szoba
180 m²