NapForrás 20 - Buda

Eladó ikerház
Budapest, XXII. kerület, Baross Gábor telep

+ 1 kép 1/4
114 000 000 Ft114 M Ft 1 295 455 Ft/m2
4 szoba
88 m2
építés éve:2025

Részletes adatok

Telekméret: 270 m2
Fűtés: Egyéb
Energetikai besorolás: Nem adta meg a hirdető

Az OTP Bank lakáshitel ajánlataFizetett hirdetés

+36 1 690
Henke Norbert
referens

Érdekel az OTP Bank kedvezményes lakáshitel ajánlata? *

* A kérdésre „Igen” válasz bejelölése esetén, az „Üzenet küldése” gombra kattintva kijelentem, hogy az OTP Bank Nyrt. Adatkezelési tájékoztatójának tartalmát megismertem és tudomásul vettem.

Eladó ikerház leírása

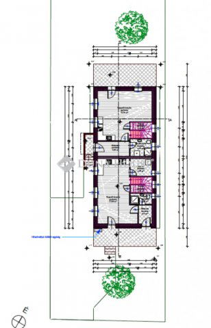
Eladó egy egyedülállóan tervezett, új építésű ikerház Budapest XXII. kerületének Óhegy részén, amely családi házas környezetben, csendes utcában található. A tervezett átadási idő 2025 december, így Ön még beleszólhat a végső megvalósításba! Az ingatlan vételára 114 000 000 forint, ami egy kiváló befektetés ebben a dinamikusan fejlődő városrészben.Minden részletet a jövő lakóinak kényelmét szem előtt tartva terveztek. Az ikerházban két db kétszintes, 88 nm-es lakóház lesz, melyek mindegyikéhez 270 nm-es kerítéssel elválasztott telekrész tartozik, valamint térkövezett felszíni gépkocsi beálló is kialakításra kerül.A két szinten amerikai konyhás nappalival, három hálószobával és két fürdőszobával tervezett belső elrendezés maximális kényelmet és praktikumot biztosít. Az alaprajz szemlélteti a gondosan megtervezett térkihasználást.Műszaki jellemzői a legmagasabb elvárásoknak is megfelelnek. A 30-as Porotherm falazatot, 15 cm-es külső homlokzati szigetelést alkalmaznak, míg a belső válaszfalak 10 cm-es ytong téglából készülnek. A két szint közötti födém E gerendás vasbetonból, a zárófödém pedig faszerkezetből, 25 cm-es kőzetgyapot szigeteléssel épül. Az ingatlan hőszigetelése kiemelkedő, melyet a három rétegű üvegezésű, műanyag külső nyílászárók és a hőszivattyús rendszerek (padlófűtés és hőszivattyús vízmelegítő) tovább fokoznak. Kellemes hőérzetet biztosít télen-nyáron az 1 db inverteres klíma berendezés.Az ingatlanok önálló mérőórákkal, használatbavételi engedéllyel, társasházi alapító okirattal és H-tarifás villanyórával kerülnek átadásra, kulcsrakész állapotban.Az igényes vásárlók igényeit kielégítendő, a hideg-meleg burkolatok, beltéri ajtók és szaniterek széles skálájából lehet választani, adott kereteken belül. A vállalkozó rugalmassága révén egyedi kérések is megvalósíthatóak, így valóban személyre szabhatja új otthonát.A környék infrastrukturális ellátottsága kiváló, közelben megtalálhatóak iskolák, óvodák, bölcsőde és orvosi rendelő. Bevásárlási lehetőségek szintén könnyen elérhetőek, (Campona, Aldi, Lidl, Spar), az autóbusz megállók pedig sétatávolságra vannak (213, 114, 214, 287 vonalak).További információkért, részletes műszaki leírásért vagy egy személyre szabott bemutatóért, keressen bizalommal. Fedezze fel, hogyan teheti ezt az ikerházat otthonává!

Hirdetés feltöltve: 2025. 11. 07.

4 szobás ikerházak ára Budapesten

Ebből az összehasonlításból megtudhatod, hogyan viszonyul a lakás ára a környékbeli ikerházak átlagos árához. Ez nem azt jelenti, hogy ennyivel olcsóbb vagy drágább, mint amennyit a lakás ér, hanem hogy ennyivel tér el a környékbeli átlagtól.

Ennek a m² ára
XXII. kerület m² ár
Budapest m² ár
1295 e Ft
1470 e Ft 12%
1264 e Ft -3%
Ennek az ára
XXII. kerület átlagár
Budapest átlagár
114 M Ft m Ft
191.6 m Ft 40%
182.2 m Ft 37%

Az ingatlan elhelyezkedése

Cím: Budapest, XXII. kerület, Baross Gábor telep

Eladó ingatlanok a környékről

Eladó ikerház
Eladó ikerház

XXII. kerület

223.6 M Ft
4 szoba
173 m2
Eladó ikerház
Eladó ikerház

XXII. kerület, Budafok

179.9 M Ft
5 szoba
185 m2
Eladó panellakás
Eladó panellakás

XXI. kerület

54.9 M Ft
1 + 2 szoba
53 m2
Eladó ikerház
Eladó ikerház

XXII. kerület, Budafok

581.88 M Ft
9 szoba
416 m2
Eladó ikerház
Eladó ikerház

XXII. kerület

266.75 M Ft
4 szoba
191 m2
Eladó üzlethelyiség
Eladó üzlethelyiség

II. kerület, Országút, Margit körút

6.999 M Ft
5 m2
Eladó ikerház
Eladó ikerház

XXII. kerület

109.5 M Ft
3 szoba
97 m2
Eladó ikerház
Eladó ikerház

XXII. kerület, Budafok

315.13 M Ft
5 szoba
227 m2
Eladó ikerház
Eladó ikerház

XXII. kerület, Budafok, Tatárka utca

179.9 M Ft
4 + 1 szoba
185 m2
Eladó téglalakás
Eladó téglalakás

VII. kerület, Belső Erzsébetváros, Erzsébet körút

89.9 M Ft
1 + 1 szoba
71 m2
Eladó téglalakás
Eladó téglalakás

VIII. kerület, Palotanegyed, Rákóczi út

190 M Ft
5 szoba
121 m2
Eladó ikerház
Eladó ikerház

XXII. kerület

170 M Ft
5 szoba
152 m2
Eladó ikerház
Eladó ikerház

XXII. kerület

581.88 M Ft
9 szoba
416 m2
Eladó téglalakás
Eladó téglalakás

VIII. kerület

59.99 M Ft
1 + 1 szoba
56 m2
Eladó ikerház
Eladó ikerház

XXII. kerület

266.75 M Ft
4 szoba
191 m2
Eladó téglalakás
Eladó téglalakás

VII. kerület

94 M Ft
3 szoba
83 m2
Eladó ikerház
Eladó ikerház

XXII. kerület, Budafok

129.9 M Ft
1 + 4 szoba
95 m2
Eladó téglalakás
Eladó téglalakás

VI. kerület, Külső Terézváros, Szív utca

119.5 M Ft
3 szoba
94 m2
Eladó téglalakás
Eladó téglalakás

VI. kerület, Külső Terézváros, Szófia utca

119.9 M Ft
4 szoba
103 m2
Eladó ikerház
Eladó ikerház

XXII. kerület

89 M Ft
3 szoba
111 m2
Eladó téglalakás
Eladó téglalakás

XIII. kerület, Angyalföld, Fiastyúk utca

41.99 M Ft
1 + 1 szoba
34 m2
Eladó téglalakás
Eladó téglalakás

VII. kerület, Belső Erzsébetváros, Rózsa utca

170 M Ft
5 szoba
124 m2
Eladó téglalakás
Eladó téglalakás

IX. kerület

95.9 M Ft
2 szoba
40 m2
Eladó ikerház
Eladó ikerház

XXII. kerület

266.25 M Ft
4 szoba
191 m2

Falusi CSOK ingatlanok

Eladó ikerház
Eladó ikerház

Seregélyes

39.9 M Ft
4 szoba
150 m2
Eladó családi ház
Eladó családi ház

Bodonhely

41.49 M Ft
2 szoba
70 m2
Eladó családi ház
Eladó családi ház

Gáborján

5.5 M Ft
2 szoba
68 m2
Eladó családi ház
Eladó családi ház

Tab

46.9 M Ft
4 szoba
173 m2
Eladó családi ház
Eladó családi ház

Lőkösháza

12.5 M Ft
2 szoba
63 m2
Eladó családi ház
Eladó családi ház

Iváncsa

73.9 M Ft
1 + 3 szoba
97 m2
Eladó családi ház
Eladó családi ház

Tápiószőlős

17 M Ft
2 szoba
60 m2
Eladó családi ház
Eladó családi ház

Kapoly

27.9 M Ft
3 szoba
65 m2