NapForrás 20 - Buda

Eladó ikerház
Budapest, XVIII. kerület

1/2
149 900 000 Ft149.9 M Ft 914 024 Ft/m2
4 szoba
164 m²
építés éve:2025

Részletes adatok

Telekméret: 500 m2
Fűtés: Egyéb
Energetikai besorolás: Nem adta meg a hirdető

Az OTP Bank lakáshitel ajánlataFizetett hirdetés

+36 70 421
Zámbó Beatrix
referens

Érdekel az OTP Bank kedvezményes lakáshitel ajánlata? *

* A kérdésre „Igen” válasz bejelölése esetén, az „Üzenet küldése” gombra kattintva kijelentem, hogy az OTP Bank Nyrt. Adatkezelési tájékoztatójának tartalmát megismertem és tudomásul vettem.

Eladó ikerház leírása

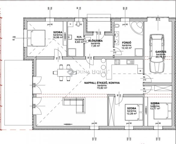
18.kerület legkedveltebb részén AlmáskertbenAlmáskertben modern környezetben eladó új építésű ikerházfél.A kivitelező sok éves múlttal és rengeteg elégedett ügyféllel rendelkezik, referenciák akár itt a lakóparkban is megtekinthetőek.164,25 négyzetméter hasznos lakótérrel rendelkezik, mely egy 500 négyzetméteres telken fekszik. Nappali+3hálószobával rendelkezik, a szobák minimum 12 négyzetméteresek. A földszinten elhelyezkedő 73négyzetméteres nappali+amerikai konyha tágas életteret biztosít, melyből egy csodás privát teraszon keresztül juthatunk ki a saját privát kertünkbe.Autóval garázsban és az udvaron is lehet parkolni.Műszaki adatok:-30-as Prototherm tégla falazat-15 cm-es homlokzati szigetelés-29 cm-es szigetelés az aljzat felől-35 cm-es szigetelés a födém felől-3 rétegű műanyag nyílászárók, fehér színnel-a tető szerkezete fafödém cserépfedéssel-elektromos garázskapu fehér színnel-elektromos kertikapu-Hőszivattyús fűtés, padlófűtéssel-1db hűtő-fűtő klíma-mosókonyha-riasztó és kamerarendszer-térkövezett autóbeállóBurkolatok/beltéri ajtók/szaniterek még választhatóak.A HÁZAK CSAK GARÁZZSAL ÉRINTKEZNEK!A lakópark teljesen új modern környezet, összetartó közösség jellemzi. Közlekedést tekintve autóval a Gyorsforgalmi út, Üllői út, Gyömrői út az M0-ás, M5-ös és a 4-es út mind-mind maximum 5 perc alatt megközelíthető.Tömegközlekedés 3 perc sétára, ahonnan a buszok Kőbánya Kispest vasútállomásig, illetve Határ úti metrómegálló, Ferihegyi vasútállomás is megközelíthető. 10 perc busz távolságra Ferihegyi vasútállomás, melyről a Nyugati pályaudvarig közlekedhetünk. Séta távolságra: Gyógyszertár, Spar, Iskola, Óvoda, PostaFelkeltette érdeklődését keressen bizalommal a hét bármely napján!

Referencia szám: HZ094200-ZE

Hirdetés feltöltve: 2026. 04. 01. Utoljára módosítva: 2026. 04. 02.

4 szobás ikerházak ára Budapesten

Ebből az összehasonlításból megtudhatod, hogyan viszonyul a lakás ára a környékbeli ikerházak átlagos árához. Ez nem azt jelenti, hogy ennyivel olcsóbb vagy drágább, mint amennyit a lakás ér, hanem hogy ennyivel tér el a környékbeli átlagtól.

Ennek a m² ára
XVIII. kerület m² ár
Budapest m² ár
914 e Ft
927 e Ft 1%
1184 e Ft 23%
Ennek az ára
XVIII. kerület átlagár
Budapest átlagár
149.9 M Ft m Ft
132.4 m Ft -13%
170.1 m Ft 12%

Az ingatlan elhelyezkedése

Cím: Budapest, XVIII. kerület

Eladó ingatlanok a környékről

XV. kerület
Eladó családi ház

Budapest, XV. kerület

64.9 M Ft
1 szoba
53 m²
XIII. kerület, Angyalföld, Dévai utca Lőportár 17
Eladó téglalakás

Budapest, XIII. kerület

71.205 M Ft
1 szoba
32 m²
XVIII. kerület
Eladó ikerház

Budapest, XVIII. kerület

125 M Ft
7 szoba
270 m²
XVIII. kerület
Eladó ikerház

Budapest, XVIII. kerület

149.9 M Ft
5 szoba
136 m²
XIII. kerület, Angyalföld, Dévai utca Lőportár 17
Eladó téglalakás

Budapest, XIII. kerület

85.811 M Ft
2 szoba
42 m²
XVIII. kerület
Eladó ikerház

Budapest, XVIII. kerület

147.5 M Ft
4 szoba
120 m²
XVIII. kerület
Eladó ikerház

Budapest, XVIII. kerület

249 M Ft
4 szoba
164 m²
XIII. kerület, Angyalföld, Dévai utca Lőportár 17
Eladó téglalakás

Budapest, XIII. kerület

139.405 M Ft
3 szoba
77 m²
XVIII. kerület
Eladó ikerház

Budapest, XVIII. kerület

154.9 M Ft
5 szoba
134 m²
VIII. kerület
Eladó téglalakás

Budapest, VIII. kerület

104.9 M Ft
3 szoba
65 m²
XIII. kerület, Angyalföld, Dévai utca Lőportár 17
Eladó téglalakás

Budapest, XIII. kerület

181.573 M Ft
3 szoba
83 m²
XIII. kerület, Angyalföld, Dévai utca Lőportár 17
Eladó téglalakás

Budapest, XIII. kerület

71.205 M Ft
1 szoba
32 m²
XVIII. kerület
Eladó ikerház

Budapest, XVIII. kerület

149.9 M Ft
5 szoba
137 m²
XVIII. kerület
Eladó ikerház

Budapest, XVIII. kerület

74.5 M Ft
4 szoba
110 m²
XVIII. kerület
Eladó ikerház

Budapest, XVIII. kerület

149.9 M Ft
5 szoba
137 m²
VII. kerület
Eladó téglalakás

Budapest, VII. kerület

57.9 M Ft
1 szoba
29 m²
XII. kerület
Eladó téglalakás

Budapest, XII. kerület

70 M Ft
2 szoba
32 m²
XIII. kerület, Angyalföld, Dévai utca Lőportár 17
Eladó téglalakás

Budapest, XIII. kerület

87.733 M Ft
2 szoba
43 m²
XVIII. kerület
Eladó ikerház

Budapest, XVIII. kerület

74.5 M Ft
4 szoba
110 m²
XV. kerület
Eladó panellakás

Budapest, XV. kerület

63.5 M Ft
2 szoba
53 m²
XVIII. kerület
Eladó ikerház

Budapest, XVIII. kerület

154.9 M Ft
5 szoba
134 m²
XIII. kerület, Angyalföld, Dévai utca Lőportár 17
Eladó téglalakás

Budapest, XIII. kerület

83.73 M Ft
2 szoba
40 m²
XVIII. kerület
Eladó ikerház

Budapest, XVIII. kerület

99.9 M Ft
4 szoba
110 m²
XIII. kerület, Angyalföld, Dévai utca Lőportár 17
Eladó téglalakás

Budapest, XIII. kerület

69.483 M Ft
1 szoba
32 m²

Falusi CSOK ingatlanok

Mezőzombor
Eladó családi ház

Mezőzombor

14.6 M Ft
3 szoba
81 m²
Újlengyel
Eladó családi ház

Újlengyel

110 M Ft
4 szoba
121 m²
Gönc
Eladó családi ház

Gönc

28 M Ft
2 szoba
120 m²
Győrság
Eladó családi ház

Győrság

89.9 M Ft
4 szoba
92 m²
Németkér
Eladó családi ház

Németkér

149.9 M Ft
2 szoba
540 m²
Balatonudvari
Eladó családi ház

Balatonudvari

240 M Ft
9 szoba
260 m²
Berzence
Eladó családi ház

Berzence

25 M Ft
2 szoba
200 m²
Perőcsény
Eladó családi ház

Perőcsény

59 M Ft
3 szoba
128 m²