BAM Living

Eladó ikerház
Budapest, XVIII. kerület

1/2
159 900 000 Ft159.9 M Ft 980 982 Ft/m2
5 szoba
163 m2
építés éve:2025

Részletes adatok

Telekméret: 658 m2
Fűtés: Egyéb
Energetikai besorolás: Nem adta meg a hirdető

Az OTP Bank lakáshitel ajánlataFizetett hirdetés

3637999301
Kosztya Vivien
referens

Érdekel az OTP Bank kedvezményes lakáshitel ajánlata? *

* A kérdésre „Igen” válasz bejelölése esetén, az „Üzenet küldése” gombra kattintva kijelentem, hogy az OTP Bank Nyrt. Adatkezelési tájékoztatójának tartalmát megismertem és tudomásul vettem.

Eladó ikerház leírása

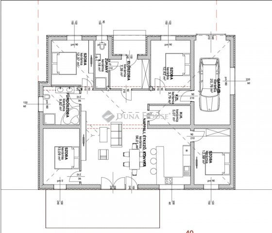
18.kerület legkedveltebb részén AlmáskertbenAlmáskertben modern környezetben eladó új építésű egyszintes önálló családi ház..A kivitelező sok éves múlttal és rengeteg elégedett ügyféllel rendelkezik, referenciák akár itt a lakóparkban is megtekinthetőek.163 négyzetméter hasznos lakótérrel rendelkezik, mely egy 660 négyzetméteres telken fekszik. Nappali+4hálószobával rendelkezik, a szobák minimum 12 négyzetméteresek. Az 56 négyzetméteres tágas nappaliból egy privát teraszon keresztül juthatunk ki a csodás kertünkbe.Autóval garázsban és az udvaron is lehet parkolni.Műszaki adatok:-30-as Prototherm tégla falazat-15 cm-es homlokzati szigetelés-29 cm-es szigetelés az aljzat felől-35 cm-es szigetelés a födém felől-3 rétegű műanyag nyílászárók, kívül antracit, belül fehér színnel-a tető szerkezete fafödém cserépfedéssel-elektromos garázskapu-elektromos kertikapu-Hőszivattyús fűtés, padlófűtéssel-1db hűtő-fűtő klíma-riasztó és kamerarendszer-térkövezett autóbeálló-2 fürdőszoba-mosókonyhaBurkolatok/beltéri ajtók/szaniterek még választhatóak.Átadás 2026. III. negyedévében.A lakópark teljesen új modern környezet, összetartó közösség jellemzi. Közlekedést tekintve autóval a Gyorsforgalmi út, Üllői út, Gyömrői út az M0-ás, M5-ös és a 4-es út mind-mind maximum 5 perc alatt megközelíthető.Tömegközlekedés 3 perc sétára, ahonnan a buszok Kőbánya Kispest vasútállomásig, illetve Határ úti metrómegálló, Ferihegyi vasútállomás is megközelíthető. 10 perc busz távolságra Ferihegyi vasútállomás, melyről a Nyugati pályaudvarig közlekedhetünk. Séta távolságra: Gyógyszertár, Spar, Iskola, Óvoda, PostaFelkeltette érdeklődését keressen bizalommal a hét bármely napján!

Referencia szám: HZ072154

Hirdetés feltöltve: 2025. 11. 04.

5 szobás ikerházak ára Budapesten

Ebből az összehasonlításból megtudhatod, hogyan viszonyul a lakás ára a környékbeli ikerházak átlagos árához. Ez nem azt jelenti, hogy ennyivel olcsóbb vagy drágább, mint amennyit a lakás ér, hanem hogy ennyivel tér el a környékbeli átlagtól.

Ennek a m² ára
XVIII. kerület m² ár
Budapest m² ár
981 e Ft
965 e Ft -2%
1136 e Ft 14%
Ennek az ára
XVIII. kerület átlagár
Budapest átlagár
159.9 M Ft m Ft
137.9 m Ft -16%
200.2 m Ft 20%

Az ingatlan elhelyezkedése

Cím: Budapest, XVIII. kerület

Eladó ingatlanok a környékről

Eladó ikerház
Eladó ikerház

XVIII. kerület

124.9 M Ft
5 szoba
142 m2
Eladó ikerház
Eladó ikerház

XVIII. kerület

150 M Ft
3 szoba
212 m2
Eladó ikerház
Eladó ikerház

XVIII. kerület

129.9 M Ft
5 szoba
143 m2
Eladó ikerház
Eladó ikerház

XVIII. kerület

100 M Ft
4 szoba
158 m2
Eladó családi ház
Eladó családi ház

XIX. kerület

99.9 M Ft
6 szoba
117 m2
Eladó ikerház
Eladó ikerház

XVIII. kerület, Ganzkertváros

129.9 M Ft
5 szoba
143 m2
Eladó téglalakás
Eladó téglalakás

X. kerület

62.9 M Ft
1 + 1 szoba
53 m2
Eladó családi ház
Eladó családi ház

XVI. kerület

129.9 M Ft
5 szoba
200 m2
Eladó családi ház
Eladó családi ház

XVII. kerület, Rákoskeresztúr

116 M Ft
2 szoba
70 m2
Eladó családi ház
Eladó családi ház

XIV. kerület, Kiszugló

138.5 M Ft
3 szoba
100 m2
Eladó téglalakás
Eladó téglalakás

XX. kerület, Gubacsipuszta

64.5 M Ft
2 szoba
63 m2
Eladó téglalakás
Eladó téglalakás

XIX. kerület, Kispest

51 M Ft
3 szoba
55 m2
Eladó családi ház
Eladó családi ház

XVII. kerület

109 M Ft
7 szoba
155 m2
Eladó ikerház
Eladó ikerház

XVIII. kerület

154.9 M Ft
6 szoba
172 m2
Eladó téglalakás
Eladó téglalakás

XIX. kerület

29.9 M Ft
1 szoba
19 m2
Eladó ikerház
Eladó ikerház

XVIII. kerület

129.9 M Ft
5 szoba
143 m2
Eladó ikerház
Eladó ikerház

XVIII. kerület, Újpéteritelep

69.9 M Ft
4 szoba
155 m2
Eladó téglalakás
Eladó téglalakás

XVI. kerület, Árpádföld

86 M Ft
3 szoba
59 m2
Eladó ikerház
Eladó ikerház

XVIII. kerület

135 M Ft
5 szoba
140 m2
Eladó téglalakás
Eladó téglalakás

XIX. kerület

95 M Ft
3 szoba
66 m2
Eladó ikerház
Eladó ikerház

XVIII. kerület, Újpéteritelep

129.99 M Ft
5 szoba
134 m2
Eladó ikerház
Eladó ikerház

XVIII. kerület, Almáskert

249 M Ft
4 szoba
164 m2
Eladó családi ház
Eladó családi ház

XVII. kerület

110 M Ft
4 szoba
109 m2
Eladó téglalakás
Eladó téglalakás

XX. kerület, Gubacsipuszta

44.5 M Ft
1 szoba
46 m2

Falusi CSOK ingatlanok

Eladó családi ház
Eladó családi ház

Veszprémfajsz

149 M Ft
5 szoba
179 m2
Eladó családi ház
Eladó családi ház

Kemence, Fő utca

25 M Ft
3 szoba
91 m2
Eladó családi ház
Eladó családi ház

Onga

65 M Ft
5 szoba
168 m2
Eladó családi ház
Eladó családi ház

Varbóc

7.9 M Ft
2 szoba
86 m2
Eladó családi ház
Eladó családi ház

Bugac

55 M Ft
3 szoba
90 m2
Eladó családi ház
Eladó családi ház

Tápiószőlős

3.5 M Ft
1 szoba
75 m2
Eladó családi ház
Eladó családi ház

Orgovány, Mátyás király utca

16 M Ft
2 szoba
60 m2
Eladó családi ház
Eladó családi ház

Pannonhalma

76.4 M Ft
4 szoba
97 m2