Stay Family Park

Eladó ikerház
Budapest, XVIII. kerület, Almáskert

1/2
159 900 000 Ft159.9 M Ft 980 982 Ft/m2
5 szoba
163 m2
építés éve:2025

Részletes adatok

Telekméret: 658 m2
Fűtés: Egyéb
Energetikai besorolás: Nem adta meg a hirdető

Az OTP Bank lakáshitel ajánlataFizetett hirdetés

+36 1 690
Drevnó Béla
Duna House Kispest

Érdekel az OTP Bank kedvezményes lakáshitel ajánlata? *

* A kérdésre „Igen” válasz bejelölése esetén, az „Üzenet küldése” gombra kattintva kijelentem, hogy az OTP Bank Nyrt. Adatkezelési tájékoztatójának tartalmát megismertem és tudomásul vettem.

Eladó ikerház leírása

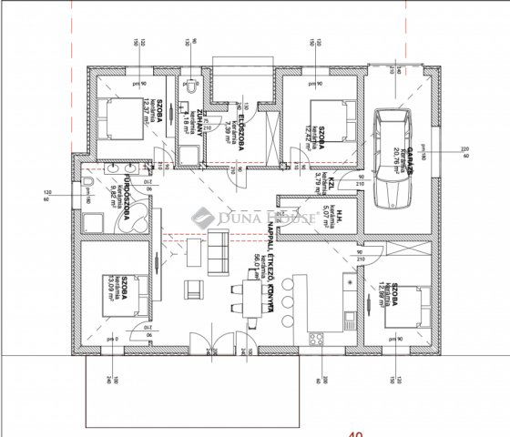
18.kerület legkedveltebb részén AlmáskertbenAlmáskertben modern környezetben eladó új építésű egyszintes önálló családi ház..A kivitelező sok éves múlttal és rengeteg elégedett ügyféllel rendelkezik, referenciák akár itt a lakóparkban is megtekinthetőek.163 négyzetméter hasznos lakótérrel rendelkezik, mely egy 660 négyzetméteres telken fekszik. Nappali+4hálószobával rendelkezik, a szobák minimum 12 négyzetméteresek. Az 56 négyzetméteres tágas nappaliból egy privát teraszon keresztül juthatunk ki a csodás kertünkbe.Autóval garázsban és az udvaron is lehet parkolni.Műszaki adatok:-30-as Prototherm tégla falazat-15 cm-es homlokzati szigetelés-29 cm-es szigetelés az aljzat felől-35 cm-es szigetelés a födém felől-3 rétegű műanyag nyílászárók, kívül antracit, belül fehér színnel-a tető szerkezete fafödém cserépfedéssel-elektromos garázskapu-elektromos kertikapu-Hőszivattyús fűtés, padlófűtéssel-1db hűtő-fűtő klíma-riasztó és kamerarendszer-térkövezett autóbeálló-2 fürdőszoba-mosókonyhaBurkolatok/beltéri ajtók/szaniterek még választhatóak.Átadás 2026. III. negyedévében.A lakópark teljesen új modern környezet, összetartó közösség jellemzi. Közlekedést tekintve autóval a Gyorsforgalmi út, Üllői út, Gyömrői út az M0-ás, M5-ös és a 4-es út mind-mind maximum 5 perc alatt megközelíthető.Tömegközlekedés 3 perc sétára, ahonnan a buszok Kőbánya Kispest vasútállomásig, illetve Határ úti metrómegálló, Ferihegyi vasútállomás is megközelíthető. 10 perc busz távolságra Ferihegyi vasútállomás, melyről a Nyugati pályaudvarig közlekedhetünk. Séta távolságra: Gyógyszertár, Spar, Iskola, Óvoda, PostaFelkeltette érdeklődését keressen bizalommal a hét bármely napján!
A Duna House teljes kínálatával kapcsolatban forduljanak hozzám bizalommal!

Bankfüggetlen pénzügyi szakembereink tanácsadással, ügyintézéssel tudják segíteni Önöket álmaik, céljaik megvalósításában!

Vegye igénybe díjmentes konzultációinkat!

https://www.facebook.com/otthonkonnyeden

Referencia szám: HZ072154

Hirdetés feltöltve: 2025. 10. 22. Utoljára módosítva: 2025. 11. 13.

5 szobás ikerházak ára Budapesten

Ebből az összehasonlításból megtudhatod, hogyan viszonyul a lakás ára a környékbeli ikerházak átlagos árához. Ez nem azt jelenti, hogy ennyivel olcsóbb vagy drágább, mint amennyit a lakás ér, hanem hogy ennyivel tér el a környékbeli átlagtól.

Ennek a m² ára
Almáskert m² ár
XVIII. kerület m² ár
Budapest m² ár
981 e Ft
1074 e Ft 9%
961 e Ft -2%
1143 e Ft 14%
Ennek az ára
Almáskert átlagár
XVIII. kerület átlagár
Budapest átlagár
159.9 M Ft m Ft
147.2 m Ft -9%
137.6 m Ft -16%
199.7 m Ft 20%

Az ingatlan elhelyezkedése

Cím: Budapest, XVIII. kerület, Almáskert

Eladó ingatlanok a környékről

Eladó téglalakás
Eladó téglalakás

VII. kerület, Belső Erzsébetváros, Erzsébet körút

89.9 M Ft
1 + 1 szoba
71 m2
Eladó téglalakás
Eladó téglalakás

XI. kerület, Gellérthegy, Gombócz Zoltán utca

142 M Ft
2 + 1 szoba
71 m2
Eladó ikerház
Eladó ikerház

XVIII. kerület

100 M Ft
4 szoba
158 m2
Eladó ikerház
Eladó ikerház

XVIII. kerület, Ganzkertváros

124.9 M Ft
5 szoba
142 m2
Eladó téglalakás
Eladó téglalakás

III. kerület, Rómaifürdő, Királyok útja

139 M Ft
3 szoba
65 m2
Eladó téglalakás
Eladó téglalakás

III. kerület, Óbudaisziget, Folyamőr utca

76.9 M Ft
1 szoba
25 m2
Eladó téglalakás
Eladó téglalakás

XIII. kerület

72.9 M Ft
2 szoba
50 m2
Eladó ikerház
Eladó ikerház

XVIII. kerület, Almáskert

249 M Ft
4 szoba
164 m2
Eladó ikerház
Eladó ikerház

XVIII. kerület, Gloriett-telep, Sólyom utca

99.9 M Ft
4 szoba
110 m2
Eladó téglalakás
Eladó téglalakás

VI. kerület, Külső Terézváros, Szófia utca

119.9 M Ft
4 szoba
103 m2
Eladó ikerház
Eladó ikerház

XVIII. kerület, Gloriett-telep, Sólyom utca

49.9 M Ft
2 szoba
40 m2
Eladó ikerház
Eladó ikerház

XVIII. kerület

150 M Ft
3 szoba
212 m2
Eladó téglalakás
Eladó téglalakás

XIII. kerület, Angyalföld, Fiastyúk utca

39.9 M Ft
1 + 1 szoba
34 m2
Eladó téglalakás
Eladó téglalakás

IX. kerület

108.9 M Ft
3 szoba
124 m2
Eladó téglalakás
Eladó téglalakás

V. kerület, Belváros, Petőfi Sándor utca

134 M Ft
2 szoba
59 m2
Eladó családi ház
Eladó családi ház

XVI. kerület

139 M Ft
5 szoba
130 m2
Eladó téglalakás
Eladó téglalakás

VI. kerület, Külső Terézváros, Szív utca

119.5 M Ft
3 szoba
94 m2
Eladó ikerház
Eladó ikerház

XVIII. kerület

99.9 M Ft
4 szoba
110 m2
Eladó ikerház
Eladó ikerház

XVIII. kerület

135 M Ft
5 szoba
140 m2
Eladó ikerház
Eladó ikerház

XVIII. kerület

150 M Ft
3 szoba
212 m2
Eladó panellakás
Eladó panellakás

IV. kerület

61.9 M Ft
2 szoba
53 m2
Eladó ikerház
Eladó ikerház

XVIII. kerület, Almáskert

150 M Ft
3 szoba
212 m2
Eladó ikerház
Eladó ikerház

XVIII. kerület, Ganzkertváros

129.9 M Ft
5 szoba
143 m2
Eladó ikerház
Eladó ikerház

XVIII. kerület

150 M Ft
3 szoba
212 m2

Falusi CSOK ingatlanok

Eladó családi ház
Eladó családi ház

Hernádnémeti

18.9 M Ft
2 szoba
62 m2
Eladó családi ház
Eladó családi ház

Egyházaskozár

59 M Ft
4 szoba
162 m2
Eladó családi ház
Eladó családi ház

Tiszatenyő

13.99 M Ft
2 szoba
63 m2
Eladó családi ház
Eladó családi ház

Márianosztra

85 M Ft
6 szoba
198 m2
Eladó családi ház
Eladó családi ház

Marcaltő

26 M Ft
3 szoba
103 m2
Eladó családi ház
Eladó családi ház

Bár

24.5 M Ft
4 szoba
125 m2
Eladó családi ház
Eladó családi ház

Újpetre

40 M Ft
8 szoba
200 m2
Eladó családi ház
Eladó családi ház

Balatonkenese

88 M Ft
4 szoba
80 m2