Eladó ikerház
Budapest, XVIII. kerület

+ 9 kép 1/12
99 900 000 Ft99.9 M Ft 908 182 Ft/m2
5 szoba
110 m2
építés éve:2025

Részletes adatok

Telekméret: 168 m2
Fűtés: Egyéb
Energetikai besorolás: Nem adta meg a hirdető

Az OTP Bank lakáshitel ajánlataFizetett hirdetés

+36 1 690
Zoltai István
referens

Érdekel az OTP Bank kedvezményes lakáshitel ajánlata? *

* A kérdésre „Igen” válasz bejelölése esetén, az „Üzenet küldése” gombra kattintva kijelentem, hogy az OTP Bank Nyrt. Adatkezelési tájékoztatójának tartalmát megismertem és tudomásul vettem.

Eladó ikerház leírása

18.kerület kedvelt részén Pestszentimrén

Belsőmajor városrészen modern környezetben eladó új építésű ikerház.
A kivitelező sok éves múlttal és rengeteg elégedett ügyféllel rendelkezik, referenciák akár itt a kerületben is megtekinthetőek.

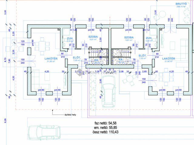
110,43 négyzetméter hasznos lakótérrel rendelkezik, mely egy 266,64 négyzetméteres telken fekszik. Nappali+4hálószobával rendelkezik, a szobák minimum 12 négyzetméteresek. A nappaliból egy 18négyzetméteres teraszon keresztül juthatunk ki a csodás saját privát kertünkbe.

Autóval az udvaron kialakított autóbeállóban lehet parkolni.

Műszaki adatok:

-30-as Prototherm tégla falazat

-15 cm-es homlokzati szigetelés

-29 cm-es szigetelés az aljzat felől

-35 cm-es szigetelés a födém felől

-3 rétegű műanyag nyílászárók

-a tető szerkezete fafödém cserépfedéssel

-elektromos kertikapu

-Hőszivattyús fűtés, padlófűtéssel

-1db hűtő-fűtő klíma

-riasztó

-térkövezett autóbeálló

-épített kerítés

Burkolatok/beltéri ajtók/szaniterek még választhatóak.

Hideg/meleg burkolatokat 5.000 Ft/m² értékhatárig van lehetőség választani, a szaniterekre, csaptelepekre és belső nyílászárókra szintén meghatározott keretösszegek állnak rendelkezésre: beltéri ajtó kilinccsel 80.000 Ft/db, kád tartozékaival 80.000 Ft-ig, csaptelep 20.000 Ft/db, mosdó 20.000 Ft/db értékig az ár részét képezik.

Átadás 2026. IV. negyedévében.

Közlekedést tekintve autóval a Gyorsforgalmi út, Üllői út, Gyömrői út az M0-ás, M5-ös és a 4-es út mind-mind maximum 5 perc alatt megközelíthető.
Tömegközlekedés 1 perc sétára, ahonnan a buszok Kőbánya Kispest vasútállomásig, illetve Határ úti metrómegálló, Ferihegyi vasútállomás, Gyáli vasútállomás is megközelíthető melyről a Keleti pályaudvarig közlekedhetünk. Séta távolságra: Gyógyszertár, Penny, Iskola, Óvoda, Posta

Kérdés esetén, hívjon a hét bármely napján

Hirdetés feltöltve: 2025. 10. 16. Utoljára módosítva: 2025. 10. 17.

5 szobás ikerházak ára Budapesten

Ebből az összehasonlításból megtudhatod, hogyan viszonyul a lakás ára a környékbeli ikerházak átlagos árához. Ez nem azt jelenti, hogy ennyivel olcsóbb vagy drágább, mint amennyit a lakás ér, hanem hogy ennyivel tér el a környékbeli átlagtól.

Ennek a m² ára
XVIII. kerület m² ár
Budapest m² ár
908 e Ft
959 e Ft 5%
1140 e Ft 20%
Ennek az ára
XVIII. kerület átlagár
Budapest átlagár
99.9 M Ft m Ft
138.2 m Ft 28%
203.5 m Ft 51%

Az ingatlan elhelyezkedése

Cím: Budapest, XVIII. kerület

Eladó ingatlanok a környékről

Eladó ikerház
Eladó ikerház

XVIII. kerület

125 M Ft
5 szoba
143 m2
Eladó ikerház
Eladó ikerház

XVIII. kerület, Újpéteritelep

69.9 M Ft
4 szoba
155 m2
Eladó ikerház
Eladó ikerház

XVIII. kerület

135 M Ft
5 szoba
140 m2
Eladó ikerház
Eladó ikerház

XVIII. kerület

124.9 M Ft
5 szoba
142 m2
Eladó ikerház
Eladó ikerház

XVIII. kerület

35 M Ft
2 szoba
50 m2
Eladó ikerház
Eladó ikerház

XVIII. kerület

125 M Ft
5 szoba
143 m2
Eladó ikerház
Eladó ikerház

XVIII. kerület

154.9 M Ft
6 szoba
172 m2
Eladó ikerház
Eladó ikerház

XVIII. kerület, Ganzkertváros

124.9 M Ft
5 szoba
142 m2
Eladó téglalakás
Eladó téglalakás

VI. kerület, Külső Terézváros, Szófia utca

119.9 M Ft
4 szoba
103 m2
Eladó téglalakás
Eladó téglalakás

III. kerület, Óbuda, Szomolnok utca

89.9 M Ft
2 + 2 szoba
96 m2
Eladó téglalakás
Eladó téglalakás

III. kerület, Óbuda

87.9 M Ft
3 szoba
91 m2
Eladó ikerház
Eladó ikerház

XVIII. kerület

150 M Ft
3 szoba
212 m2
Eladó panellakás
Eladó panellakás

XVII. kerület

72.9 M Ft
1 + 2 szoba
53 m2
Eladó téglalakás
Eladó téglalakás

XIII. kerület, Angyalföld, Fiastyúk utca

41.99 M Ft
1 + 1 szoba
34 m2
Eladó ikerház
Eladó ikerház

XVIII. kerület

125 M Ft
5 szoba
143 m2
Eladó téglalakás
Eladó téglalakás

I. kerület, Víziváros, Batthyány utca

140 M Ft
3 + 1 szoba
85 m2
Eladó téglalakás
Eladó téglalakás

X. kerület, Ligettelek

99.49 M Ft
3 szoba
79 m2
Eladó téglalakás
Eladó téglalakás

II. kerület, Pasarét

149.9 M Ft
3 szoba
84 m2
Eladó ikerház
Eladó ikerház

XVIII. kerület, Gloriett-telep, Sólyom utca

49.9 M Ft
2 szoba
70 m2
Eladó ikerház
Eladó ikerház

XVIII. kerület

150 M Ft
3 szoba
212 m2
Eladó téglalakás
Eladó téglalakás

VII. kerület, Belső Erzsébetváros, Erzsébet körút

89.9 M Ft
1 + 1 szoba
71 m2
Eladó téglalakás
Eladó téglalakás

VIII. kerület

51.99 M Ft
1 szoba
31 m2
Eladó ikerház
Eladó ikerház

XVIII. kerület

100 M Ft
4 szoba
158 m2
Eladó ikerház
Eladó ikerház

XVIII. kerület

100 M Ft
4 szoba
158 m2

Falusi CSOK ingatlanok

Eladó családi ház
Eladó családi ház

Recsk

21 M Ft
4 szoba
220 m2
Eladó családi ház
Eladó családi ház

Jászkarajenő

25 M Ft
4 szoba
136 m2
Eladó családi ház
Eladó családi ház

Tabajd

79 M Ft
4 szoba
82 m2
Eladó családi ház
Eladó családi ház

Tápióság

29.9 M Ft
2 szoba
65 m2
Eladó családi ház
Eladó családi ház

Somogymeggyes

14 M Ft
3 szoba
86 m2
Eladó családi ház
Eladó családi ház

Tabdi

95 M Ft
45 szoba
1490 m2
Eladó családi ház
Eladó családi ház

Újhartyán, Epres utca

59.9 M Ft
3 szoba
103 m2
Eladó családi ház
Eladó családi ház

Balatonvilágos

78 M Ft
3 szoba
43 m2