BAM Living

Eladó ikerház
Budapest, XVIII. kerület

+ 17 kép 1/20
120 000 000 Ft120 M Ft 1 090 909 Ft/m2
5 szoba
110 m²
építés éve:2025

Részletes adatok

Telekméret: 266 m2
Fűtés: Egyéb
Energetikai besorolás: Nem adta meg a hirdető

Az OTP Bank lakáshitel ajánlataFizetett hirdetés

+36 1 690
Hársmán Kamilla
Duna House - Szent Imre-kertváros

Érdekel az OTP Bank kedvezményes lakáshitel ajánlata? *

* A kérdésre „Igen” válasz bejelölése esetén, az „Üzenet küldése” gombra kattintva kijelentem, hogy az OTP Bank Nyrt. Adatkezelési tájékoztatójának tartalmát megismertem és tudomásul vettem.

Eladó ikerház leírása

18.kerület kedvelt részén Pestszentimrén

Belsőmajor városrészen modern környezetben eladó új építésű ikerház.
A kivitelező sok éves múlttal és rengeteg elégedett ügyféllel rendelkezik, referenciák akár itt a kerületben is megtekinthetőek.

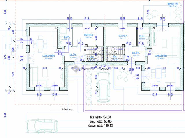
110,43 négyzetméter hasznos lakótérrel rendelkezik, mely egy 266,64 négyzetméteres telken fekszik. Nappali+4hálószobával rendelkezik, a szobák minimum 12 négyzetméteresek. A nappaliból egy 18négyzetméteres teraszon keresztül juthatunk ki a csodás saját privát kertünkbe.

Autóval az udvaron kialakított autóbeállóban lehet parkolni.

Műszaki adatok:

-30-as Prototherm tégla falazat

-15 cm-es homlokzati szigetelés

-29 cm-es szigetelés az aljzat felől

-35 cm-es szigetelés a födém felől

-3 rétegű műanyag nyílászárók

-a tető szerkezete fafödém cserépfedéssel

-elektromos kertikapu

-Hőszivattyús fűtés, padlófűtéssel

-1db hűtő-fűtő klíma

-riasztó

-térkövezett autóbeálló

-épített kerítés

Burkolatok/beltéri ajtók/szaniterek még választhatóak.

Hideg/meleg burkolatokat 5.000 Ft/m² értékhatárig van lehetőség választani, a szaniterekre, csaptelepekre és belső nyílászárókra szintén meghatározott keretösszegek állnak rendelkezésre: beltéri ajtó kilinccsel 80.000 Ft/db, kád tartozékaival 80.000 Ft-ig, csaptelep 20.000 Ft/db, mosdó 20.000 Ft/db értékig az ár részét képezik.

Átadás 2026. IV. negyedévében.

Közlekedést tekintve autóval a Gyorsforgalmi út, Üllői út, Gyömrői út az M0-ás, M5-ös és a 4-es út  mind-mind maximum 5 perc alatt megközelíthető.
Tömegközlekedés 1 perc sétára, ahonnan a buszok Kőbánya Kispest vasútállomásig, illetve Határ úti metrómegálló, Ferihegyi vasútállomás, Gyáli vasútállomás is megközelíthető melyről a Keleti pályaudvarig közlekedhetünk. Séta távolságra: Gyógyszertár, Penny, Iskola, Óvoda, Posta

Kérdés esetén, hívjon a hét bármely napján!

Hirdetés feltöltve: 2025. 10. 02. Utoljára módosítva: 2026. 01. 13.

5 szobás ikerházak ára Budapesten

Ebből az összehasonlításból megtudhatod, hogyan viszonyul a lakás ára a környékbeli ikerházak átlagos árához. Ez nem azt jelenti, hogy ennyivel olcsóbb vagy drágább, mint amennyit a lakás ér, hanem hogy ennyivel tér el a környékbeli átlagtól.

Ennek a m² ára
XVIII. kerület m² ár
Budapest m² ár
1091 e Ft
1019 e Ft -7%
1198 e Ft 9%
Ennek az ára
XVIII. kerület átlagár
Budapest átlagár
120 M Ft m Ft
140.4 m Ft 15%
212.2 m Ft 43%

Az ingatlan elhelyezkedése

Cím: Budapest, XVIII. kerület

Eladó ingatlanok a környékről

XVIII. kerület
Eladó ikerház

Budapest, XVIII. kerület

49.9 M Ft
2 szoba
40 m²
II. kerület
Eladó családi ház

Budapest, II. kerület

149.9 M Ft
3 szoba
90 m²
XVIII. kerület
Eladó ikerház

Budapest, XVIII. kerület

131.9 M Ft
5 szoba
140 m²
XVIII. kerület, Szemeretelep
Eladó ikerház

Budapest, XVIII. kerület

84 M Ft
5 szoba
103 m²
XVIII. kerület, Gloriett-telep, Sólyom utca
Eladó ikerház

Budapest, XVIII. kerület

49.9 M Ft
2 szoba
40 m²
XVIII. kerület, Lónyaytelep
Eladó téglalakás

Budapest, XVIII. kerület

69 M Ft
3 szoba
63 m²
XVIII. kerület, Újpéteritelep
Eladó ikerház

Budapest, XVIII. kerület

147.5 M Ft
4 szoba
120 m²
XVIII. kerület, Szent Imre kertváros
Eladó családi ház

Budapest, XVIII. kerület

99.9 M Ft
2 szoba
80 m²
XVIII. kerület, Erzsébettelep
Eladó ikerház

Budapest, XVIII. kerület

74.5 M Ft
4 szoba
110 m²
XVIII. kerület, Szemeretelep
Eladó családi ház

Budapest, XVIII. kerület

140 M Ft
2 szoba
118 m²
XVIII. kerület, Belsőmajor
Eladó ikerház

Budapest, XVIII. kerület

125 M Ft
7 szoba
270 m²
XVIII. kerület
Eladó családi ház

Budapest, XVIII. kerület

75 M Ft
3 szoba
65 m²
XVIII. kerület, Gloriett-telep, Sólyom utca
Eladó ikerház

Budapest, XVIII. kerület

99.9 M Ft
4 szoba
110 m²
XVII. kerület
Eladó családi ház

Budapest, XVII. kerület

299 M Ft
5 szoba
193 m²
XVIII. kerület, Erzsébettelep
Eladó ikerház

Budapest, XVIII. kerület

74.5 M Ft
4 szoba
110 m²
XVIII. kerület
Eladó ikerház

Budapest, XVIII. kerület

74.5 M Ft
4 szoba
110 m²
XV. kerület
Eladó családi ház

Budapest, XV. kerület

81.9 M Ft
3 szoba
90 m²
XVII. kerület
Eladó családi ház

Budapest, XVII. kerület

179 M Ft
5 szoba
150 m²
VIII. kerület
Eladó téglalakás

Budapest, VIII. kerület

109.9 M Ft
2 + 1 szoba
64 m²
XVIII. kerület
Eladó ikerház

Budapest, XVIII. kerület

99.9 M Ft
4 szoba
110 m²
XVIII. kerület, Almáskert
Eladó ikerház

Budapest, XVIII. kerület

149.9 M Ft
5 szoba
137 m²
XVIII. kerület
Eladó ikerház

Budapest, XVIII. kerület

99.9 M Ft
4 szoba
110 m²
XVIII. kerület
Eladó ikerház

Budapest, XVIII. kerület

159 M Ft
5 szoba
134 m²
XIII. kerület
Eladó panellakás

Budapest, XIII. kerület

79.8 M Ft
1 + 2 szoba
58 m²

Falusi CSOK ingatlanok

Taszár
Eladó családi ház

Taszár

66.5 M Ft
4 szoba
142 m²
Szentmártonkáta
Eladó családi ház

Szentmártonkáta

35 M Ft
3 szoba
70 m²
Bozsok
Eladó családi ház

Bozsok

290 M Ft
6 szoba
370 m²
Tápióbicske
Eladó családi ház

Tápióbicske

17.4 M Ft
2 szoba
84 m²
Nagyréde
Eladó családi ház

Nagyréde

69.5 M Ft
4 szoba
110 m²
Sződ
Eladó családi ház

Sződ

89.9 M Ft
4 szoba
120 m²
Vilonya
Eladó családi ház

Vilonya

110 M Ft
4 szoba
111 m²
Balatonkenese
Eladó családi ház

Balatonkenese

170 M Ft
4 szoba
140 m²