City Pearl

Eladó ikerház
Budapest, XVII. kerület

+ 7 kép 1/10
210 000 000 Ft210 M Ft 1 105 263 Ft/m2
4 szoba
190 m2
építés éve:2025

Részletes adatok

Telekméret: 695 m2
Fűtés: Egyéb
Energetikai besorolás: A+

Az OTP Bank lakáshitel ajánlataFizetett hirdetés

+36 1 444
Basa-Fábián Petra
referens

Érdekel az OTP Bank kedvezményes lakáshitel ajánlata? *

* A kérdésre „Igen” válasz bejelölése esetén, az „Üzenet küldése” gombra kattintva kijelentem, hogy az OTP Bank Nyrt. Adatkezelési tájékoztatójának tartalmát megismertem és tudomásul vettem.

Eladó ikerház leírása

Újépítésű prémium ikerház a Szőlőliget Ökoparkban természetközeli, modern élet fiatal családoknak!

Ha mindig is olyan otthonról álmodtál, ahol a modern technológia és a természet közelsége kéz a kézben jár, akkor ez a Szőlőliget Ökoparkban épülő új prémium ikerházfél neked szól!

Ez a 70%-os készültségű, két szintes, közel 200 m²-es modern otthon 695 m²-es saját kerttel, két tágas, 40 m²-es terasszal, 20 m²-es erkéllyel és önálló garázzsal rendelkezik, minden adott egy kényelmes, nyugodt családi élethez.

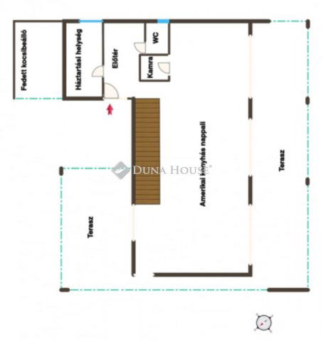
A ház elrendezése:

A földszinten egy 79 m²-es, 3,2 méteres belmagasságú amerikai konyhás nappali, kamra, háztartási helyiség és vendég-WC található, közvetlen kijárattal a 40 m²-es fedett teraszra és kertbe.
Az emeleten négy tágas hálószoba, két fürdőszoba, gardrób és egy 20 m²-es napfényes terasz kapott helyet.

Főbb műszaki jellemzők:

Falazat: 30 cm Porotherm + 15 cm hőszigetelés

Tető: Lindab lemezfedés

Nyílászárók: 3 rétegű üvegezés, elektromos alumínium redőny

Fűtéshűtés: 16 kW-os levegővíz hőszivattyú, padlófűtés és mennyezethűtés

Szellőzés: Wolf hővisszanyerős szellőztető rendszer

Extrák: elektromos kertkapu, riasztó-előkészítés, üvegkorlátos terasz, prémium anyaghasználat

Burkolatok és szaniterek még választhatók így teljesen a saját ízlésedre formálhatod új otthonodat.

Miért különleges a Szőlőliget Ökopark?

A Szőlőliget Ökopark prémium lakóövezet, ahol a fenntarthatóság és a közösségi szemlélet találkozik a modern építészeti megoldásokkal. Rendezett utcák, újépítésű házak, csendes és biztonságos környezet, valamint gyermekbarát közösség várja az ide költöző családokat.

Ideális választás, ha...

fiatal családként szeretnél nyugodt, biztonságos környezetben élni, fontos számodra a korszerű technológia és az alacsony rezsi, és olyan otthont keresel, ami értékálló befektetés is egyben.

Készültség: 70% a belső kialakítás még személyre szabható

A hirdetésben szereplő fotók között látványfotók is vannak.

Ha szeretnéd megtapasztalni, milyen a modern családi élet a természet közelében,
keress bizalommal, és mutatom a Szőlőliget Ökopark egyik legszebb otthonát!

Referencia szám: HZ018340-ZE

Hirdetés feltöltve: 2025. 10. 21. Utoljára módosítva: 2026. 01. 13.

4 szobás ikerházak ára Budapesten

Ebből az összehasonlításból megtudhatod, hogyan viszonyul a lakás ára a környékbeli ikerházak átlagos árához. Ez nem azt jelenti, hogy ennyivel olcsóbb vagy drágább, mint amennyit a lakás ér, hanem hogy ennyivel tér el a környékbeli átlagtól.

Ennek a m² ára
XVII. kerület m² ár
Budapest m² ár
1105 e Ft
1185 e Ft 7%
1255 e Ft 12%
Ennek az ára
XVII. kerület átlagár
Budapest átlagár
210 M Ft m Ft
137.5 m Ft -53%
180.2 m Ft -17%

Az ingatlan elhelyezkedése

Cím: Budapest, XVII. kerület

Eladó ingatlanok a környékről

Eladó téglalakás
Eladó téglalakás

III. kerület, Óbudaisziget, Folyamőr utca

69.9 M Ft
1 szoba
25 m2
Eladó téglalakás
Eladó téglalakás

XIV. kerület, Barack utca 16

96.655 M Ft
2 + 1 szoba
65 m2
Eladó téglalakás
Eladó téglalakás

XIV. kerület, Barack utca 16

133.251 M Ft
2 + 1 szoba
74 m2
Eladó ikerház
Eladó ikerház

XVII. kerület

139 M Ft
6 szoba
260 m2
Eladó téglalakás
Eladó téglalakás

XIV. kerület, Barack utca 16

111.539 M Ft
2 + 1 szoba
65 m2
Eladó téglalakás
Eladó téglalakás

XIV. kerület, Barack utca 16

93.392 M Ft
2 + 1 szoba
67 m2
Eladó ikerház
Eladó ikerház

XVII. kerület, Lőrinci út közeli utca

159.9 M Ft
5 szoba
124 m2
Eladó téglalakás
Eladó téglalakás

XIV. kerület, Barack utca 16

129.734 M Ft
3 + 1 szoba
92 m2
Eladó ikerház
Eladó ikerház

XVII. kerület, Rákoscsaba, Szigetcsép utca

160 M Ft
5 szoba
196 m2
Eladó téglalakás
Eladó téglalakás

VII. kerület, Belső Erzsébetváros, Erzsébet körút

160 M Ft
3 szoba
88 m2
Eladó ikerház
Eladó ikerház

XVII. kerület, Rákoskeresztúr

129 M Ft
5 szoba
171 m2
Eladó ikerház
Eladó ikerház

XVII. kerület

160 M Ft
5 szoba
196 m2
Eladó ikerház
Eladó ikerház

XVII. kerület

139 M Ft
6 szoba
260 m2
Eladó téglalakás
Eladó téglalakás

I. kerület, Krisztinaváros, Feszty Árpád utca

78.99 M Ft
1 szoba
28 m2
Eladó téglalakás
Eladó téglalakás

VII. kerület, Belső Erzsébetváros, Erzsébet körút

89.9 M Ft
1 + 1 szoba
71 m2
Eladó téglalakás
Eladó téglalakás

V. kerület, Belváros, Petőfi Sándor utca

134 M Ft
2 szoba
59 m2
Eladó ikerház
Eladó ikerház

XVII. kerület, Tápiószele utca

129 M Ft
5 szoba
150 m2
Eladó ikerház
Eladó ikerház

XVII. kerület

145 M Ft
4 szoba
116 m2
Eladó téglalakás
Eladó téglalakás

XIV. kerület, Barack utca 16

96.649 M Ft
2 + 1 szoba
65 m2
Eladó téglalakás
Eladó téglalakás

VI. kerület, Külső Terézváros, Szófia utca

112.9 M Ft
4 szoba
103 m2
Eladó téglalakás
Eladó téglalakás

XIV. kerület, Barack utca 16

93.73 M Ft
2 + 1 szoba
68 m2
Eladó ikerház
Eladó ikerház

XVII. kerület, Rákosliget

129.9 M Ft
4 szoba
140 m2
Eladó ikerház
Eladó ikerház

XVII. kerület, Rákosliget

155 M Ft
4 szoba
134 m2
Eladó téglalakás
Eladó téglalakás

XIV. kerület, Barack utca 16

113.1 M Ft
2 + 1 szoba
76 m2

Falusi CSOK ingatlanok

Eladó családi ház
Eladó családi ház

Pocsaj, Petőfi utca

8.5 M Ft
3 + 1 szoba
100 m2
Eladó családi ház
Eladó családi ház

Újpetre

53.35 M Ft
5 szoba
160 m2
Eladó családi ház
Eladó családi ház

Csenger

66 M Ft
5 szoba
255 m2
Eladó családi ház
Eladó családi ház

Újlengyel

79.9 M Ft
5 szoba
140 m2
Eladó családi ház
Eladó családi ház

Szűcsi

28 M Ft
3 + 2 szoba
212 m2
Eladó családi ház
Eladó családi ház

Szigetújfalu

45 M Ft
1 szoba
30 m2
Eladó családi ház
Eladó családi ház

Epöl

29.9 M Ft
4 szoba
87 m2
Eladó családi ház
Eladó családi ház

Réde

53.9 M Ft
7 szoba
180 m2