River Life

Eladó ikerház
Budapest, X. kerület, Újhegy

+ 17 kép 1/20
149 500 000 Ft149.5 M Ft 874 269 Ft/m2
5 szoba
171 m²
építés éve:1982

Részletes adatok

Telekméret: 526 m2
Fűtés: Héra
Parkolás: Garázs
Energetikai besorolás: Nem adta meg a hirdető

Az OTP Bank lakáshitel ajánlataFizetett hirdetés

+36 20 588
Goldea Edit Anikó
referens

Érdekel az OTP Bank kedvezményes lakáshitel ajánlata? *

* A kérdésre „Igen” válasz bejelölése esetén, az „Üzenet küldése” gombra kattintva kijelentem, hogy az OTP Bank Nyrt. Adatkezelési tájékoztatójának tartalmát megismertem és tudomásul vettem.

Eladó ikerház leírása

Megvételre kínálunk, Budapest X. kerületében, Újhegy csendes kertvárosi részében, egy jó elosztású 3 szintes ikerházat.

Az ingatlan a 80-as évek elején, téglából épült, hasznos alapterülete 171 nm, mely tökéletes életteret biztosít, egy nagyobb család, vagy akár két generáció számára is.

Az ingatlanhoz 526nm, saját telekrész tartozik.

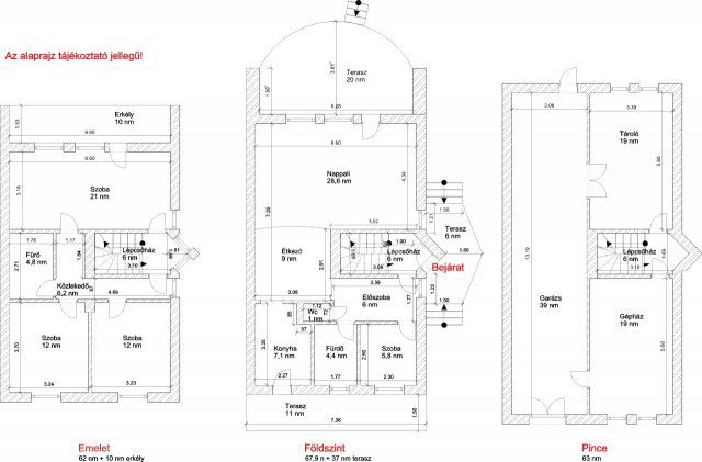
Az ingatlan beosztása:
Földszint -
-előszoba: 6nm,
-lépcsőház: 6nm,
-szoba: 5,8nm,
-fürdő: 4,4nm,
-wc: 1nm,
-konyha: 7,1nm,
-étkező: 9nm,
-nappali: 28,6nm
--------------------------
67,9 nm.
+ fedett terasz: 20 nm,
+ terasz 6 nm,
+ terasz 11 nm.

Emelet:
-lépcsőház: 6nm,
-közlekedő: 6,2nm,
-fürdő: 4,8nm,
-szoba: 12nm,
-szoba: 12nm,
-szoba: 21nm,
-----------------------
62 nm.
+erkély: 10nm,

Pince:
-garázs: 39nm,
-gépház: 19nm,
-tároló: 19nm,
-lépcsőház: 6nm,
---------------------
83 nm.

2015-ben egy nagyobb felújítás történt:
-festés,
-a fenti erkélyek beépítése,
-nyílászárók cseréje, (műanyag, redőnyös, szúnyoghálós)
-a ház külső szigetelést, színezést kapott,
-gázkazán, villanybojler cseréje,
-konyha felújítása.

A hátsó terasz, filagória, tároló, kerítés építése, 8 évvel ezelőtt.
A tárolóban, kézmosó+wc, fali csap került kialakításra.

Az ingatlanban, 3 db hűtő-fűtő klíma működik, melyeket 5 éven belül szereltek fel.

Riasztó rendszer van beépítve.

A fűtés gázkazánról működik, radiátoros hőleadással.

A beltéri ajtók, eredeti fából készültek.

Az ingatlan, saját mérőórákkal rendelkezik.

Az udvar parkosított, amiben 2db 35 éves diófa, és 1db 20 éves kajszi barack fa ad nyáron hűsítő árnyékot, és meghatározza a kert hangulatát.

Közelben iskolák, óvodák, bevásárlóközpont, minden egy helyen!
Kimondottan jó tömegközlekedés!

Amivel segítjük az Ön ingatlanvásárlását:
- ingyenes hitelügyintézés,
- jogi háttér,
- földhivatali ügyintézés,
- energetikai tanúsítvány,
- a vevő számára az ingatlanközvetítés ingyenes.

Irodánk 30 éves szakmai tapasztalattal áll ügyfelei rendelkezésére!

Várom szíves megkeresését! ...TOVÁBBI, TÖBBEZRES INGATLAN KÍNÁLAT: www.gdn-ingatlan.hu - GDN azonosító: 392852

Hirdetés feltöltve: 2026. 02. 24.

5 szobás ikerházak ára Budapesten

Ebből az összehasonlításból megtudhatod, hogyan viszonyul a lakás ára a környékbeli ikerházak átlagos árához. Ez nem azt jelenti, hogy ennyivel olcsóbb vagy drágább, mint amennyit a lakás ér, hanem hogy ennyivel tér el a környékbeli átlagtól.

Ennek a m² ára
Budapest m² ár
874 e Ft
1188 e Ft 26%
Ennek az ára
Budapest átlagár
149.5 M Ft m Ft
208.8 m Ft 28%

Az ingatlan elhelyezkedése

Cím: Budapest, X. kerület, Újhegy

Eladó ingatlanok a környékről

X. kerület, Újhegy
Eladó ikerház

Budapest, X. kerület

145 M Ft
4 szoba
122 m²
XI. kerület, Albertfalva, Papp Elemér utca 6
Eladó téglalakás

Budapest, XI. kerület

83.85 M Ft
2 szoba
43 m²
X. kerület
Eladó ikerház

Budapest, X. kerület

128 M Ft
4 szoba
129 m²
XI. kerület, Albertfalva, Papp Elemér utca 6
Eladó téglalakás

Budapest, XI. kerület

89 M Ft
2 szoba
47 m²
X. kerület
Eladó ikerház

Budapest, X. kerület

78 M Ft
5 szoba
190 m²
XI. kerület, Albertfalva, Papp Elemér utca 6
Eladó téglalakás

Budapest, XI. kerület

84.9 M Ft
2 szoba
44 m²
X. kerület, Felsőrákos
Eladó ikerház

Budapest, X. kerület

78 M Ft
5 szoba
190 m²
XIX. kerület, Kispest
Eladó iroda

Budapest, XIX. kerület

319.99 M Ft
511 m²
XI. kerület, Albertfalva, Papp Elemér utca 6
Eladó téglalakás

Budapest, XI. kerület

89.275 M Ft
2 szoba
50 m²
XI. kerület, Albertfalva, Papp Elemér utca 6
Eladó téglalakás

Budapest, XI. kerület

87.3 M Ft
2 szoba
45 m²
XI. kerület, Albertfalva, Papp Elemér utca 6
Eladó téglalakás

Budapest, XI. kerület

86.3 M Ft
2 szoba
45 m²
X. kerület
Eladó ikerház

Budapest, X. kerület

128 M Ft
4 szoba
129 m²
X. kerület, Felsőrákos
Eladó ikerház

Budapest, X. kerület

179 M Ft
5 szoba
130 m²
X. kerület
Eladó ikerház

Budapest, X. kerület

78 M Ft
5 szoba
190 m²
X. kerület
Eladó ikerház

Budapest, X. kerület

78 M Ft
5 szoba
190 m²
X. kerület, Újhegy
Eladó ikerház

Budapest, X. kerület

145 M Ft
4 szoba
122 m²
I. kerület
Eladó téglalakás

Budapest, I. kerület

119.9 M Ft
1 szoba
47 m²
XI. kerület, Albertfalva, Papp Elemér utca 6
Eladó téglalakás

Budapest, XI. kerület

90.8 M Ft
2 szoba
48 m²
VII. kerület
Eladó téglalakás

Budapest, VII. kerület

79 M Ft
1 szoba
44 m²
X. kerület
Eladó ikerház

Budapest, X. kerület

128 M Ft
4 szoba
129 m²
X. kerület
Eladó ikerház

Budapest, X. kerület

78 M Ft
5 szoba
190 m²
X. kerület, Újhegy
Eladó ikerház

Budapest, X. kerület

145 M Ft
4 szoba
122 m²
X. kerület, Újhegy
Eladó ikerház

Budapest, X. kerület

145 M Ft
4 szoba
122 m²
XIX. kerület
Eladó téglalakás

Budapest, XIX. kerület

67.5 M Ft
2 szoba
53 m²

Falusi CSOK ingatlanok

Kaposgyarmat
Eladó családi ház

Kaposgyarmat

695 M Ft
6 szoba
610 m²
Ceglédbercel
Eladó családi ház

Ceglédbercel

67 M Ft
4 szoba
165 m²
Csővár
Eladó családi ház

Csővár

62 M Ft
4 szoba
137 m²
Csemő
Eladó családi ház

Csemő

54.9 M Ft
4 szoba
108 m²
Soponya
Eladó családi ház

Soponya

38.5 M Ft
2 szoba
93 m²
Jakabszállás
Eladó családi ház

Jakabszállás

105 M Ft
6 szoba
180 m²
Tápiógyörgye
Eladó családi ház

Tápiógyörgye

16 M Ft
2 szoba
85 m²
Tápiógyörgye
Eladó családi ház

Tápiógyörgye

39 M Ft
2 + 1 szoba
57 m²