Seven Pearl

Eladó ikerház
Budapest, III. kerület, Békásmegyer

+ 17 kép 1/20
239 000 000 Ft239 M Ft 1 086 364 Ft/m2
6 szoba
220 m²
építés éve:2024

Részletes adatok

Telekméret: 260 m2
Fűtés: Gázkazán
Energetikai besorolás: Nem adta meg a hirdető

Az OTP Bank lakáshitel ajánlataFizetett hirdetés

+36 70 458
Potoczki László
referens

Érdekel az OTP Bank kedvezményes lakáshitel ajánlata? *

* A kérdésre „Igen” válasz bejelölése esetén, az „Üzenet küldése” gombra kattintva kijelentem, hogy az OTP Bank Nyrt. Adatkezelési tájékoztatójának tartalmát megismertem és tudomásul vettem.

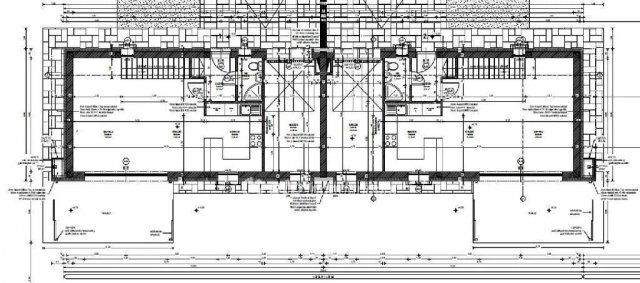
Eladó ikerház leírása

Budapest 3. kerület Dunához közeli részén - de nem ártéren - eladó ikerház mind két fele 95 %-os készültségben.
Szerződéskötéstől számítva 1 hónapon belül költözhetők.
Részletek: A házakhoz tartozó telek területek 259 illetve 198 nm. A két ház között extra szigetelés készült.
3 szint, 6 szoba, dupla komfort. Cölöp alap, vasbeton födém, 30-as Porotherm tégla, 15 cm szigetelés, fa parketta és lépcső, 3 rétegű műanyag nyílászáró kívül aluminium burkolással, Internorm/Hörmann kapu, kézi illetve elektromos redőnyök, szúnyoghálók, Buderus kazán és bojler, kész konyhai kiállások. Teraszon vízcsatlakozási lehetőség. Saját mérőórák. Napelemes rendszer előkészítve - ELMÜ engedélyre vár, szintén előkészítve légkondi, riasztó, kamera, szauna, jacuzzi csatlakozás.
FONTOS! A szaniterek árát a meghirdetett ár NEM tartalmazza.
A megadott ár BRUTTÓ, 27 % ÁFÁ-t tartalmaz!
Lehetőség van a teraszon téli kert kialakítására.
A környék ideális, mind családok, mind nyugalmat kedvelők részére, hiszen a Duna part közelsége, kerékpár út, játszóterek, strand, éttermek, szórakozási lehetőség minden korosztály igényét kielégíti.
Előnyös elhelyezkedése pedig tökéletes kompromisszumot nyújt a jó közlekedési lehetőségekkel bíró, nyüzsgő városi élet és a kertváros csendes, idilli hangulata között.

Az OTP Ingatlanpont, mint egyetlen közvetlen banki hátterű ingatlanközvetítő társaság teljes körű ügyintézéssel áll az eladók és a vevők rendelkezésére! A kínálatunkból választott ingatlan finanszírozásához minősített fogyasztóbarát, piaci és kedvezményes hitel- és lízingkonstrukciókat kínálunk (lakásvásárlási hitel, CSOK plusz, szabad felhasználású hitel, babaváró hitel, céges hitelek, pályázatok, amennyiben az ügyfél és az ingatlan megfelel a feltételeknek). Az adásvételi szerződés megkötéséhez igény szerint megbízható ügyvédi közreműködést biztosítunk, és segítséget nyújtunk az adásvételhez kapcsolódó egyéb ügyek intézéséhez.
Ha az új ingatlana megvásárlásához a jelenlegi ingatlanát el kell adnia, abban is szívesen segítünk.

Referencia szám: M299344

Hirdetés feltöltve: 2025. 03. 26. Utoljára módosítva: 2026. 03. 19.

Az ingatlan elhelyezkedése

Cím: Budapest, III. kerület, Békásmegyer

Eladó ingatlanok a környékről

III. kerület
Eladó ikerház

Budapest, III. kerület

239 M Ft
6 szoba
188 m²
XIV. kerület
Eladó családi ház

Budapest, XIV. kerület

149.9 M Ft
5 szoba
190 m²
VI. kerület, Belső Terézváros, Nagymező u. 28
Eladó téglalakás

Budapest, VI. kerület

101 M Ft
1 + 2 szoba
40 m²
XVI. kerület
Eladó családi ház

Budapest, XVI. kerület

359 M Ft
7 szoba
499 m²
III. kerület, Ürömhegy
Eladó ikerház

Budapest, III. kerület

219 M Ft
3 + 2 szoba
151 m²
VIII. kerület
Eladó téglalakás

Budapest, VIII. kerület

99.8 M Ft
3 szoba
72 m²
III. kerület
Eladó ikerház

Budapest, III. kerület

254.9 M Ft
6 szoba
188 m²
III. kerület, Ürömhegy, Kőpor utca
Eladó ikerház

Budapest, III. kerület

265 M Ft
5 szoba
193 m²
XX. kerület, Erzsébetfalva
Eladó családi ház

Budapest, XX. kerület

85 M Ft
2 + 1 szoba
70 m²
VI. kerület, Belső Terézváros, Teréz krt. 8
Eladó téglalakás

Budapest, VI. kerület

95 M Ft
3 szoba
45 m²
VI. kerület, Belső Terézváros, Ó u. 11
Eladó téglalakás

Budapest, VI. kerület

304 M Ft
4 szoba
100 m²
VII. kerület
Eladó téglalakás

Budapest, VII. kerület

139.9 M Ft
3 szoba
138 m²
X. kerület, Óhegy
Eladó téglalakás

Budapest, X. kerület

26.9 M Ft
1 szoba
12 m²
VII. kerület
Eladó téglalakás

Budapest, VII. kerület

99.9 M Ft
2 szoba
91 m²
III. kerület, Ürömhegy, Kőpor utca
Eladó ikerház

Budapest, III. kerület

265 M Ft
5 szoba
193 m²
III. kerület, Rómaifürdő
Eladó ikerház

Budapest, III. kerület

312 M Ft
8 + 2 szoba
390 m²
III. kerület, ARANYHEGY
Eladó ikerház

Budapest, III. kerület

265 M Ft
5 szoba
210 m²
VII. kerület
Eladó téglalakás

Budapest, VII. kerület

110.9 M Ft
2 szoba
66 m²
III. kerület, Ürömhegy
Eladó ikerház

Budapest, III. kerület

229 M Ft
3 + 2 szoba
151 m²
III. kerület, Aranyhegy
Eladó ikerház

Budapest, III. kerület

265 M Ft
5 szoba
193 m²
III. kerület
Eladó ikerház

Budapest, III. kerület

269.9 M Ft
5 szoba
161 m²
XIV. kerület
Eladó téglalakás

Budapest, XIV. kerület

61.5 M Ft
1 szoba
41 m²
VI. kerület
Eladó téglalakás

Budapest, VI. kerület

295 M Ft
5 szoba
147 m²
III. kerület, Ürömhegy
Eladó ikerház

Budapest, III. kerület

295 M Ft
5 + 1 szoba
185 m²

Falusi CSOK ingatlanok

Szentmártonkáta
Eladó családi ház

Szentmártonkáta

35 M Ft
3 szoba
70 m²
Kőtelek
Eladó családi ház

Kőtelek

25 M Ft
2 szoba
90 m²
Szigetcsép
Eladó családi ház

Szigetcsép

35 M Ft
3 szoba
92 m²
Lengyeltóti
Eladó családi ház

Lengyeltóti

59.9 M Ft
5 szoba
205 m²
Szigetcsép
Eladó családi ház

Szigetcsép

110 M Ft
3 szoba
137 m²
Somlóvásárhely
Eladó családi ház

Somlóvásárhely

26.9 M Ft
2 + 1 szoba
102 m²
Balatonszárszó
Eladó családi ház

Balatonszárszó

178 M Ft
6 szoba
260 m²
Újhartyán
Eladó családi ház

Újhartyán

79.9 M Ft
3 szoba
72 m²