Pesti Házak

Eladó ikerház
Bocskaikert

+ 4 kép 1/7
70 000 000 Ft70 M Ft 721 649 Ft/m2
4 szoba
97 m2

Részletes adatok

Fűtés: Egyéb
Energetikai besorolás: Nem adta meg a hirdető

Az OTP Bank lakáshitel ajánlataFizetett hirdetés

+36 30 533
Dihen Viktória
Dihen Viktória e.v.

Érdekel az OTP Bank kedvezményes lakáshitel ajánlata? *

* A kérdésre „Igen” válasz bejelölése esetén, az „Üzenet küldése” gombra kattintva kijelentem, hogy az OTP Bank Nyrt. Adatkezelési tájékoztatójának tartalmát megismertem és tudomásul vettem.

Eladó ikerház leírása

- Várható átadás: 2025 Április
- 30-as téglából épül, beton alapra
- 15 cm szigetelés
- Fa tetőszerkezettel, Tondach cseréppel fedve készül
- Műanyag nyílászárók kerülnek beépítésre
- Fűtése: Hőszivattyú, az ingatlan összes helyiségében padlófűtés
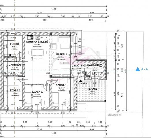
- Ingatlan helyiségei: Nappali-étkező-konyha, 3 szoba, gardrób, fürdőszoba, háztartási helyiség, előtér
- Hideg-meleg burkolatok 7500 Ft/ m2 áron választhatóak (ennél drágább kivitelezés is választható, amelynek költsége külön fizetendő)
- 1 db hűtő-fűtő klíma
- Terasz: 11,66 m2
- Telek mérete: 300 m2
- Ingatlan körüli járda: Előregyártott térkőbeton elemekből készülő beton burkolat
- Bármiféle egyéb műszaki tartalom megegyezés szerint kérhető

Ingatlan helyiségeinek méretei:
- Szoba: 12,15 m2
- Szoba: 11,09 m2
- Szoba: 10,20 m2
- Nappali: 31,75 m2
- Konyha-étkező: 10 m2
- Gardrób: 6,41 m2
- Fürdőszoba: 7,80 m2
- Háztartási helyiség: 4,66 m2
- Előtér: 3,23 m2
Amennyiben hirdetésem felkeltette érdeklődését, keressen bizalommal!

Hirdetés feltöltve: 2025. 11. 10. Utoljára módosítva: 2025. 12. 26.

4 szobás ikerházak ára Bocskaikerten

Ebből az összehasonlításból megtudhatod, hogyan viszonyul a lakás ára a környékbeli ikerházak átlagos árához. Ez nem azt jelenti, hogy ennyivel olcsóbb vagy drágább, mint amennyit a lakás ér, hanem hogy ennyivel tér el a környékbeli átlagtól.

Ennek a m² ára
Bocskaikert m² ár
722 e Ft
791 e Ft 9%
Ennek az ára
Bocskaikert átlagár
70 M Ft m Ft
77 m Ft 9%

Az ingatlan elhelyezkedése

Cím: Bocskaikert

Eladó ingatlanok a környékről

Eladó ikerház
Eladó ikerház

Hajdúsámson

81.02 M Ft
5 szoba
145 m2
Eladó családi ház
Eladó családi ház

Hajdúszoboszló

124.5 M Ft
6 szoba
156 m2
Eladó ikerház
Eladó ikerház

Debrecen

159 M Ft
3 szoba
143 m2
Eladó ikerház
Eladó ikerház

Debrecen

220 M Ft
5 szoba
170 m2
Eladó panellakás
Eladó panellakás

Hajdúszoboszló

44.9 M Ft
2 + 1 szoba
53 m2
Eladó ikerház
Eladó ikerház

Hajdúsámson

83.427 M Ft
5 szoba
145 m2
Eladó üzlethelyiség
Eladó üzlethelyiség

Debrecen, Belváros, Piac utca

3.9 M Ft
1 + 1 szoba
23 m2
Eladó családi ház
Eladó családi ház

Bagamér

19.9 M Ft
2 szoba
75 m2
Eladó téglalakás
Eladó téglalakás

Debrecen

55.9 M Ft
2 + 1 szoba
55 m2
Eladó ikerház
Eladó ikerház

Bocskaikert

83 M Ft
4 szoba
102 m2
Eladó ikerház
Eladó ikerház

Debrecen, Tégláskert, Tégláskert utca

73 M Ft
4 szoba
150 m2
Eladó családi ház
Eladó családi ház

Debrecen

21 M Ft
2 szoba
37 m2
Eladó ikerház
Eladó ikerház

Hajdúsámson

79.411 M Ft
5 szoba
145 m2
Eladó ikerház
Eladó ikerház

Hajdúsámson

82.091 M Ft
6 szoba
140 m2
Eladó ikerház
Eladó ikerház

Bocskaikert

99.9 M Ft
4 szoba
108 m2
Eladó ikerház
Eladó ikerház

Bocskaikert

73.87 M Ft
4 szoba
93 m2
Eladó telek
Eladó telek

Debrecen, Tank utca

8 M Ft
0 + 1 szoba
Eladó ikerház
Eladó ikerház

Debrecen

119 M Ft
3 szoba
107 m2
Eladó ikerház
Eladó ikerház

Bocskaikert

99 M Ft
4 szoba
105 m2
Eladó ikerház
Eladó ikerház

Bocskaikert

110 M Ft
5 szoba
116 m2
Eladó ikerház
Eladó ikerház

Hajdúsámson

79.897 M Ft
5 szoba
145 m2
Eladó ikerház
Eladó ikerház

Bocskaikert

72.3 M Ft
3 + 1 szoba
85 m2
Eladó ipari ingatlan
Eladó ipari ingatlan

Debrecen

857.25 M Ft
20000 m²
Eladó ikerház
Eladó ikerház

Debrecen

237 M Ft
6 szoba
204 m2

Falusi CSOK ingatlanok

Eladó családi ház
Eladó családi ház

Annavölgy

79 M Ft
2 szoba
67 m2
Eladó családi ház
Eladó családi ház

Dunaalmás

52.5 M Ft
3 + 1 szoba
140 m2
Eladó családi ház
Eladó családi ház

Tápióbicske

38 M Ft
3 szoba
50 m2
Eladó családi ház
Eladó családi ház

Zákány, Május 1. utca

39.9 M Ft
2 szoba
112 m2
Eladó családi ház
Eladó családi ház

Kondorfa

28.5 M Ft
3 + 1 szoba
65 m2
Eladó családi ház
Eladó családi ház

Ádánd

69.9 M Ft
6 szoba
251 m2
Eladó családi ház
Eladó családi ház

Előszállás

69.9 M Ft
6 szoba
238 m2
Eladó családi ház
Eladó családi ház

Rábaszentmihály

65 M Ft
3 szoba
156 m2