Astora Márvány8

Eladó ikerház
Bocskaikert

77 400 000 Ft77.4 M Ft 841 304 Ft/m2
4 szoba
92 m²
építés éve:2026

Részletes adatok

Telekméret: 570 m2
Fűtés: Gázkazán
Közmű: Villany
Energetikai besorolás: Nem adta meg a hirdető

Az OTP Bank lakáshitel ajánlataFizetett hirdetés

+36 70 465
Takács Tamás
referens

Érdekel az OTP Bank kedvezményes lakáshitel ajánlata? *

* A kérdésre „Igen” válasz bejelölése esetén, az „Üzenet küldése” gombra kattintva kijelentem, hogy az OTP Bank Nyrt. Adatkezelési tájékoztatójának tartalmát megismertem és tudomásul vettem.

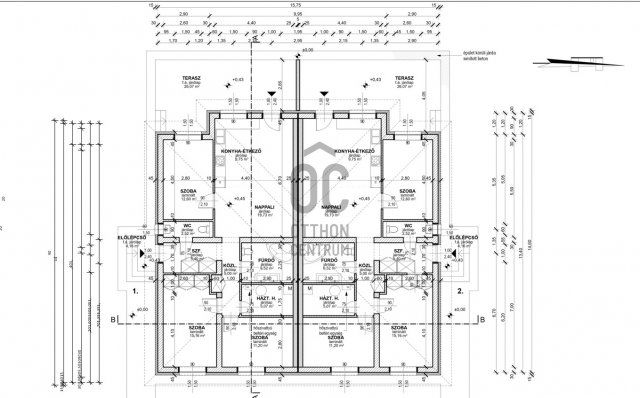
Eladó ikerház leírása

Bocskaikert csendes, nyugodt részén, 570 m²-es telken modern kialakítású, új építésű ikerház épül, amely ideális választás mindazok számára, akik korszerű és energiatakarékos otthont keresnek.
Az ingatlan egy 92,86 m²-es, új építésű, 3 szobás + amerikai konyhás-nappalis ikerház, amely átgondolt térkialakítással és kimagasló műszaki tartalommal valósul meg.

Szerkezet és szigetelés:
- 30 cm-es Porotherm/Leier tégla falazat
- 15 cm homlokzati EPS hőszigetelés
- 10 cm XPS lábazati szigetelés
- 30 cm födémszigetelés
- 3 rétegű üvegezésű, 6 légkamrás műanyag nyílászárók
- A korszerű gépészet és a modern technológia hosszú távon alacsony fenntartási költséget biztosít.

Fűtés és gépészet:
- korszerű padlófűtés, vagy gáz hiányában modern hőszivattyús rendszer
- a vételár része 2 db inverteres klíma
- energiahatékony, alacsony rezsijű működés
- közművek telken belüli csatlakoztatása (amennyiben adott)
- városi víz hiányában házi vízmű
- csatorna hiányában 3 m³-es zárt szennyvíztartály (igény szerint nagyobb kapacitással, felár ellenében)

Az építkezés kezdete: 2026.

A kivitelező az ügyfél igényei szerint is vállalja az építést, akár családi ház kivitelezését is 1141 m²-es telken, 600 000 Ft/m² áron, 2026. március 15-ig érvényes ajánlattal.

Ez az ingatlan kiváló választás mindazoknak, akik megbízható kivitelezésű, jól szigetelt, energiatakarékos új otthont szeretnének nyugodt környezetben, Bocskaikert kedvelt részén.

Érdeklődjön most, és foglalja le időben új otthonát!

Hirdetés feltöltve: 2026. 03. 04.

4 szobás ikerházak ára Bocskaikerten

Ebből az összehasonlításból megtudhatod, hogyan viszonyul a lakás ára a környékbeli ikerházak átlagos árához. Ez nem azt jelenti, hogy ennyivel olcsóbb vagy drágább, mint amennyit a lakás ér, hanem hogy ennyivel tér el a környékbeli átlagtól.

Ennek a m² ára
Bocskaikert m² ár
841 e Ft
791 e Ft -6%
Ennek az ára
Bocskaikert átlagár
77.4 M Ft m Ft
77 m Ft -1%

Az ingatlan elhelyezkedése

Cím: Bocskaikert

Eladó ingatlanok a környékről

Debrecen
Eladó panellakás

Debrecen

67 M Ft
2 szoba
60 m²
Berettyóújfalu, Szabó Pál
Eladó családi ház

Berettyóújfalu

44.3 M Ft
3 szoba
87 m²
Debrecen
Eladó családi ház

Debrecen

107 M Ft
7 szoba
198 m²
Debrecen
Eladó ikerház

Debrecen

315 M Ft
8 szoba
310 m²
Debrecen
Eladó ikerház

Debrecen

159 M Ft
3 szoba
143 m²
Bocskaikert
Eladó ikerház

Bocskaikert

83 M Ft
4 szoba
100 m²
Nádudvar
Eladó családi ház

Nádudvar

15 M Ft
2 + 1 szoba
65 m²
Debrecen, Széchenyikert, Széchenyi utca
Eladó ikerház

Debrecen

175 M Ft
5 szoba
120 m²
Debrecen
Eladó ikerház

Debrecen

150 M Ft
5 szoba
143 m²
Debrecen
Eladó ikerház

Debrecen

150 M Ft
5 szoba
143 m²
Debrecen
Eladó ikerház

Debrecen

150 M Ft
5 szoba
143 m²
Debrecen
Eladó ikerház

Debrecen

74.99 M Ft
3 szoba
110 m²
Létavértes
Eladó ikerház

Létavértes

45 M Ft
3 szoba
75 m²
Debrecen
Eladó ikerház

Debrecen

150 M Ft
5 szoba
143 m²
Biharkeresztes
Eladó családi ház

Biharkeresztes

82.99 M Ft
5 szoba
115 m²
Hosszúpályi
Eladó családi ház

Hosszúpályi

38.7 M Ft
2 szoba
100 m²
Konyár, Rákóczi utca
Eladó családi ház

Konyár

16 M Ft
2 + 1 szoba
78 m²
Debrecen
Eladó családi ház

Debrecen

89.9 M Ft
3 + 1 szoba
140 m²
Debrecen
Eladó téglalakás

Debrecen

81 M Ft
2 szoba
60 m²
Debrecen, Tégláskert, Tégláskert utca
Eladó ikerház

Debrecen

73 M Ft
4 szoba
150 m²
Sárrétudvari, Petőfi utca
Eladó családi ház

Sárrétudvari

5.7 M Ft
2 szoba
54 m²
Debrecen
Eladó ikerház

Debrecen

185.5 M Ft
3 szoba
212 m²
Balmazújváros
Eladó családi ház

Balmazújváros

54.9 M Ft
3 szoba
92 m²
Debrecen
Eladó ikerház

Debrecen

160.125 M Ft
4 szoba
160 m²

Falusi CSOK ingatlanok

Helesfa
Eladó családi ház

Helesfa

17.999 M Ft
2 szoba
74 m²
Tápióbicske
Eladó családi ház

Tápióbicske

15 M Ft
2 szoba
62 m²
Németkér
Eladó családi ház

Németkér

149.9 M Ft
2 szoba
540 m²
Farmos
Eladó családi ház

Farmos

64.9 M Ft
3 szoba
101 m²
Ceglédbercel, Aranyhegy utca
Eladó családi ház

Ceglédbercel

99.9 M Ft
5 szoba
110 m²
Vajta
Eladó családi ház

Vajta

55 M Ft
2 + 2 szoba
150 m²
Tápiószőlős
Eladó családi ház

Tápiószőlős

47.5 M Ft
5 szoba
122 m²
Úri
Eladó családi ház

Úri

149 M Ft
5 szoba
279 m²