Aerogate Homes

Eladó hotel
Szeged

+ 7 kép 1/10
289 000 000 Ft289 M Ft 850 000 Ft/m2
10 + 1 szoba
340 m2

Részletes adatok

Telekméret: 923 m2
Fűtés: Gázkazán
Parkolás: Garázs, Kocsibeálló
Közmű: Víz, Gáz, Villany, Csatorna
Energetikai besorolás: Nem adta meg a hirdető

Az OTP Bank lakáshitel ajánlataFizetett hirdetés

+36 30 346
Földvári Anna Ingatlan
referens

Érdekel az OTP Bank kedvezményes lakáshitel ajánlata? *

* A kérdésre „Igen” válasz bejelölése esetén, az „Üzenet küldése” gombra kattintva kijelentem, hogy az OTP Bank Nyrt. Adatkezelési tájékoztatójának tartalmát megismertem és tudomásul vettem.

Eladó hotel leírása

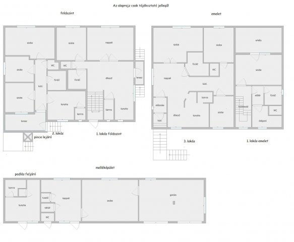
Szeged, Petőfitelep csendes és napfényes részén, nem is oly messze a Tiszavirág sportuszodától jelenleg is működő, 4 lakrészből álló vendégház eladó!
A 923 m2-es telken elhelyezkedő ingatlan 4 külön bejáratú apartmanból áll.

Elosztását tekintve:

1-es "lakás":
- 104 m2, két szintes,
- nappali +2 hálószoba, dolgozószoba,
- konyha, étkező, kamra,
- 2 fürdőszoba és 2 WC,
- az emeleten egy 13,66 m2-es terasz alkotja.

2-es "lakás":
- 68,45 m2, földszinti,
- 3 hálószoba,
- konyha, kamra,
- fürdőszoba és külön WC,
- földszinti 8,6 m2-es terasz alkotja.

3. "lakás":
- 87/78,62 m2, emeleti,
- amerikai konyhás nappali, kamra,
- 3 hálószoba,
- fürdőszoba és külön WC alkotja.

A melléképületben kapott helyet a 4. "lakás", 67,95 m2 területű, egy konyha, kamra, nappali, 1 hálószoba, tusoló és WC elosztású.
Szintén a melléképület része a dupla garázs, mely 25 m2-es.

A házban lakó egységenként külön szabályozható a fűtés, külön mérhető a fogyasztás almérőkön keresztül. A fűtés cirkó kazánokkal biztosított, a nyílászárók műanyagok, redőnnyel és szúnyoghálóval felszerelve. Az ingatlan minél gazdaságosabb fenntarthatóságához a 3,5+6 kW-os napelem rendszer és a 8 cm-es szigetelés is hozzájárul. A ház felújítása 2019-ben történt meg.

Az udvarban kapott helyet még egy 14 m2-es, téliesíthető filagória, mely pazar kilátást nyújt a kertben pompázó sokféle növényre. A további gépkocsik tárolásáról pedig a 4 fedett beálló gondoskodik.

Az ingatlan jelenleg is működik, teljes berendezéssel eladó, akár hosszú távú kiadásra is kiválóan alkalmas, de munkások lakhelyeként is megállja a helyét.
A szállás a saját honlapján 5 csillagos, a többi szállás kereső oldalon 9,9-es, kiváló értékelést kapott.

Ajánlom mindenkinek, aki karnyújtásnyira a belvárostól értékálló befektetésre vágyik, ami szinte azonnal az ölébe hullhat!

További információért keressen bizalommal!

Hirdetés feltöltve: 2025. 11. 20. Utoljára módosítva: 2026. 01. 13.

Az ingatlan elhelyezkedése

Cím: Szeged

Eladó ingatlanok a környékről

Eladó hotel
Eladó hotel

Szeged

295 M Ft
10 szoba
300 m2
Eladó hotel
Eladó hotel

Zákányszék, Tanya 523

223.3 M Ft
54000 m²
748 m2
Eladó téglalakás
Eladó téglalakás

Szeged

57.949 M Ft
2 szoba
41 m2
Eladó hotel
Eladó hotel

Szeged

190 M Ft
5 szoba
268 m2
Eladó hotel
Eladó hotel

Szeged

190 M Ft
5 szoba
268 m2
Eladó hotel
Eladó hotel

Szatymaz, Jánosszállási kertsor

385 M Ft
12 szoba
2700 m2
Eladó hotel
Eladó hotel

Szatymaz

525 M Ft
14056 m²
605 m2
Eladó családi ház
Eladó családi ház

Hódmezővásárhely

39.5 M Ft
2 szoba
106 m2
Eladó hotel
Eladó hotel

Makó, Aradi utca

96.25 M Ft
5 szoba
160 m2
Eladó panellakás
Eladó panellakás

Szeged

48 M Ft
2 szoba
47 m2
Eladó üzlethelyiség
Eladó üzlethelyiség

Szeged

150 M Ft
270 m2
Eladó panellakás
Eladó panellakás

Szeged

54.9 M Ft
2 szoba
47 m2
Eladó panellakás
Eladó panellakás

Szeged, Rókus, Cső utca

46.9 M Ft
2 szoba
47 m2
Eladó hotel
Eladó hotel

Csongrád

165 M Ft
887 m²
200 m2
Eladó panellakás
Eladó panellakás

Szeged

49.9 M Ft
2 szoba
55 m2
Eladó hotel
Eladó hotel

Makó

275 M Ft
5 szoba
324 m2
Eladó telek
Eladó telek

Deszk

36 M Ft
1503 m²
Eladó üzlethelyiség
Eladó üzlethelyiség

Szeged

58 M Ft
15 m2
Eladó panellakás
Eladó panellakás

Szeged

54.9 M Ft
2 + 1 szoba
63 m2
Eladó hotel
Eladó hotel

Szeged

795 M Ft
692 m²
585 m2
Eladó ipari ingatlan
Eladó ipari ingatlan

Hódmezővásárhely

70 M Ft
12638 m²
1080 m2
Eladó panellakás
Eladó panellakás

Szeged

54.9 M Ft
2 szoba
47 m2
Eladó hotel
Eladó hotel

Szeged

429.9 M Ft
11 szoba
396 m2
Eladó családi ház
Eladó családi ház

Kistelek, Pacsirta utca

26.9 M Ft
2 szoba
56 m2

Falusi CSOK ingatlanok

Eladó családi ház
Eladó családi ház

Pannonhalma

83.9 M Ft
4 szoba
97 m2
Eladó családi ház
Eladó családi ház

Fonyód

89.9 M Ft
7 szoba
151 m2
Eladó családi ház
Eladó családi ház

Parád

20 M Ft
3 szoba
180 m2
Eladó családi ház
Eladó családi ház

Szentbékkálla, Szentbékkálla

63.9 M Ft
2 szoba
143 m2
Eladó családi ház
Eladó családi ház

Recsk

35 M Ft
2 szoba
90 m2
Eladó családi ház
Eladó családi ház

Jakabszállás

69.99 M Ft
1 + 4 szoba
91 m2
Eladó családi ház
Eladó családi ház

Recsk

40 M Ft
3 + 1 szoba
130 m2
Eladó családi ház
Eladó családi ház

Szigetcsép, Szabadság utca

62 M Ft
4 szoba
120 m2