Eladó családi ház
Zamárdi 
Részletes adatok
Az OTP Bank lakáshitel ajánlataFizetett hirdetés
Induló törlesztőrészlet
101 262 Ft /hóTörlesztőrészlet a 13. hónaptól
129 106 Ft /hóInduló törlesztőrészlet
135 016 Ft /hóTörlesztőrészlet a 13. hónaptól
172 142 Ft /hóA tájékoztatás nem teljes körű és nem minősül ajánlattételnek. Az OTP Évnyerő Lakáshitelei 1 éves türelmi idős kölcsönök, amellyel az első 12 hónapban alacsonyabb a havi törlesztőrészlet. A tőke törlesztését a 13. hónaptól kell megkezdeni.
Eladó családi ház leírása
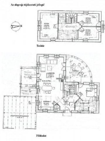
Balaton déli part, Zamárdi, 188 m2 családi ház, 578 m2 telek eladó. 
A két szintes ingatlan a település üdülőövezetében, csendes, nyugodt, átmenő forgalomtól mentes környezetben helyezkedik el, 300 méterre a kiépített szabadstrandtól. 
A 135 m2-es ház lakótereit hangulatos, fedett, szakaszosan vagy akár teljes egészében nyitható, beüvegezett teraszok, fedett, nyitott terasz és erkély egészítik ki összesen 75 m2 területen. A hasznos alapterületet tovább növeli egy 38 m2-es, két állásos, fedett gépkocsibeálló. 
A jól megtervezett, praktikus kialakítású ingatlan fűtését internetről is irányítható gázkazán biztosítja padlófűtéssel és radiátor hőleadókkal. A minden évszakban megfelelő hőmérsékletet és kellemes klímát 44 cm-es hőszigetelt falak és további fali-, illetve tetőtéri szigetelés, valamint 3 rétegű, fa nyílászárók garantálják. Az ingatlan értékét növeli két kerti tároló, valamint további gépkocsi beállók, hajóállvány és kerti medence. A mediterrán stílusú ház udvara is gondosan tervezett, harmonikus. 
A lakóház kiválóan alkalmas nagyobb családok, akár két generáció együttélésére, de tökéletes választás lehet nyaralásra, valamint befektetési céllal részben vagy egészben kiadásra is. 
Az ár tartalmazza a teljes berendezést. 
Lokáció tekintetében egyedülálló, ritka lehetőség. Kiváló minőség számos egyedi részlettel, extrákkal: kamerák, riasztó, elektromos, illetve időjárásnak megfelelően önműködő redőnyök, LED világítás, teraszon előkészített nyári konyha, kandallónak előkészített kémény, automata öntözőrendszer stb.! Bővebb információért keressen telefonon!
M308553
Referencia szám: M308553-ZE
Hirdetés feltöltve: 2025. 08. 01. Utoljára módosítva: 2025. 10. 31.
5 szobás családi házak ára Zamárdiban
Ebből az összehasonlításból megtudhatod, hogyan viszonyul a lakás ára a környékbeli családi házak átlagos árához. Ez nem azt jelenti, hogy ennyivel olcsóbb vagy drágább, mint amennyit a lakás ér, hanem hogy ennyivel tér el a környékbeli átlagtól.
Az ingatlan elhelyezkedése
Cím: Zamárdi
Eladó családi házak a környékről
 
 
 
 
 
 
 
 
 
 
 
 
 
 
 
 
 
 
 
 
 
 
 
 
 
 
 
 
 
 
 
 
 
 
