Avico Greentop

Eladó családi ház
Visegrád

+ 14 kép 1/17
110 000 000 Ft110 M Ft 474 138 Ft/m2
6 szoba
232 m²
építés éve:1930

Részletes adatok

Állapot: Felújított
Telekméret: 1063 m2
Fűtés: Gázkazán
Parkolás: Garázs
Közmű: Víz, Gáz, Villany, Csatorna, Szélessáv, Telefon
Energetikai besorolás: F

Az OTP Bank lakáshitel ajánlataFizetett hirdetés

+36 70 202
BINGO Ingatlaniroda
BINGO Ingatlaniroda

Érdekel az OTP Bank kedvezményes lakáshitel ajánlata? *

* A kérdésre „Igen” válasz bejelölése esetén, az „Üzenet küldése” gombra kattintva kijelentem, hogy az OTP Bank Nyrt. Adatkezelési tájékoztatójának tartalmát megismertem és tudomásul vettem.

Eladó családi ház leírása

ÁRZUHANÁS! ÁPRILIS 30-IG érvényes az ár!

MEGLEPŐEN
KIS REZSI - NAGY HÁZ - 2 önálló bejáratú (és egybe is nyíló) lakás, így dupla támogatott gázár használatos ingatlan!

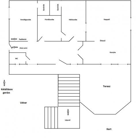
! VIDEÓ, ALAPRAJZOK segítik elképzelni, hogy megfelelhet-e az ÖN elvárásainak ez az álomhelyen lévő álomkertben álló 2 lakásos ház...

(További videóval rendelkezem, a ház másik, vagyis a kertkapcsolatos lakásáról is! - kérésre e-mailben elküldöm!)

VISEGRÁDI KURIÓZUM?

Igen, mert kevés megnyugtatóan megvehető eladó ingatlan van Visegrádon! Ráadásul egy madárcsicsergős, mégis központban lévő, páratlanul jó fekvésű, A DUNA vízállásától nem veszélyeztetett, és nem a hegytetőn lévő ingatlan!

Teher- és permentes az ingatlan!

Az ingatlan Visegrád csendes belvárosában található, kialakult környezetben, panorámás, családi ház besorolású!

Egy nyugalmat árasztó, gyönyörű kertben lévő belső 2 szintes, külső és belső lépcsőn is megközelíthető, így 2 külön bejáratú, 2 független konyhás, 3 fürdőszobás lakásból a kertkapcsolatoshoz és az emeleti lakáshoz is óriási, intim terasz tartozik!
Jelenleg a 3. lakószinten, ami az emeleti lakásból nyíló tetőtér 1 napos, tágas, klímával kiegészített szoba lett kialakítva, így még bővíthető a lakótér.
A kert végében egy gyönyörű, 22 nm-es címeres téglás borospince bújik meg, mellette kb. 30 nm fedett tároló szolgálja a vegyes tüzelésű kazánhoz a famennyiség, vagy bármi egyéb tárolását, mert tényleg védett az időjárástól ez a +tároló, ha nem elegendő a dupla garázs vagy a mellette lévő nagy méretű kazánház/kutyamosó/kamra/tároló helyiség a tároláshoz.
A földszinten lévő lakásban egy szaunával kombinált fürdőszoba lett kialakítva.

A garázsban 2 autó kényelmesen, egymás mellett is elfér!

A kertben további autók parkolhatnak, akár egymás mellett is!

Az ingatlan rendkívüli helyen van Visegrádon belül: NEM ÁRTERÜLETEN, nem a hegytetőn, gyalogosan könnyen elérhető a tömegközlekedés, bevásárlás stb.

A kert is szépen karbantartott, nyugalmat árasztó!

Teher- és permentes az ingatlan!

Bővebb információt telefonon vagy személyesen tudok adni az ingatlanról!

Az eladás sürgős! Aki előbb tud dönteni, azé lehet az ingatlan!

A fotók, az alaprajzok és a hirdetésszöveg szellemi termék, melynek másolása, megjelentetése jogkövetkezménnyel jár.

Hirdetés feltöltve: 2026. 03. 05. Utoljára módosítva: 2026. 03. 25.

Az ingatlan elhelyezkedése

Cím: Visegrád

Eladó ingatlanok a környékről

Tápiószele
Eladó családi ház

Tápiószele

32.9 M Ft
4 szoba
200 m²
Visegrád
Eladó családi ház

Visegrád

63 M Ft
2 szoba
66 m²
Csévharaszt
Eladó családi ház

Csévharaszt

84.99 M Ft
4 szoba
93 m²
Érd
Eladó családi ház

Érd

164.9 M Ft
5 szoba
192 m²
Pécel, Reményik Sándor utca
Eladó családi ház

Pécel

296 M Ft
6 szoba
396 m²
Visegrád
Eladó családi ház

Visegrád

110 M Ft
10 szoba
312 m²
Szigetszentmiklós
Eladó telek

Szigetszentmiklós

15 M Ft
1406 m²
0 m²
Tápiószele
Eladó családi ház

Tápiószele

37.9 M Ft
4 szoba
141 m²
Gyál
Eladó telek

Gyál

49 M Ft
705 m²
0 m²
Tápiószele
Eladó családi ház

Tápiószele

11.9 M Ft
3 szoba
62 m²
Visegrád
Eladó családi ház

Visegrád

96.9 M Ft
4 szoba
110 m²
Visegrád
Eladó családi ház

Visegrád

139.9 M Ft
6 szoba
257 m²
Visegrád
Eladó családi ház

Visegrád

99.9 M Ft
3 szoba
135 m²
Budakeszi, Makkosmária
Eladó családi ház

Budakeszi

100 M Ft
1 szoba
10 m²
Budakeszi, Budakeszi kertváros
Eladó családi ház

Budakeszi

229 M Ft
10 szoba
450 m²
Visegrád, Rákóczi utca
Eladó családi ház

Visegrád

110 M Ft
6 szoba
263 m²
Monorierdő
Eladó nyaraló

Monorierdő

37.5 M Ft
2 szoba
64 m²
Jászkarajenő
Eladó családi ház

Jászkarajenő

79.8 M Ft
3 szoba
94 m²
Visegrád
Eladó családi ház

Visegrád

562.5 M Ft
4 szoba
325 m²
Tápiószőlős
Eladó családi ház

Tápiószőlős

34.9 M Ft
5 szoba
210 m²
Visegrád
Eladó családi ház

Visegrád

199 M Ft
5 szoba
250 m²
Tápiószentmárton
Eladó családi ház

Tápiószentmárton

48 M Ft
5 szoba
180 m²
Diósd
Eladó ikerház

Diósd

109.9 M Ft
8 + 2 szoba
219 m²
Tápiószentmárton
Eladó családi ház

Tápiószentmárton

7.9 M Ft
2 + 1 szoba
86 m²

Falusi CSOK ingatlanok

Véménd
Eladó családi ház

Véménd

81.9 M Ft
3 szoba
150 m²
Csemő
Eladó családi ház

Csemő

61.9 M Ft
3 szoba
88 m²
Tóalmás
Eladó családi ház

Tóalmás

31.5 M Ft
2 szoba
43 m²
Osztopán
Eladó családi ház

Osztopán

26.6 M Ft
2 szoba
73 m²
Nemesszentandrás
Eladó családi ház

Nemesszentandrás

25 M Ft
2 szoba
92 m²
Kemecse
Eladó családi ház

Kemecse

71.9 M Ft
4 szoba
144 m²
Tápiógyörgye
Eladó családi ház

Tápiógyörgye

14.9 M Ft
2 szoba
60 m²
Szentmártonkáta
Eladó családi ház

Szentmártonkáta

35 M Ft
3 szoba
70 m²