Kedves Felhasználónk! Rendszerfrissítés miatt az oldalunk 2026. február 9-én 12 órától várhatóan 20 óráig nem lesz elérhető. Köszönjük megértésed!
BAM Living

Eladó családi ház
Versend

Figyelem!

Ez az ingatlan a 2019.07.01-től induló falusi CSOK által támogatott településen található

+ 16 kép 1/19
16 900 000 Ft16.9 M Ft 135 200 Ft/m2
4 szoba
125 m2
építés éve:1974

Részletes adatok

Állapot: Átlagos
Telekméret: 1685 m2
Fűtés: Gázkonvektor
Energetikai besorolás: Nem adta meg a hirdető

Az OTP Bank lakáshitel ajánlataFizetett hirdetés

+36 20 502
Szenk László
Otp ingatlanpont Mohács

Érdekel az OTP Bank kedvezményes lakáshitel ajánlata? *

* A kérdésre „Igen” válasz bejelölése esetén, az „Üzenet küldése” gombra kattintva kijelentem, hogy az OTP Bank Nyrt. Adatkezelési tájékoztatójának tartalmát megismertem és tudomásul vettem.

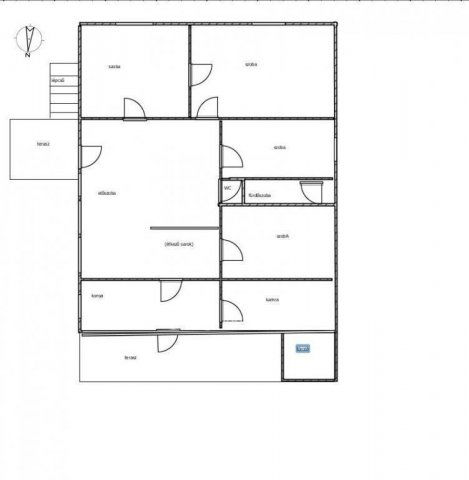
Eladó családi ház leírása

Bóly vonzáskörzetében eladó egy tágas, világos családi ház csendes, intim telken! Versend településén eladásra kínálok egy 125 nm-es, 4 szobás családi házat, ami 1 685nm-es telken helyezkedik el. Az ingatlan1974-ben épült, tégla falazatú, szerkezetileg stabil, belső terei átlagosak, de ízlés szerint korszerűsíthető. Fűtése gázkonvektorral és villanyradiátorral megoldott. A telek intim, az utcáról nem látható, ami maximális magánszférát biztosít. Az udvaron található ólak és melléképületek további lehetőségeket rejtenek magukban, ami érték növelést eredményezhet. Ideális kert kialakításhoz, hobbihoz, tárolásra, vagy akár háziállattartásra. Elhelyezkedése Versendnek, Baranya vármegye délkeleti részén fekszik, mindössze 6 km Bólytól, 15km-re Mohácstól és 25 km Pécstől. A település közvetlenül a 57-es főút mellett fekszik, így a közlekedés egyszerű, miközben a falusi nyugalom megmarad. M6-os autópálya elérhető közelségben van. Az ingatlan azonnal költözhető, így akár rögtön birtokba vehető. A vásárlás, Támogatott Otthon Start Programon keresztül is lehetséges. Amennyiben felkeltette érdeklődését az ingatlan, hívjon, és tekintse meg személyesen!

Hirdetés feltöltve: 2026. 01. 10. Utoljára módosítva: 2026. 01. 13.

Az ingatlan elhelyezkedése

Cím: Versend

Eladó ingatlanok a környékről

Eladó családi ház
Eladó családi ház

Pécs, Szabolcsfalu, Szabadságharc utca

58.99 M Ft
3 szoba
240 m2
Eladó családi ház
Eladó családi ház

Nagyharsány, Tarnóczai utca

69.9 M Ft
1 szoba
230 m2
Eladó családi ház
Eladó családi ház

Pécs

126.9 M Ft
5 + 1 szoba
190 m2
Eladó családi ház
Eladó családi ház

Pécs, Deindol, Nagydeindoli

5.9 M Ft
902 m2
Eladó családi ház
Eladó családi ház

Versend

75 M Ft
3 szoba
123 m2
Eladó családi ház
Eladó családi ház

Pécs

115 M Ft
4 szoba
135 m2
Eladó panellakás
Eladó panellakás

Pécs

51.9 M Ft
2 szoba
52 m2
Eladó panellakás
Eladó panellakás

Pécs

64.99 M Ft
3 szoba
54 m2
Eladó panellakás
Eladó panellakás

Pécs

47.9 M Ft
4 szoba
74 m2
Eladó téglalakás
Eladó téglalakás

Pécs

89.9 M Ft
3 szoba
70 m2
Eladó családi ház
Eladó családi ház

Vokány

20 M Ft
2 szoba
65 m2
Eladó családi ház
Eladó családi ház

Pellérd

84.9 M Ft
3 + 2 szoba
170 m2
Eladó családi ház
Eladó családi ház

Pécs, Kertváros, Táncsics Mihály utca

85 M Ft
6 szoba
185 m2
Eladó családi ház
Eladó családi ház

Pécs, Deindol, Nagydeindoli

5.9 M Ft
902 m2
Eladó családi ház
Eladó családi ház

Szajk

25.8 M Ft
4 szoba
120 m2
Eladó téglalakás
Eladó téglalakás

Pécs

175 M Ft
4 szoba
93 m2
Eladó családi ház
Eladó családi ház

Pécs

42.9 M Ft
3 szoba
99 m2
Eladó téglalakás
Eladó téglalakás

Pécs

64.9 M Ft
3 szoba
50 m2
Eladó családi ház
Eladó családi ház

Bóly

37.9 M Ft
3 szoba
80 m2
Eladó téglalakás
Eladó téglalakás

Pécs

59.9 M Ft
1 + 2 szoba
73 m2
Eladó családi ház
Eladó családi ház

Villány

15.9 M Ft
6 + 1 szoba
220 m2
Eladó családi ház
Eladó családi ház

Siklós, Külterület

61.5 M Ft
2 szoba
110 m2
Eladó családi ház
Eladó családi ház

Versend

16.9 M Ft
4 szoba
125 m2
Eladó téglalakás
Eladó téglalakás

Pécs

89.9 M Ft
3 szoba
70 m2

Falusi CSOK ingatlanok

Eladó családi ház
Eladó családi ház

Nyírtura

69.9 M Ft
4 szoba
120 m2
Eladó családi ház
Eladó családi ház

Csátalja, Táncsics Mihály utca 2

28 M Ft
3 szoba
100 m2
Eladó családi ház
Eladó családi ház

Hercegszántó

29.9 M Ft
4 szoba
130 m2
Eladó téglalakás
Eladó téglalakás

Balatonszemes

119.9 M Ft
2 szoba
81 m2
Eladó családi ház
Eladó családi ház

Badacsonytördemic

179.07 M Ft
4 szoba
160 m2
Eladó családi ház
Eladó családi ház

Tápióság

62 M Ft
4 szoba
72 m2
Eladó téglalakás
Eladó téglalakás

Kőröshegy

83.5 M Ft
2 szoba
65 m2
Eladó családi ház
Eladó családi ház

Bozsok

290 M Ft
6 szoba
370 m2

Falusi CSOK ingatlanok

Eladó családi ház
Eladó családi ház

Porva

74.6 M Ft
3 szoba
115 m2
Eladó családi ház
Eladó családi ház

Szabadbattyán

163.99 M Ft
5 szoba
255 m2
Eladó családi ház
Eladó családi ház

Szakmár

12.9 M Ft
3 + 1 szoba
90 m2
Eladó családi ház
Eladó családi ház

Bár

89.5 M Ft
4 + 1 szoba
172 m2
Eladó családi ház
Eladó családi ház

Kemeneshőgyész

8 M Ft
2 szoba
60 m2
Eladó családi ház
Eladó családi ház

Kál

31 M Ft
4 szoba
307 m2
Eladó családi ház
Eladó családi ház

Csemő

36.6 M Ft
1 szoba
48 m2
Eladó családi ház
Eladó családi ház

Szabadbattyán

67.5 M Ft
5 szoba
180 m2