Stay Family Park

Eladó családi ház
Versend

Figyelem!

Ez az ingatlan a 2019.07.01-től induló falusi CSOK által támogatott településen található

+ 16 kép 1/19
16 900 000 Ft16.9 M Ft 135 200 Ft/m2
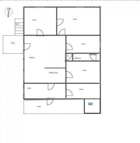
4 szoba
125 m2
építés éve:1974

Részletes adatok

Állapot: Átlagos
Telekméret: 1685 m2
Fűtés: Gázkonvektor
Energetikai besorolás: Nem adta meg a hirdető

Az OTP Bank lakáshitel ajánlataFizetett hirdetés

+36 70 393
Berkes Ilona
OTPIP - Pécs, Rákóczi út 19.

Érdekel az OTP Bank kedvezményes lakáshitel ajánlata? *

* A kérdésre „Igen” válasz bejelölése esetén, az „Üzenet küldése” gombra kattintva kijelentem, hogy az OTP Bank Nyrt. Adatkezelési tájékoztatójának tartalmát megismertem és tudomásul vettem.

Eladó családi ház leírása

Bóly vonzáskörzetében eladó egy tágas, világos családi ház csendes, intim telken! Versend településén eladásra kínálok egy 125 nm-es, 4 szobás családi házat, ami 1 685nm-es telken helyezkedik el. Az ingatlan1974-ben épült, tégla falazatú, szerkezetileg stabil, belső terei átlagosak, de ízlés szerint korszerűsíthető. Fűtése gázkonvektorral és villanyradiátorral megoldott. A telek intim, az utcáról nem látható, ami maximális magánszférát biztosít. Az udvaron található ólak és melléképületek további lehetőségeket rejtenek magukban, ami érték növelést eredményezhet. Ideális kert kialakításhoz, hobbihoz, tárolásra, vagy akár háziállattartásra. Elhelyezkedése Versendnek, Baranya vármegye délkeleti részén fekszik, mindössze 6 km Bólytól, 15km-re Mohácstól és 25 km Pécstől. A település közvetlenül a 57-es főút mellett fekszik, így a közlekedés egyszerű, miközben a falusi nyugalom megmarad. M6-os autópálya elérhető közelségben van. Az ingatlan azonnal költözhető, így akár rögtön birtokba vehető. A vásárlás, Támogatott Otthon Start Programon keresztül is lehetséges. Amennyiben felkeltette érdeklődését az ingatlan, hívjon, és tekintse meg személyesen!

Referencia szám: M317647

Hirdetés feltöltve: 2025. 11. 25. Utoljára módosítva: 2025. 11. 25.

Az ingatlan elhelyezkedése

Cím: Versend

Eladó ingatlanok a környékről

Eladó panellakás
Eladó panellakás

Pécs

57.9 M Ft
4 szoba
68 m2
Eladó panellakás
Eladó panellakás

Pécs

57.9 M Ft
3 szoba
63 m2
Eladó panellakás
Eladó panellakás

Pécs

58.9 M Ft
2 szoba
47 m2
Eladó téglalakás
Eladó téglalakás

Pécs

74.9 M Ft
3 szoba
73 m2
Eladó családi ház
Eladó családi ház

Pécs, Kertváros, Táncsics Mihály utca

74.9 M Ft
6 szoba
185 m2
Eladó családi ház
Eladó családi ház

Versend

16.9 M Ft
4 szoba
125 m2
Eladó téglalakás
Eladó téglalakás

Pécs

23.6 M Ft
2 szoba
51 m2
Eladó családi ház
Eladó családi ház

Pécs, Ispitaalja, Bajcsy-Zsilinszky Endre utca

26.5 M Ft
1 szoba
44 m2
Eladó panellakás
Eladó panellakás

Pécs, Megyer, Aidinger János ut

45 M Ft
2 szoba
52 m2
Eladó családi ház
Eladó családi ház

Siklós

270 M Ft
8 szoba
600 m2
Eladó családi ház
Eladó családi ház

Versend, Jókai Mór utca 2

6.66 M Ft
1 + 1 szoba
109 m2
Eladó családi ház
Eladó családi ház

Versend

15.5 M Ft
5 szoba
140 m2
Eladó családi ház
Eladó családi ház

Pécs, Deindol, Nagydeindoli

5.9 M Ft
902 m2
Eladó családi ház
Eladó családi ház

Zaláta

7.5 M Ft
2 szoba
72 m2
Eladó téglalakás
Eladó téglalakás

Pécs, Uránváros, Esztergár Lajos utca

53.9 M Ft
2 szoba
58 m2
Eladó téglalakás
Eladó téglalakás

Pécs, Kertváros, Bálicsi út

69.9 M Ft
2 szoba
65 m2
Eladó családi ház
Eladó családi ház

Mohács

16.2 M Ft
4 szoba
96 m2
Eladó téglalakás
Eladó téglalakás

Pécs, Kertváros, Bálicsi út

79.9 M Ft
3 szoba
80 m2
Eladó családi ház
Eladó családi ház

Versend

16.9 M Ft
4 szoba
125 m2
Eladó családi ház
Eladó családi ház

Mohács, Szőlőhegy

43.5 M Ft
1 szoba
53 m2
Eladó családi ház
Eladó családi ház

Babarc, Béke utca

15.5 M Ft
5 szoba
145 m2
Eladó családi ház
Eladó családi ház

Versend

21.5 M Ft
4 szoba
128 m2
Eladó téglalakás
Eladó téglalakás

Pécs, Uránváros, Esztergár L. u. 1

55.9 M Ft
2 szoba
48 m2
Eladó családi ház
Eladó családi ház

Pécs, Szabolcsfalu, Szabadságharc utca

58.99 M Ft
3 szoba
240 m2

Falusi CSOK ingatlanok

Eladó családi ház
Eladó családi ház

Devecser

42.9 M Ft
3 szoba
100 m2
Eladó téglalakás
Eladó téglalakás

Balatonszemes

125.2 M Ft
2 szoba
50 m2
Eladó családi ház
Eladó családi ház

Újszilvás

39.5 M Ft
3 szoba
62 m2
Eladó családi ház
Eladó családi ház

Enese

78.9 M Ft
4 szoba
90 m2
Eladó panellakás
Eladó panellakás

Pétfürdő

49.9 M Ft
3 szoba
71 m2
Eladó családi ház
Eladó családi ház

Tápiószőlős

69 M Ft
3 szoba
77 m2
Eladó családi ház
Eladó családi ház

Abaújszántó

19.99 M Ft
3 szoba
84 m2
Eladó családi ház
Eladó családi ház

Nemesvid, Templom utca

16 M Ft
2 szoba
76 m2

Falusi CSOK ingatlanok

Eladó családi ház
Eladó családi ház

Újlengyel

108 M Ft
3 szoba
80 m2
Eladó családi ház
Eladó családi ház

Homokmégy

15.9 M Ft
2 + 1 szoba
78 m2
Eladó téglalakás
Eladó téglalakás

Balatonszemes

119.9 M Ft
2 szoba
81 m2
Eladó családi ház
Eladó családi ház

Adásztevel

8.9 M Ft
2 szoba
63 m2
Eladó családi ház
Eladó családi ház

Ceglédbercel

67 M Ft
3 szoba
173 m2
Eladó családi ház
Eladó családi ház

Somlóvásárhely

39.8 M Ft
1 szoba
78 m2
Eladó családi ház
Eladó családi ház

Marcaltő

26 M Ft
3 szoba
103 m2
Eladó családi ház
Eladó családi ház

Mikebuda

68.5 M Ft
2 szoba
90 m2