City Pearl

Eladó családi ház
Versend

Figyelem!

Ez az ingatlan a 2019.07.01-től induló falusi CSOK által támogatott településen található

+ 16 kép 1/19
16 900 000 Ft16.9 M Ft 135 200 Ft/m2
4 szoba
125 m2
építés éve:1974

Részletes adatok

Állapot: Átlagos
Telekméret: 1685 m2
Fűtés: Gázkonvektor
Energetikai besorolás: Nem adta meg a hirdető

Az OTP Bank lakáshitel ajánlataFizetett hirdetés

+36 20 509
Szabó Ágnes
Pécs Király utca 75 - OTP Ingatlanpont Iroda

Érdekel az OTP Bank kedvezményes lakáshitel ajánlata? *

* A kérdésre „Igen” válasz bejelölése esetén, az „Üzenet küldése” gombra kattintva kijelentem, hogy az OTP Bank Nyrt. Adatkezelési tájékoztatójának tartalmát megismertem és tudomásul vettem.

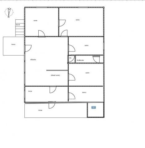
Eladó családi ház leírása

Bóly vonzáskörzetében eladó egy tágas, világos családi ház csendes, intim telken! Versend településén eladásra kínálok egy 125 nm-es, 4 szobás családi házat, ami 1 685nm-es telken helyezkedik el. Az ingatlan1974-ben épült, tégla falazatú, szerkezetileg stabil, belső terei átlagosak, de ízlés szerint korszerűsíthető. Fűtése gázkonvektorral és villanyradiátorral megoldott. A telek intim, az utcáról nem látható, ami maximális magánszférát biztosít. Az udvaron található ólak és melléképületek további lehetőségeket rejtenek magukban, ami érték növelést eredményezhet. Ideális kert kialakításhoz, hobbihoz, tárolásra, vagy akár háziállattartásra. Elhelyezkedése Versendnek, Baranya vármegye délkeleti részén fekszik, mindössze 6 km Bólytól, 15km-re Mohácstól és 25 km Pécstől. A település közvetlenül a 57-es főút mellett fekszik, így a közlekedés egyszerű, miközben a falusi nyugalom megmarad. M6-os autópálya elérhető közelségben van. Az ingatlan azonnal költözhető, így akár rögtön birtokba vehető. A vásárlás, Támogatott Otthon Start Programon keresztül is lehetséges. Amennyiben felkeltette érdeklődését az ingatlan, hívjon, és tekintse meg személyesen!

Hirdetés feltöltve: 2025. 11. 19. Utoljára módosítva: 2025. 11. 19.

Az ingatlan elhelyezkedése

Cím: Versend

Eladó ingatlanok a környékről

Eladó panellakás
Eladó panellakás

Pécs, Kertváros, Maléter Pál út

38.5 M Ft
1 + 1 szoba
40 m2
Eladó panellakás
Eladó panellakás

Pécs

43.9 M Ft
2 szoba
50 m2
Eladó családi ház
Eladó családi ház

Sásd

16.5 M Ft
3 szoba
116 m2
Eladó családi ház
Eladó családi ház

Zaláta

7.5 M Ft
2 szoba
72 m2
Eladó családi ház
Eladó családi ház

Pécsvárad

85 M Ft
4 szoba
100 m2
Eladó családi ház
Eladó családi ház

Mohács

50 M Ft
4 szoba
120 m2
Eladó családi ház
Eladó családi ház

Pécs, Kertváros, Táncsics Mihály utca

74.9 M Ft
6 szoba
185 m2
Eladó családi ház
Eladó családi ház

Pécs, Deindol, Nagydeindoli

5.9 M Ft
902 m2
Eladó téglalakás
Eladó téglalakás

Pécs

65.9 M Ft
3 szoba
53 m2
Eladó családi ház
Eladó családi ház

Versend

21.5 M Ft
4 szoba
128 m2
Eladó ikerház
Eladó ikerház

Pécs

99 M Ft
4 szoba
200 m2
Eladó családi ház
Eladó családi ház

Somogyviszló

5.5 M Ft
1 szoba
45 m2
Eladó családi ház
Eladó családi ház

Szigetvár

24.99 M Ft
2 + 1 szoba
105 m2
Eladó családi ház
Eladó családi ház

Bóly

89.9 M Ft
5 szoba
250 m2
Eladó családi ház
Eladó családi ház

Pécs

44.9 M Ft
3 szoba
150 m2
Eladó családi ház
Eladó családi ház

Pécs

69.9 M Ft
3 szoba
100 m2
Eladó családi ház
Eladó családi ház

Palotabozsok

9.9 M Ft
3 szoba
141 m2
Eladó családi ház
Eladó családi ház

Szigetvár

65.5 M Ft
3 szoba
109 m2
Eladó téglalakás
Eladó téglalakás

Pécs

74.5 M Ft
3 szoba
106 m2
Eladó panellakás
Eladó panellakás

Pécs, Megyer, Aidinger János utca

48 M Ft
3 szoba
64 m2
Eladó téglalakás
Eladó téglalakás

Pécs

89.9 M Ft
4 szoba
138 m2
Eladó családi ház
Eladó családi ház

Lippó, Kossuth

95.65 M Ft
2 szoba
160 m2
Eladó családi ház
Eladó családi ház

Versend

16.9 M Ft
4 szoba
125 m2
Eladó családi ház
Eladó családi ház

Pécs

122 M Ft
4 szoba
181 m2

Falusi CSOK ingatlanok

Eladó családi ház
Eladó családi ház

Somogygeszti

38.6 M Ft
3 + 1 szoba
98 m2
Eladó családi ház
Eladó családi ház

Pétfürdő

74.9 M Ft
3 szoba
89 m2
Eladó családi ház
Eladó családi ház

Orci

119.9 M Ft
6 szoba
200 m2
Eladó családi ház
Eladó családi ház

Szederkény

107.9 M Ft
6 szoba
224 m2
Eladó családi ház
Eladó családi ház

Balatonfenyves

199 M Ft
5 szoba
210 m2
Eladó családi ház
Eladó családi ház

Iváncsa

73.9 M Ft
1 + 3 szoba
97 m2
Eladó családi ház
Eladó családi ház

Orci

59.9 M Ft
3 szoba
101 m2
Eladó családi ház
Eladó családi ház

Szabadbattyán

30 M Ft
4 szoba
75 m2

Falusi CSOK ingatlanok

Eladó családi ház
Eladó családi ház

Hercegszántó, Arany János utca

25 M Ft
3 szoba
120 m2
Eladó családi ház
Eladó családi ház

Mezőfalva

39 M Ft
3 szoba
77 m2
Eladó családi ház
Eladó családi ház

Zengővárkony

35 M Ft
3 szoba
87 m2
Eladó családi ház
Eladó családi ház

Balatonhenye

120 M Ft
4 szoba
130 m2
Eladó családi ház
Eladó családi ház

Madaras

5.9 M Ft
3 szoba
90 m2
Eladó téglalakás
Eladó téglalakás

Nagyharsány

22.5 M Ft
3 szoba
71 m2
Eladó családi ház
Eladó családi ház

Csemő

54.9 M Ft
4 szoba
108 m2
Eladó családi ház
Eladó családi ház

Görcsöny

98 M Ft
4 szoba
134 m2