Avico

Eladó családi ház
Veresegyház

+ 17 kép 1/20
150 000 000 Ft150 M Ft 595 238 Ft/m2
6 szoba
252 m2
építés éve:1995

Részletes adatok

Telekméret: 751 m2
Fűtés: Gázkazán
Energetikai besorolás: Nem adta meg a hirdető

Az OTP Bank lakáshitel ajánlataFizetett hirdetés

+36 70 206
Tamásné Mocsári Ildikó
referens

Érdekel az OTP Bank kedvezményes lakáshitel ajánlata? *

* A kérdésre „Igen” válasz bejelölése esetén, az „Üzenet küldése” gombra kattintva kijelentem, hogy az OTP Bank Nyrt. Adatkezelési tájékoztatójának tartalmát megismertem és tudomásul vettem.

Eladó családi ház leírása

*** ELADÓ több generációs családi ház Széchenyidombon ***

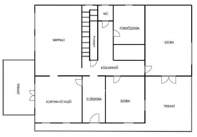
Megvételre kínálok Veresegyház közkedvelt területén, nyugodt, csendes lakóövezetben, egy 3 szintes, azonnal költözhető családi házat, hatalmas gyönyörű kerttel, medencével, dupla állásos garázzsal és további nyílt kocsibeállóval. A rendszeresen gondozott kertben öntözőrendszer is található.

A nettó 252 nm-es ingatlan, hatalmas tereket biztosít, napfényes, rengeteg holmi tárolására alkalmas. Tökéletes választás nagy családosok számára vagy akik idősebb generációval szeretnének összeköltözni. De ugyancsak jó választás lehet akár irodának, rendelőnek, esetleg magán óvodának is. A ház teljesen alápincézett, itt jelenleg egy elektromos kapuval ellátott dupla állásos garázs, egy tároló és egy mosókonyha/nyárikonyha és egy zuhanyzós fürdő van kialakítva.

A középső szinten kapott helyet egy előszoba, konyha, étkező, nappali, két hálószoba, két fürdő és mosdók illetve a 14.7 m2-es első terasz, mely a konyhából nyílik illetve a 27.7 m2-es hátsó terasz, mely a hálószobával kapcsolódik közvetlenül.

A legfelső szinten pedig egy szintén tágas nappali, 2 szoba és egy fürdő mosdóval került kialakításra.

Az ingatlan nem szigetelt, de 38-as téglából épült, tökéletes hőérzetet biztosít a téli és a nyári hónapokban egyaránt.

A fűtésért a pincében lévő gázkazán felel radiátoros hőleadással illetve a hűtő-fűtő klíma is alkalmasak erre a célra. A melegvízellátást két villanybojler oldja meg.

A bútorok igény esetén maradhatnak, megbeszélés szerint, a vételár részén felüli értéket képviselve.

Közelben: Veresegyház központja ahol szinten minden megtalálható, autóval 5 perc, gyalogosan maximum 15 perc, a távolsági busz és vonatállomás, óvodák, iskolák és gimnázium, boltok, piac, és a természet is karnyújtásnyira.

Tehermentes, 1/1-es tulajdon, rugalmasan költözhető.

Amennyiben érdekes leeht a számára, keressen a hét bármely napján rugalmasan mutatom!

Hivatkozás: M301713

Referencia szám: M301713-ZE

Hirdetés feltöltve: 2025. 11. 09. Utoljára módosítva: 2025. 11. 09.

Az ingatlan elhelyezkedése

Cím: Veresegyház

Eladó családi házak a környékről

Eladó családi ház
Eladó családi ház

Tahitótfalu

188 M Ft
7 szoba
280 m2
Eladó családi ház
Eladó családi ház

Veresegyház

136.8 M Ft
3 + 2 szoba
181 m2
Eladó családi ház
Eladó családi ház

Veresegyház

89 M Ft
1020 m²
199 m2
Eladó családi ház
Eladó családi ház

Veresegyház

149.9 M Ft
4 szoba
280 m2
Eladó családi ház
Eladó családi ház

Veresegyház

149.9 M Ft
2 szoba
280 m2
Eladó családi ház
Eladó családi ház

Veresegyház

149.9 M Ft
2 szoba
280 m2
Eladó családi ház
Eladó családi ház

Budakeszi, Makkosmária

100 M Ft
1 szoba
10 m2
Eladó családi ház
Eladó családi ház

Budaörs, Bányász utca

385 M Ft
6 szoba
300 m2
Eladó családi ház
Eladó családi ház

Veresegyház

325 M Ft
5 szoba
282 m2
Eladó családi ház
Eladó családi ház

Tápiószele

37.9 M Ft
4 szoba
141 m2
Eladó családi ház
Eladó családi ház

Budaörs, Városközpont utca

119.5 M Ft
5 + 1 szoba
140 m2
Eladó családi ház
Eladó családi ház

Dunakeszi

250 M Ft
4 szoba
180 m2
Eladó családi ház
Eladó családi ház

Veresegyház

149.9 M Ft
6 szoba
266 m2
Eladó családi ház
Eladó családi ház

Budakeszi, Budakeszi kertváros

229 M Ft
10 szoba
450 m2
Eladó családi ház
Eladó családi ház

Tápiószentmárton

7.9 M Ft
2 + 1 szoba
86 m2
Eladó családi ház
Eladó családi ház

Veresegyház, Salamon utca

119.9 M Ft
4 szoba
160 m2
Eladó családi ház
Eladó családi ház

Veresegyház

139 M Ft
7 szoba
240 m2
Eladó családi ház
Eladó családi ház

Tápiószele

32.9 M Ft
4 szoba
200 m2
Eladó családi ház
Eladó családi ház

Sződ, Rátóti utca

149.99 M Ft
11 szoba
270 m2
Eladó családi ház
Eladó családi ház

Veresegyház

220 M Ft
6 szoba
277 m2
Eladó családi ház
Eladó családi ház

Veresegyház

59.9 M Ft
2 szoba
60 m2
Eladó családi ház
Eladó családi ház

Gyál, Gyál út

169.9 M Ft
2 szoba
90 m2
Eladó családi ház
Eladó családi ház

Veresegyház

149.9 M Ft
2 szoba
280 m2
Eladó családi ház
Eladó családi ház

Kerepes

199 M Ft
6 szoba
360 m2

Falusi CSOK ingatlanok

Eladó családi ház
Eladó családi ház

Erdősmecske

32 M Ft
3 szoba
115 m2
Eladó családi ház
Eladó családi ház

Bábolna

90.3 M Ft
5 szoba
100 m2
Eladó családi ház
Eladó családi ház

Zalaszabar

248 M Ft
4 szoba
197 m2
Eladó családi ház
Eladó családi ház

Egyházaskozár

59 M Ft
4 szoba
162 m2
Eladó családi ház
Eladó családi ház

Békésszentandrás

23 M Ft
4 szoba
99 m2
Eladó családi ház
Eladó családi ház

Geresdlak

44.9 M Ft
4 + 1 szoba
200 m2
Eladó családi ház
Eladó családi ház

Katymár

6.7 M Ft
4 szoba
136 m2
Eladó családi ház
Eladó családi ház

Nagybaracska

42 M Ft
3 szoba
144 m2