NapForrás 20 - Buda

Eladó családi ház
Velence

+ 11 kép 1/14
69 000 000 Ft69 M Ft 690 000 Ft/m2
4 szoba
100 m²
építés éve:1976

Részletes adatok

Állapot: Átlagos
Telekméret: 473 m2
Fűtés: Gázkazán
Energetikai besorolás: Nem adta meg a hirdető

Az OTP Bank lakáshitel ajánlataFizetett hirdetés

+36 70 228
Forgács Martin
referens

Érdekel az OTP Bank kedvezményes lakáshitel ajánlata? *

* A kérdésre „Igen” válasz bejelölése esetén, az „Üzenet küldése” gombra kattintva kijelentem, hogy az OTP Bank Nyrt. Adatkezelési tájékoztatójának tartalmát megismertem és tudomásul vettem.

Eladó családi ház leírása

Velence csendes környékén, Újtelepen kínálunk eladásra egy felújítandó családiházat.
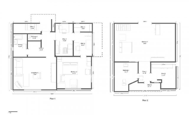
Az ingatlan 1976-ban épült, tégla szerkezetű családi ház, amely lakóövezeti besorolású területen található. A ház alapterülete 100 nm, a telek területe 473 nm, megközelítőleg 20 x 20 méteres mérettel. Az épület kétszintes, belmagassága 2,7 méter.
A fűtésről gáz-cirkó rendszer gondoskodik radiátoros hőleadással. A közművek: víz, villany, csatorna és gáz a telken belül rendelkezésre állnak. A nappali déli tájolású, így az ingatlan fényviszonyai kedvezőek. Parkolás garázsban biztosított.

A földszinten található egy 18 nm-es nappali, egy 14 nm-es szoba, egy 7,3 nm-es konyha, az ahhoz kapcsolódó 5,5 nm-es étkező, valamint egy 1,9 nm-es kamra. Ezen a szinten kapott helyet továbbá egy 4 nm-es fürdőszoba, egy különálló, 1,1 nm-es WC, valamint egy 6,9 nm-es közlekedő. A bejárati ajtónál tetővel rendelkező kétoldalról megközelíthető lépcső is megtalálható. Az oldal kert irányában pedig egy kényelmes terasz található, amelynél a ház saját fala és tetőszerkezete természetes védelmet nyújt az eső és a szél ellen.

Az emeleten egy tágas, 20 nm-es szoba, egy 6,3 nm-es szoba, egy 7,5 nm-es fürdőszoba, valamint egy 3 nm-es közlekedő található. A közlekedőből nyílik az erkély, ahol kényelmesen elfogyaszthatjuk a reggeli kávénkat.

Az ingatlan jogilag rendezett, a térképmásolaton minden feltüntetésre került. Ügyfeleink részére díjmentesen biztosítunk előzetes hitelbírálatot, piaci hitel esetén egyedi kamatot adunk és teljeskörű támogatást adunk egészen a birtokbavételig! Keressen bizalommal akár hétvégén is!

Hirdetés feltöltve: 2026. 04. 01. Utoljára módosítva: 2026. 04. 16.

4 szobás családi házak ára Velencén

Ebből az összehasonlításból megtudhatod, hogyan viszonyul a lakás ára a környékbeli családi házak átlagos árához. Ez nem azt jelenti, hogy ennyivel olcsóbb vagy drágább, mint amennyit a lakás ér, hanem hogy ennyivel tér el a környékbeli átlagtól.

Ennek a m² ára
Velence m² ár
690 e Ft
1090 e Ft 37%
Ennek az ára
Velence átlagár
69 M Ft m Ft
156.5 m Ft 56%

Az ingatlan elhelyezkedése

Cím: Velence

Eladó családi házak a környékről

Etyek
Eladó családi ház

Etyek

160 M Ft
6 szoba
228 m²
Adony
Eladó családi ház

Adony

8 M Ft
2 szoba
30 m²
Velence
Eladó családi ház

Velence

210 M Ft
5 szoba
155 m²
Velence
Eladó családi ház

Velence

169 M Ft
4 szoba
182 m²
Alcsútdoboz, Szabadság utca
Eladó családi ház

Alcsútdoboz

320 M Ft
12 szoba
620 m²
Szabadbattyán
Eladó családi ház

Szabadbattyán

357.518 M Ft
9 + 2 szoba
1053 m²
Velence
Eladó családi ház

Velence

435 M Ft
4 szoba
213 m²
Velence
Eladó családi ház

Velence

449.99 M Ft
9 szoba
300 m²
Velence
Eladó családi ház

Velence

79.9 M Ft
2 szoba
68 m²
Csákvár, Kossuth utca
Eladó családi ház

Csákvár

76 M Ft
1 szoba
181 m²
Velence
Eladó családi ház

Velence

450 M Ft
10 szoba
300 m²
Kulcs
Eladó családi ház

Kulcs

180 M Ft
8 szoba
167 m²
Velence
Eladó családi ház

Velence

220 M Ft
7 szoba
155 m²
Gárdony, Gárdonyi Géza utca
Eladó családi ház

Gárdony

59 M Ft
3 szoba
100 m²
Mór
Eladó családi ház

Mór

110 M Ft
12 szoba
340 m²
Velence
Eladó családi ház

Velence

89 M Ft
4 szoba
89 m²
Székesfehérvár
Eladó családi ház

Székesfehérvár

69.9 M Ft
3 szoba
95 m²
Velence
Eladó családi ház

Velence

219 M Ft
7 szoba
345 m²
Velence, Liget utca
Eladó családi ház

Velence

99.8 M Ft
2 + 1 szoba
134 m²
Velence, Liget utca
Eladó családi ház

Velence

149 M Ft
2 + 2 szoba
150 m²
Iváncsa, Táncsics Mihály utca
Eladó családi ház

Iváncsa

86 M Ft
4 szoba
120 m²
Tabajd
Eladó családi ház

Tabajd

22 M Ft
3 szoba
75 m²
Velence
Eladó családi ház

Velence

45.9 M Ft
2 szoba
51 m²
Velence
Eladó családi ház

Velence

205 M Ft
7 szoba
593 m²

Falusi CSOK ingatlanok

Jakabszállás
Eladó családi ház

Jakabszállás

105 M Ft
6 szoba
180 m²
Verseg
Eladó családi ház

Verseg

32.5 M Ft
1 + 1 szoba
42 m²
Mályi
Eladó családi ház

Mályi

105 M Ft
6 szoba
267 m²
Fülöpszállás
Eladó családi ház

Fülöpszállás

29.9 M Ft
2 + 1 szoba
87 m²
Somogyszil
Eladó családi ház

Somogyszil

27.9 M Ft
3 szoba
140 m²
Mád
Eladó családi ház

Mád

48 M Ft
3 szoba
181 m²
Balatonakali
Eladó ikerház

Balatonakali

560 M Ft
4 szoba
140 m²
Bükkábrány
Eladó családi ház

Bükkábrány

37.5 M Ft
5 + 1 szoba
180 m²