Avico Greentop

Eladó családi ház
Velence

+ 11 kép 1/14
74 000 000 Ft74 M Ft 740 000 Ft/m2
4 szoba
100 m²
építés éve:1976

Részletes adatok

Állapot: Átlagos
Telekméret: 473 m2
Fűtés: Gázkazán
Energetikai besorolás: Nem adta meg a hirdető

Az OTP Bank lakáshitel ajánlataFizetett hirdetés

+36 30 267
Csuri Katalin
OTPip - Érd Bajcsy-Zsilinszky út 160 - OTP Ingatlanpont Iroda

Érdekel az OTP Bank kedvezményes lakáshitel ajánlata? *

* A kérdésre „Igen” válasz bejelölése esetén, az „Üzenet küldése” gombra kattintva kijelentem, hogy az OTP Bank Nyrt. Adatkezelési tájékoztatójának tartalmát megismertem és tudomásul vettem.

Eladó családi ház leírása

Velence csendes környékén, Újtelepen kínálunk eladásra egy felújítandó családiházat.
Az ingatlan 1976-ban épült, tégla szerkezetű családi ház, amely lakóövezeti besorolású területen található. A ház alapterülete 100 nm, a telek területe 473 nm, megközelítőleg 20 x 20 méteres mérettel. Az épület kétszintes, belmagassága 2,7 méter.
A fűtésről gáz-cirkó rendszer gondoskodik radiátoros hőleadással. A közművek: víz, villany, csatorna és gáz a telken belül rendelkezésre állnak. A nappali déli tájolású, így az ingatlan fényviszonyai kedvezőek. Parkolás garázsban biztosított.

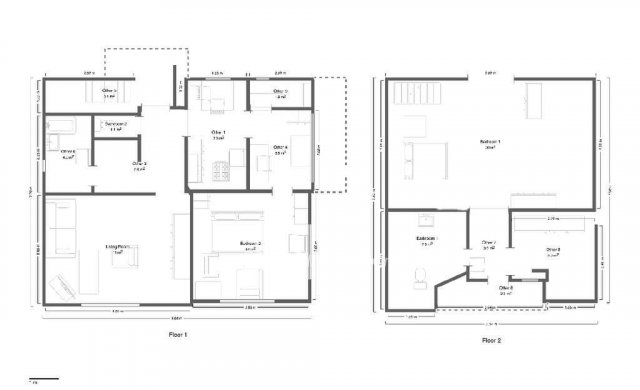
A földszinten található egy 18 nm-es nappali, egy 14 nm-es szoba, egy 7,3 nm-es konyha, az ahhoz kapcsolódó 5,5 nm-es étkező, valamint egy 1,9 nm-es kamra. Ezen a szinten kapott helyet továbbá egy 4 nm-es fürdőszoba, egy különálló, 1,1 nm-es WC, valamint egy 6,9 nm-es közlekedő. A bejárati ajtónál tetővel rendelkező kétoldalról megközelíthető lépcső is megtalálható. Az oldal kert irányában pedig egy kényelmes terasz található, amelynél a ház saját fala és tetőszerkezete természetes védelmet nyújt az eső és a szél ellen.

Az emeleten egy tágas, 20 nm-es szoba, egy 6,3 nm-es szoba, egy 7,5 nm-es fürdőszoba, valamint egy 3 nm-es közlekedő található. A közlekedőből nyílik az erkély, ahol kényelmesen elfogyaszthatjuk a reggeli kávénkat.

Az ingatlan jogilag rendezett, a térképmásolaton minden feltüntetésre került. Ügyfeleink részére díjmentesen biztosítunk előzetes hitelbírálatot, piaci hitel esetén egyedi kamatot adunk és teljeskörű támogatást adunk egészen a birtokbavételig! Keressen bizalommal akár hétvégén is!

Hirdetés feltöltve: 2026. 04. 01. Utoljára módosítva: 2026. 04. 08.

4 szobás családi házak ára Velencén

Ebből az összehasonlításból megtudhatod, hogyan viszonyul a lakás ára a környékbeli családi házak átlagos árához. Ez nem azt jelenti, hogy ennyivel olcsóbb vagy drágább, mint amennyit a lakás ér, hanem hogy ennyivel tér el a környékbeli átlagtól.

Ennek a m² ára
Velence m² ár
740 e Ft
1129 e Ft 34%
Ennek az ára
Velence átlagár
74 M Ft m Ft
165.5 m Ft 55%

Az ingatlan elhelyezkedése

Cím: Velence

Eladó családi házak a környékről

Velence
Eladó családi ház

Velence

45.9 M Ft
2 szoba
57 m²
Bicske, Baboshegy
Eladó családi ház

Bicske

26.9 M Ft
1 szoba
30 m²
Velence
Eladó családi ház

Velence

45.9 M Ft
2 szoba
51 m²
Velence
Eladó családi ház

Velence

210 M Ft
5 szoba
155 m²
Velence
Eladó családi ház

Velence

144 M Ft
6 szoba
185 m²
Velence
Eladó családi ház

Velence

169 M Ft
4 szoba
182 m²
Kulcs
Eladó családi ház

Kulcs

180 M Ft
8 szoba
167 m²
Velence, Liget utca
Eladó családi ház

Velence

149 M Ft
2 + 2 szoba
150 m²
Felcsút, Rákóczi Ferenc utca
Eladó családi ház

Felcsút

32 M Ft
2 + 1 szoba
55 m²
Velence
Eladó családi ház

Velence

219 M Ft
7 szoba
345 m²
Velence
Eladó családi ház

Velence

80 M Ft
6 szoba
200 m²
Velence, Liget utca
Eladó családi ház

Velence

99.8 M Ft
2 + 1 szoba
134 m²
Velence
Eladó családi ház

Velence

63 M Ft
3 szoba
100 m²
Székesfehérvár
Eladó családi ház

Székesfehérvár

59 M Ft
3 szoba
100 m²
Velence
Eladó családi ház

Velence

205 M Ft
7 szoba
593 m²
Iváncsa, Táncsics Mihály utca
Eladó családi ház

Iváncsa

86 M Ft
4 szoba
120 m²
Velence
Eladó családi ház

Velence

180 M Ft
6 szoba
170 m²
Velence
Eladó családi ház

Velence

47 M Ft
3 szoba
93 m²
Csákvár, Kossuth utca
Eladó családi ház

Csákvár

76 M Ft
1 szoba
181 m²
Velence
Eladó családi ház

Velence

220 M Ft
7 szoba
155 m²
Gárdony, Gárdonyi Géza utca
Eladó családi ház

Gárdony

59 M Ft
3 szoba
100 m²
Velence
Eladó családi ház

Velence

89 M Ft
4 szoba
89 m²
Velence
Eladó családi ház

Velence

80 M Ft
6 szoba
200 m²
Adony
Eladó családi ház

Adony

8 M Ft
2 szoba
30 m²

Falusi CSOK ingatlanok

Izsófalva
Eladó családi ház

Izsófalva

22.9 M Ft
3 szoba
105 m²
Jakabszállás
Eladó családi ház

Jakabszállás

105 M Ft
6 szoba
180 m²
Tabdi
Eladó családi ház

Tabdi

95 M Ft
45 szoba
1490 m²
Levelek
Eladó családi ház

Levelek

74 M Ft
6 + 1 szoba
190 m²
Bag
Eladó ikerház

Bag

93 M Ft
3 szoba
67 m²
Szentkirály
Eladó ikerház

Szentkirály

103 M Ft
4 szoba
115 m²
Balástya, Tanya 86/1
Eladó családi ház

Balástya

8.28 M Ft
1 + 1 szoba
111 m²
Hegyeshalom, Margaréta utca 12
Eladó téglalakás

Hegyeshalom

35.92 M Ft
1 szoba
31 m²