Pesti Házak

Eladó családi ház
Velence

+ 12 kép 1/15
220 000 000 Ft220 M Ft 1 428 571 Ft/m2
4 szoba
154 m2
építés éve:2020

Részletes adatok

Állapot: Újszerű
Telekméret: 1040 m2
Fűtés: Gázkazán
Energetikai besorolás: Nem adta meg a hirdető

Az OTP Bank lakáshitel ajánlataFizetett hirdetés

+36 70 681
Pap Éva Zsuzsanna
OTPip - Érd Bajcsy-Zsilinszky út 160 - OTP Ingatlanpont Iroda

Érdekel az OTP Bank kedvezményes lakáshitel ajánlata? *

* A kérdésre „Igen” válasz bejelölése esetén, az „Üzenet küldése” gombra kattintva kijelentem, hogy az OTP Bank Nyrt. Adatkezelési tájékoztatójának tartalmát megismertem és tudomásul vettem.

Eladó családi ház leírása

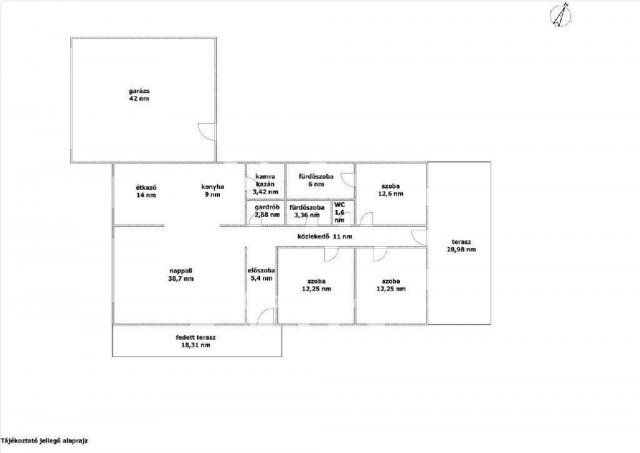
Fejér megye, Velence 154 nm-es mediterrán családi ház eladó. Az ingatlan 2020-ban épült, a Venezia villanegyedben egy 1040 nm-es gyönyörűen parkosított, dísznövénykerttel, gyümölcsfákkal betelepített telken helyezkedik el. A tégla falazatú, szigetelt házban tágas nappali, 3 szoba, étkező, konyha, kamra, gardrób, 2 fürdőszoba, 1 külön mosdó található, valamint tartozik hozzá egy 42 nm-es garázs, 18,31 nm-es fedett terasz, egy 28,98 nm-es terasz, kerti sütögető, játszótér, térkövezett kocsibeálló több autó számára. A fűtésről Ariston gázkazán gondoskodik radiátoros hő leadással. Az ingatlanba beszerelésre került egy 3,5 kW-os hűtő fűtő klíma is. Az épület 4 kW napelemmel is felszerelt, mely fedezi a teljes villanyfogyasztást. Az ingatlan fenntartása nagyon kedvező, a gáz átalány 12 000 Ft, köszönhetően a 38-as tégla falazatnak, a homlokzati és a födém szigetelésnek. Az összes nyílászáró műanyag. Kiváló adottságokkal rendelkező ingatlan, új építésű családi házas övezetben, közel a Velencei tóhoz. Amennyiben felkeltette az érdeklődését, további kérdések esetén várom hívását, akár hétvégén is! Kedvezményes kamatú hitellel, teljes körű ügyintézéssel segítjük ügyfeleinket díjtalanul, az adásvétel és ingatlanátírás teljes lebonyolításával. azonosító: M318102

Hirdetés feltöltve: 2025. 11. 30. Utoljára módosítva: 2026. 01. 13.

4 szobás családi házak ára Velencén

Ebből az összehasonlításból megtudhatod, hogyan viszonyul a lakás ára a környékbeli családi házak átlagos árához. Ez nem azt jelenti, hogy ennyivel olcsóbb vagy drágább, mint amennyit a lakás ér, hanem hogy ennyivel tér el a környékbeli átlagtól.

Ennek a m² ára
Velence m² ár
1429 e Ft
1131 e Ft -26%
Ennek az ára
Velence átlagár
220 M Ft m Ft
171.1 m Ft -29%

Az ingatlan elhelyezkedése

Cím: Velence

Eladó családi házak a környékről

Eladó családi ház
Eladó családi ház

Pusztaszabolcs

143.9 M Ft
4 szoba
149 m2
Eladó családi ház
Eladó családi ház

Velence

85.9 M Ft
4 szoba
103 m2
Eladó családi ház
Eladó családi ház

Velence

47 M Ft
3 szoba
93 m2
Eladó családi ház
Eladó családi ház

Szabadbattyán

357.518 M Ft
9 + 2 szoba
1053 m2
Eladó családi ház
Eladó családi ház

Velence

39.9 M Ft
2 szoba
62 m2
Eladó családi ház
Eladó családi ház

Velence, Rákóczi utca

94.9 M Ft
4 + 1 szoba
124 m2
Eladó családi ház
Eladó családi ház

Velence, Fő utca

249 M Ft
1 szoba
735 m2
Eladó családi ház
Eladó családi ház

Lepsény, Róka sétány

64.9 M Ft
5 + 1 szoba
203 m2
Eladó családi ház
Eladó családi ház

Pusztavám

22.9 M Ft
3 szoba
103 m2
Eladó családi ház
Eladó családi ház

Velence

450 M Ft
10 szoba
300 m2
Eladó családi ház
Eladó családi ház

Sárbogárd, Tinódy utca

19.9 M Ft
3 szoba
75 m2
Eladó családi ház
Eladó családi ház

Vereb

49.9 M Ft
1 + 3 szoba
80 m2
Eladó családi ház
Eladó családi ház

Velence

205 M Ft
7 szoba
593 m2
Eladó családi ház
Eladó családi ház

Velence

449.99 M Ft
9 szoba
300 m2
Eladó családi ház
Eladó családi ház

Velence

80 M Ft
6 szoba
200 m2
Eladó családi ház
Eladó családi ház

Baracska, Határ utca

74.9 M Ft
3 szoba
155 m2
Eladó családi ház
Eladó családi ház

Besnyő

25 M Ft
1 szoba
30 m2
Eladó családi ház
Eladó családi ház

Velence

180 M Ft
6 szoba
170 m2
Eladó családi ház
Eladó családi ház

Velence

220 M Ft
7 szoba
155 m2
Eladó családi ház
Eladó családi ház

Velence

144 M Ft
6 szoba
185 m2
Eladó családi ház
Eladó családi ház

Velence

148.5 M Ft
5 szoba
143 m2
Eladó családi ház
Eladó családi ház

Pusztavám

22.9 M Ft
3 szoba
103 m2
Eladó családi ház
Eladó családi ház

Alcsútdoboz, Szabadság utca

320 M Ft
12 szoba
620 m2
Eladó családi ház
Eladó családi ház

Velence, Liget utca

99.8 M Ft
2 + 1 szoba
134 m2

Falusi CSOK ingatlanok

Eladó családi ház
Eladó családi ház

Bakonyszentiván

9.19 M Ft
2 szoba
89 m2
Eladó családi ház
Eladó családi ház

Somogygeszti

38.6 M Ft
3 + 1 szoba
98 m2
Eladó családi ház
Eladó családi ház

Sellye

48.2 M Ft
4 szoba
99 m2
Eladó családi ház
Eladó családi ház

Berkesd

39.5 M Ft
5 szoba
175 m2
Eladó családi ház
Eladó családi ház

Tésenfa, Kossuth utca 23/a

5.55 M Ft
1 + 1 szoba
109 m2
Eladó családi ház
Eladó családi ház

Nyáregyháza

63.9 M Ft
1 + 1 szoba
79 m2
Eladó családi ház
Eladó családi ház

Sály, Kossuth Lajos 128

30.8 M Ft
6 szoba
160 m2
Eladó családi ház
Eladó családi ház

Nyírtura

99 M Ft
4 szoba
280 m2