Aerogate Homes

Eladó családi ház
Vásárosnamény

+ 13 kép 1/16
26 900 000 Ft26.9 M Ft 298 889 Ft/m2
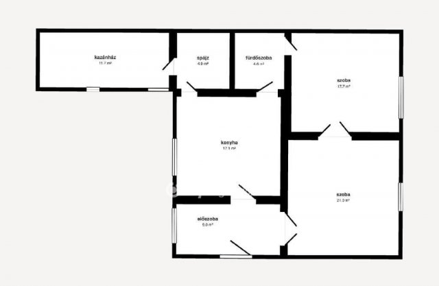
2 szoba
90 m²
építés éve:1970

Részletes adatok

Állapot: Átlagos
Telekméret: 3534 m2
Fűtés: Gázkazán
Komfort: Összkomfortos
Energetikai besorolás: Nem adta meg a hirdető

Az OTP Bank lakáshitel ajánlataFizetett hirdetés

+36 70 615
Kiss Gyula
OTPIP Nyíregyháza Hunyadi u.

Érdekel az OTP Bank kedvezményes lakáshitel ajánlata? *

* A kérdésre „Igen” válasz bejelölése esetén, az „Üzenet küldése” gombra kattintva kijelentem, hogy az OTP Bank Nyrt. Adatkezelési tájékoztatójának tartalmát megismertem és tudomásul vettem.

Eladó családi ház leírása

Felújított családi ház eladó Vásárosnamény fő utcáján ? nagy telekkel!

Vásárosnamény fő utcáján kínálok megvételre egy 90 m?-es, 2 szobás, felújított családi házat, amely kiváló választás lehet családoknak vagy befektetőknek egyaránt.

Az ingatlan főbb jellemzői:

2 tágas szoba

fürdőszoba

rendezett belső terek

műanyag nyílászárók

jó állapot

A ház egy 3534 m?-es, tágas telken helyezkedik el, amely számos lehetőséget kínál kertészkedésre, gazdálkodásra vagy akár további fejlesztésekre.

Az udvaron több melléképület is található, amelyek tárolásra, műhelynek vagy gazdasági célokra is alkalmasak.

Központi elhelyezkedésének köszönhetően minden fontos intézmény könnyen elérhető, mégis saját, nagy területű udvar biztosítja a kényelmet és a nyugalmat.

Per- és tehermentes
Azonnal birtokba vehető
Ez az ingatlan ideális választás családoknak, gazdálkodóknak vagy azoknak, akik nagy telekre és biztos értékre vágynak.
Hívjon most, és foglaljon időpontot megtekintésre az ilyen adottságú ingatlanok ritkán maradnak sokáig a piacon!
OTP Banki hátterünknek köszönhetően finanszírozási igényekben (pl. Otthon Start Hitelprogram, Babaváró, Falusi CSOK, CSOK Plusz, Lakáshitel, Személyi kölcsön stb.), illetve biztosítások tekintetében is díjmentesen, soron kívüli ügyintézéssel segítem ügyfeleim! Referenciaszám: M323785

Ne hagyja ki ezt a kiváló lehetőséget!
További információért és megtekintésért keressen bizalommal!

Hirdetés feltöltve: 2026. 04. 17. Utoljára módosítva: 2026. 05. 28.

2 szobás családi házak ára Vásárosnaményben

Ebből az összehasonlításból megtudhatod, hogyan viszonyul a lakás ára a környékbeli családi házak átlagos árához. Ez nem azt jelenti, hogy ennyivel olcsóbb vagy drágább, mint amennyit a lakás ér, hanem hogy ennyivel tér el a környékbeli átlagtól.

Ennek a m² ára
Vásárosnamény m² ár
299 e Ft
372 e Ft 20%
Ennek az ára
Vásárosnamény átlagár
26.9 M Ft m Ft
33.9 m Ft 21%

Az ingatlan elhelyezkedése

Cím: Vásárosnamény

Eladó családi házak a környékről

Kemecse
Eladó családi ház

Kemecse

34.9 M Ft
2 szoba
100 m²
Vásárosnamény
Eladó családi ház

Vásárosnamény

25 M Ft
2 szoba
71 m²
Nyíregyháza
Eladó családi ház

Nyíregyháza

140 M Ft
3 szoba
190 m²
Nyíregyháza
Eladó családi ház

Nyíregyháza

199.9 M Ft
6 szoba
500 m²
Nyíregyháza
Eladó családi ház

Nyíregyháza

90 M Ft
3 + 1 szoba
100 m²
Vásárosnamény
Eladó családi ház

Vásárosnamény

55 M Ft
2 szoba
110 m²
Nyíregyháza
Eladó családi ház

Nyíregyháza

60 M Ft
3 szoba
100 m²
Vásárosnamény
Eladó családi ház

Vásárosnamény

25 M Ft
3 szoba
92 m²
Vásárosnamény
Eladó családi ház

Vásárosnamény

62 M Ft
4 szoba
162 m²
Nyíregyháza
Eladó családi ház

Nyíregyháza

69.9 M Ft
3 szoba
140 m²
Vásárosnamény, Jókai út
Eladó családi ház

Vásárosnamény

19.5 M Ft
3 szoba
98 m²
Nyíregyháza
Eladó családi ház

Nyíregyháza

65 M Ft
3 szoba
135 m²
Kemecse
Eladó családi ház

Kemecse

27 M Ft
2 + 1 szoba
96 m²
Nyírtelek
Eladó családi ház

Nyírtelek

35 M Ft
2 szoba
80 m²
Vásárosnamény
Eladó családi ház

Vásárosnamény

55 M Ft
2 szoba
110 m²
Vásárosnamény
Eladó családi ház

Vásárosnamény

18.9 M Ft
4 szoba
115 m²
Nyírtass
Eladó családi ház

Nyírtass

21 M Ft
5 + 2 szoba
360 m²
Vásárosnamény
Eladó családi ház

Vásárosnamény

29 M Ft
6 szoba
335 m²
Vásárosnamény
Eladó családi ház

Vásárosnamény

11.5 M Ft
2 szoba
97 m²
Nyíregyháza
Eladó családi ház

Nyíregyháza

290 M Ft
4 szoba
620 m²
Vásárosnamény
Eladó családi ház

Vásárosnamény

38 M Ft
3 szoba
110 m²
Vásárosnamény
Eladó családi ház

Vásárosnamény

89 M Ft
3 + 1 szoba
266 m²
Vásárosnamény
Eladó családi ház

Vásárosnamény

44.99 M Ft
3 + 4 szoba
95 m²
Vásárosnamény
Eladó családi ház

Vásárosnamény

55 M Ft
2 szoba
110 m²

Falusi CSOK ingatlanok

Fertőd
Eladó családi ház

Fertőd

140.91 M Ft
4 + 2 szoba
190 m²
Szűr
Eladó családi ház

Szűr

8 M Ft
3 szoba
68 m²
Németkér
Eladó családi ház

Németkér

149.9 M Ft
2 szoba
540 m²
Nyáregyháza
Eladó ikerház

Nyáregyháza

75.9 M Ft
4 szoba
0 m²
Újkígyós
Eladó családi ház

Újkígyós

29.9 M Ft
4 szoba
145 m²
Halimba
Eladó családi ház

Halimba

59.9 M Ft
6 szoba
182 m²
Pálfa
Eladó családi ház

Pálfa

26.99 M Ft
3 szoba
90 m²
Balatonkenese
Eladó családi ház

Balatonkenese

165.7 M Ft
2 + 4 szoba
179 m²