Eladó családi ház
Vaja

Figyelem!

Ez az ingatlan a 2019.07.01-től induló falusi CSOK által támogatott településen található

+ 17 kép 1/20
22 900 000 Ft22.9 M Ft 204 464 Ft/m2
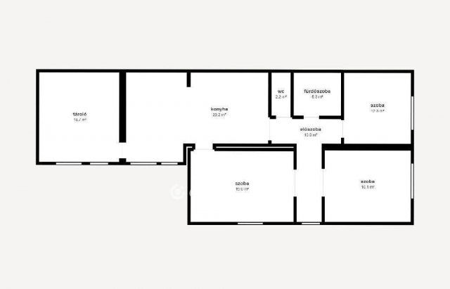
3 szoba
112 m2
építés éve:1995

Részletes adatok

Állapot: Felújítandó
Telekméret: 800 m2
Fűtés: Egyéb
Energetikai besorolás: Nem adta meg a hirdető

Az OTP Bank lakáshitel ajánlataFizetett hirdetés

+36 20 390
Tóth Zoltán
OTPIP Nyíregyháza Hunyadi u.

Érdekel az OTP Bank kedvezményes lakáshitel ajánlata? *

* A kérdésre „Igen” válasz bejelölése esetén, az „Üzenet küldése” gombra kattintva kijelentem, hogy az OTP Bank Nyrt. Adatkezelési tájékoztatójának tartalmát megismertem és tudomásul vettem.

Eladó családi ház leírása

Csendes, kertvárosi otthon Vaja szívében eladó!
Eladásra kínálunk Vaján, a nyugodt és barátságos Dessewffy utcában egy 112,8nm-es családi házat, amely egy tágas, 800 nm-es telken helyezkedik el. Az ingatlan ideális választás lehet mindazoknak, akik szeretnék saját ízlésükre formálni otthonukat, és a város zajától távol, mégis mindenhez közel élni.
Az ingatlan jellemzői:
3 szoba + nappali-konyha, előszoba, fürdőszoba, külön WC
Nagy méretű terasz, ahol élvezheti a reggeli kávét vagy a nyári estéket
Melléképület fa tüzelésű kazánnal
Gazdálkodásra is alkalmas ól a hátsó udvarban
Tégla falazat, fa nyílászárók, hullámpala tető
Fűtés: fatüzelésű kazán biztosítja a meleget
Állapot: felújítandó , így tökéletes lehetőség, hogy saját elképzelése szerint alakítsa ki álmai otthonát!
Miért éppen ez az ingatlan? Mert a csendes környék, a tágas telek és a barátságos szomszédság együttese ideális helyszínt biztosít családoknak, kertészkedőknek vagy mindazoknak, akik szeretik a természetközeli, nyugodt életet.
Vaja egyik legkedveltebb részén, barátságos környezetben várja új tulajdonosát ez a hangulatos, nagy lehetőségeket rejtő családi ház!
Szeretnéd, hogy írjak hozzá egy rövidebb, tömörített verziót is, ami jól működik pl. Facebook-hirdetésben vagy apróhirdetési oldalon.

OTP Banki hátterünknek köszönhetően finanszírozási igényekben (pl. Otthon Start Hitelprogram , Babaváró, Falusi CSOK, CSOK Plusz, Lakáshitel, Személyi kölcsön stb.), illetve biztosítások tekintetében is díjmentesen, soron kívüli ügyintézéssel segítem ügyfeleim! Referenciaszám: M311712

Hirdetés feltöltve: 2025. 10. 02. Utoljára módosítva: 2025. 10. 02.

Az ingatlan elhelyezkedése

Cím: Vaja

Eladó ingatlanok a környékről

Eladó garázs
Eladó garázs

Nyíregyháza

7.5 M Ft
12 m2
Eladó családi ház
Eladó családi ház

Napkor, Kinizsi

2.94 M Ft
3 szoba
70 m2
Eladó családi ház
Eladó családi ház

Nyíregyháza

79 M Ft
5 szoba
126 m2
Eladó családi ház
Eladó családi ház

Nyírtelek

10.9 M Ft
2 szoba
55 m2
Eladó családi ház
Eladó családi ház

Vaja

14.9 M Ft
2 szoba
100 m2
Eladó családi ház
Eladó családi ház

Nyíregyháza

62 M Ft
4 szoba
140 m2
Eladó családi ház
Eladó családi ház

Nyíregyháza

44.99 M Ft
2 szoba
60 m2
Eladó családi ház
Eladó családi ház

Vaja

27 M Ft
1 szoba
74 m2
Eladó mezogazdasagi ingatlan
Eladó mezogazdasagi ingatlan

Balkány

8.2 M Ft
2 szoba
55 m2
Eladó családi ház
Eladó családi ház

Nagykálló

50 M Ft
3 szoba
100 m2
Eladó családi ház
Eladó családi ház

Nyíregyháza

120 M Ft
5 szoba
203 m2
Eladó családi ház
Eladó családi ház

Nyíregyháza, Oros, Oros

55 M Ft
4 szoba
100 m2
Eladó családi ház
Eladó családi ház

Nyíregyháza

190 M Ft
4 szoba
230 m2
Eladó családi ház
Eladó családi ház

Nyíregyháza

89.9 M Ft
2 szoba
101 m2
Eladó családi ház
Eladó családi ház

Napkor

49.8 M Ft
4 szoba
253 m2
Eladó családi ház
Eladó családi ház

Bököny

15 M Ft
1 szoba
67 m2
Eladó téglalakás
Eladó téglalakás

Nyíregyháza

36.5 M Ft
1 + 1 szoba
43 m2
Eladó téglalakás
Eladó téglalakás

Nyíregyháza

64.163 M Ft
3 szoba
62 m2
Eladó családi ház
Eladó családi ház

Nyíregyháza

199.9 M Ft
6 szoba
500 m2
Eladó családi ház
Eladó családi ház

Nyíregyháza

250 M Ft
4 szoba
440 m2
Eladó családi ház
Eladó családi ház

Vaja

22.9 M Ft
3 szoba
112 m2
Eladó családi ház
Eladó családi ház

Vaja

22.9 M Ft
3 szoba
112 m2
Eladó családi ház
Eladó családi ház

Nyíregyháza

46 M Ft
3 + 1 szoba
140 m2
Eladó családi ház
Eladó családi ház

Vaja

41.9 M Ft
4 szoba
150 m2

Falusi CSOK ingatlanok

Eladó családi ház
Eladó családi ház

Böhönye, Dózsa körút

20.9 M Ft
5 + 1 szoba
127 m2
Eladó családi ház
Eladó családi ház

Mályi

89.9 M Ft
4 szoba
100 m2
Eladó családi ház
Eladó családi ház

Csővár

24.99 M Ft
4 szoba
90 m2
Eladó téglalakás
Eladó téglalakás

Balatonszemes, Ady Endre u

139.9 M Ft
1 + 2 szoba
63 m2
Eladó téglalakás
Eladó téglalakás

Hegyeshalom

35 M Ft
43 m2
Eladó családi ház
Eladó családi ház

Kaposgyarmat

5.9 M Ft
1 szoba
40 m2
Eladó családi ház
Eladó családi ház

Magyarszék

89.9 M Ft
5 szoba
130 m2
Eladó családi ház
Eladó családi ház

Vácegres

28 M Ft
1 + 3 szoba
44 m2

Falusi CSOK ingatlanok

Eladó családi ház
Eladó családi ház

Szob, Petőfi Sándor utca

23.5 M Ft
2 szoba
68 m2
Eladó családi ház
Eladó családi ház

Tápiószőlős

69 M Ft
3 szoba
77 m2
Eladó családi ház
Eladó családi ház

Marcaltő

26 M Ft
3 szoba
103 m2
Eladó családi ház
Eladó családi ház

Törtel

20 M Ft
3 szoba
76 m2
Eladó családi ház
Eladó családi ház

Pusztamiske

29.9 M Ft
4 szoba
156 m2
Eladó családi ház
Eladó családi ház

Andornaktálya

65 M Ft
3 szoba
80 m2
Eladó családi ház
Eladó családi ház

Törtel

39 M Ft
1 + 1 szoba
118 m2
Eladó családi ház
Eladó családi ház

Csővár

24.99 M Ft
4 szoba
90 m2