Oasis Residence

Eladó családi ház
Vácrátót

+ 6 kép 1/9
85 000 000 Ft85 M Ft 965 909 Ft/m2
4 szoba
88 m2
építés éve:2025

Részletes adatok

Telekméret: 716 m2
Fűtés: Egyéb
Parkolás: Kocsibeálló
Közmű: Víz, Villany, Csatorna
Energetikai besorolás: Nem adta meg a hirdető

Az OTP Bank lakáshitel ajánlataFizetett hirdetés

+36 70 418
Kovács Péter
referens

Érdekel az OTP Bank kedvezményes lakáshitel ajánlata? *

* A kérdésre „Igen” válasz bejelölése esetén, az „Üzenet küldése” gombra kattintva kijelentem, hogy az OTP Bank Nyrt. Adatkezelési tájékoztatójának tartalmát megismertem és tudomásul vettem.

Eladó családi ház leírása

Új építésű családi ház, NAGY TELEKKEL!!!!

Az építő munkájára jellemző a megbízhatóság és igényesség, leinformálható, referencia házai megtekinthetők.


Vácrátót csendes utcájában 716 nm-es telekre épülő, földszintes családi ház eladó!!
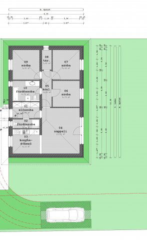
Az ingatlan nettó lakóterülete 80 nm + terasz, amerikai-konyhás nappali + 3 szobás, dupla-komfortos elrendezéssel.

Rövid műszaki tartalom:
A ház 30-as POROTHERM téglából épül, 15 cm-es külső szigeteléssel, beton födémmel, mely 30 cm-es ásványgyapot szigeteléssel kerül kivitelezésre.
A tető barna színű, nagy-szilárdságú, anyagában színezett betoncserép-fedést kap.
A homlokzati nyílászárók hőszigetelésű üvegezéssel ellátott műanyag szerkezetek, fehér színben.
A fűtés - meleg víz ellátást monoblokk rendszerű, levegő-víz hőszivattyú biztosítja, a
fűtési hő leadás padlófűtéssel történik, a fürdőszobákban törülközőszárítós fűtőtesttel kiegészítve.

A szobákba laminált parketta, a vizes helyiségekben kerámia burkolat kerül, a belső műszaki tartalomban vállalt árakig.

Parkolás udvari beállón kerül kialakításra.

A lakások kulcsrakész állapotban kerülnek átadásra, konyhabútor nélkül.

Burkolatok, szaniterek választhatók, a belső műszaki tartalomban vállalt árig a vételár részét képezve.

Ár: 85.000.000.- Ft
Azonosító: 4653/CS

Hirdetés feltöltve: 2025. 11. 07. Utoljára módosítva: 2025. 12. 01.

4 szobás családi házak ára Vácrátóton

Ebből az összehasonlításból megtudhatod, hogyan viszonyul a lakás ára a környékbeli családi házak átlagos árához. Ez nem azt jelenti, hogy ennyivel olcsóbb vagy drágább, mint amennyit a lakás ér, hanem hogy ennyivel tér el a környékbeli átlagtól.

Ennek a m² ára
Vácrátót m² ár
966 e Ft
1013 e Ft 5%
Ennek az ára
Vácrátót átlagár
85 M Ft m Ft
95.8 m Ft 11%

Az ingatlan elhelyezkedése

Cím: Vácrátót

Eladó családi házak a környékről

Eladó családi ház
Eladó családi ház

Tahitótfalu

188 M Ft
7 szoba
280 m2
Eladó családi ház
Eladó családi ház

Vácrátót, Zólyomi Bálint utca

123 M Ft
4 szoba
118 m2
Eladó családi ház
Eladó családi ház

Vácrátót

89.9 M Ft
4 szoba
91 m2
Eladó családi ház
Eladó családi ház

Tápiószele

32.9 M Ft
4 szoba
200 m2
Eladó családi ház
Eladó családi ház

Sződ, Rátóti utca

149.99 M Ft
11 szoba
270 m2
Eladó családi ház
Eladó családi ház

Budaörs, Városközpont utca

119.5 M Ft
5 + 1 szoba
140 m2
Eladó családi ház
Eladó családi ház

Vácrátót

89.9 M Ft
4 szoba
97 m2
Eladó családi ház
Eladó családi ház

Vácrátót

59.99 M Ft
3 + 3 szoba
160 m2
Eladó családi ház
Eladó családi ház

Pécel, Reményik Sándor utca

296 M Ft
6 szoba
396 m2
Eladó családi ház
Eladó családi ház

Vácrátót

86.5 M Ft
4 szoba
88 m2
Eladó családi ház
Eladó családi ház

Gyál, Gyál út

169.9 M Ft
2 szoba
90 m2
Eladó családi ház
Eladó családi ház

Vácrátót

86.5 M Ft
1 + 3 szoba
88 m2
Eladó családi ház
Eladó családi ház

Vácrátót

86.5 M Ft
4 szoba
88 m2
Eladó családi ház
Eladó családi ház

Vácrátót, Zólyomi Bálint utca

123 M Ft
4 szoba
118 m2
Eladó családi ház
Eladó családi ház

Vácrátót

68.9 M Ft
4 szoba
73 m2
Eladó családi ház
Eladó családi ház

Vácrátót

25 M Ft
15141 m²
Eladó családi ház
Eladó családi ház

Vácrátót

86.5 M Ft
4 szoba
87 m2
Eladó családi ház
Eladó családi ház

Érd

164.9 M Ft
5 szoba
192 m2
Eladó családi ház
Eladó családi ház

Tápiószentmárton

48 M Ft
5 szoba
180 m2
Eladó családi ház
Eladó családi ház

Vácrátót

90 M Ft
4 szoba
91 m2
Eladó családi ház
Eladó családi ház

Budakeszi, Budakeszi kertváros

229 M Ft
10 szoba
450 m2
Eladó családi ház
Eladó családi ház

Budakeszi

130 M Ft
5 szoba
30 m2
Eladó családi ház
Eladó családi ház

Kerepes

199 M Ft
6 szoba
360 m2
Eladó családi ház
Eladó családi ház

Vácrátót

89.9 M Ft
4 szoba
88 m2

Falusi CSOK ingatlanok

Eladó családi ház
Eladó családi ház

Elek

89.9 M Ft
5 szoba
274 m2
Eladó családi ház
Eladó családi ház

Fülöpszállás

299 M Ft
14 + 5 szoba
680 m2
Eladó családi ház
Eladó családi ház

Egyed

24.9 M Ft
2 + 1 szoba
56 m2
Eladó családi ház
Eladó családi ház

Olaszfa

70.38 M Ft
3 szoba
139 m2
Eladó családi ház
Eladó családi ház

Vitnyéd, Petőfi Sándor utca 3

16.71 M Ft
1 + 1 szoba
99 m2
Eladó családi ház
Eladó családi ház

Segesd

3.9 M Ft
2 szoba
65 m2
Eladó családi ház
Eladó családi ház

Nádasd

84.9 M Ft
4 szoba
143 m2
Eladó családi ház
Eladó családi ház

Balatonkeresztúr

41.9 M Ft
2 szoba
57 m2