Metrodom

Eladó családi ház
Üllő

+ 14 kép 1/17
95 000 000 Ft95 M Ft 922 330 Ft/m2
2 + 2 szoba
103 m²
építés éve:1972

Részletes adatok

Állapot: Átlagos
Telekméret: 1050 m2
Fűtés: Gázkazán
Energetikai besorolás: Nem adta meg a hirdető
Zenga Premier

Friss hirdetések, amiket nem találsz meg más ingatlankereső portálon.

Fedezd fel elsőként a Zenga Premier címkés eladó ingatlanokat!

További részletek a zenga.hu-n

Az OTP Bank lakáshitel ajánlataFizetett hirdetés

+36 20 461
Dsugán Béla
referens

Érdekel az OTP Bank kedvezményes lakáshitel ajánlata? *

* A kérdésre „Igen” válasz bejelölése esetén, az „Üzenet küldése” gombra kattintva kijelentem, hogy az OTP Bank Nyrt. Adatkezelési tájékoztatójának tartalmát megismertem és tudomásul vettem.

Eladó családi ház leírása

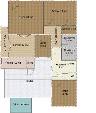
Pest megyében Üllőn eladó egy csendes nívós környéken lévő, 103 m2-s 2+2 félszobás felújított , duplakomfortos, családi ház amely egy1050 m2-s telken helyezkedik el. Állapot: Szigetelt falak, esztétikus betoncserép fedés, frissen felújított belső terek. Az ingatlan egy ajtó beépítésével 2 generációs házzá alakítható át. Kérem nézze meg az alaprajzot.
Fűtés-hűtés: Gazdaságos gáz-cirkó és hűtő fűtő klíma.
Kert és extrák: A parkosított telken egy épített kismedence várja a nyári felfrissülést. A nagy méretű terasz lehetőséget teremt a grillezésekre, pihenésre. A tárolást melléképület az autók parkolását saját garázs biztosítja.
A környék infrastruktúrája kiváló!!! Minden ami számit pár perc sétával elérhető. Beleértve a vasút állómást is. Teljes körű ügyintézéssel állunk az eladók és a vevők rendelkezésére! A kínálatunkból választott ingatlan finanszírozásához kedvezményes hitel- konstrukciókat kínálunk. Az adásvételi szerződés megkötéséhez igény szerint megbízható ügyvédi közreműködést biztosítunk, és segítséget nyújtunk az adásvételhez kapcsolódó ügyek intézéséhez. Kérdés , mutatás esetén hívjon bizalommal! Ref. szám:M322928 Az ingatlan megfelel a kedvezményes hitelek felvételére is. Beleértve a 3%-s OSP hitelt is.

Hirdetés feltöltve: 2026. 02. 19. Utoljára módosítva: 2026. 02. 19.

4 szobás családi házak ára Üllőn

Ebből az összehasonlításból megtudhatod, hogyan viszonyul a lakás ára a környékbeli családi házak átlagos árához. Ez nem azt jelenti, hogy ennyivel olcsóbb vagy drágább, mint amennyit a lakás ér, hanem hogy ennyivel tér el a környékbeli átlagtól.

Ennek a m² ára
Üllő m² ár
922 e Ft
934 e Ft 1%
Ennek az ára
Üllő átlagár
95 M Ft m Ft
124.9 m Ft 24%

Az ingatlan elhelyezkedése

Cím: Üllő

Eladó családi házak a környékről

Tápiószele
Eladó családi ház

Tápiószele

37.9 M Ft
4 szoba
141 m²
Üllő
Eladó családi ház

Üllő

195 M Ft
5 szoba
547 m²
Üllő
Eladó családi ház

Üllő

99.8 M Ft
2 szoba
126 m²
Nagykáta
Eladó családi ház

Nagykáta

130 M Ft
3 szoba
203 m²
Üllő
Eladó családi ház

Üllő

99.8 M Ft
2 szoba
126 m²
Kerepes
Eladó családi ház

Kerepes

81.99 M Ft
5 szoba
102 m²
Üllő
Eladó családi ház

Üllő

22 M Ft
1 szoba
32 m²
Tápiószentmárton
Eladó családi ház

Tápiószentmárton

16.5 M Ft
3 szoba
50 m²
Üllő
Eladó családi ház

Üllő

70 M Ft
3 szoba
93 m²
Üllő
Eladó családi ház

Üllő

53.9 M Ft
2 szoba
51 m²
Tápiószele
Eladó családi ház

Tápiószele

18.9 M Ft
4 szoba
68 m²
Üllő
Eladó családi ház

Üllő

149 M Ft
4 szoba
172 m²
Tápiógyörgye
Eladó családi ház

Tápiógyörgye

19.9 M Ft
3 szoba
65 m²
Pécel, Reményik Sándor utca
Eladó családi ház

Pécel

296 M Ft
6 szoba
396 m²
Üllő
Eladó családi ház

Üllő

117 M Ft
6 szoba
280 m²
Üllő
Eladó családi ház

Üllő

303 M Ft
12 szoba
551 m²
Üllő
Eladó családi ház

Üllő

53.9 M Ft
2 szoba
51 m²
Érd, Érdliget - Kutyavár, Érd-liget
Eladó családi ház

Érd

230 M Ft
7 szoba
280 m²
Tápiószele
Eladó családi ház

Tápiószele

11.9 M Ft
3 szoba
62 m²
Budakeszi, Makkosmária
Eladó családi ház

Budakeszi

100 M Ft
1 szoba
10 m²
Tápiószele
Eladó családi ház

Tápiószele

45 M Ft
6 szoba
360 m²
Dunakeszi
Eladó családi ház

Dunakeszi

250 M Ft
4 szoba
180 m²
Üllő
Eladó családi ház

Üllő

149 M Ft
4 szoba
172 m²
Zebegény
Eladó családi ház

Zebegény

69.9 M Ft
6 szoba
245 m²

Falusi CSOK ingatlanok

Kistapolca, Szabadság utca
Eladó családi ház

Kistapolca

16.5 M Ft
3 szoba
69 m²
Balatonfenyves
Eladó családi ház

Balatonfenyves

430 M Ft
4 szoba
274 m²
Martonfa, Köztársaság utca
Eladó családi ház

Martonfa

34.99 M Ft
3 szoba
65 m²
Balatonszemes, Ady E. utca 6
Eladó téglalakás

Balatonszemes

108.9 M Ft
2 + 1 szoba
63 m²
Kenyeri
Eladó családi ház

Kenyeri

39.9 M Ft
3 szoba
94 m²
Véménd, Zrínyi Miklós utca
Eladó családi ház

Véménd

12.99 M Ft
3 szoba
70 m²
Zalalövő
Eladó családi ház

Zalalövő

34.99 M Ft
3 szoba
110 m²
Sásd
Eladó családi ház

Sásd

35.9 M Ft
4 + 1 szoba
71 m²