Oasis Residence

Eladó családi ház
Tordas

+ 17 kép 1/20
172 000 000 Ft172 M Ft 1 274 074 Ft/m2
4 szoba
135 m2
építés éve:2023

Részletes adatok

Telekméret: 1959 m2
Fűtés: Egyéb
Energetikai besorolás: Nem adta meg a hirdető

Az OTP Bank lakáshitel ajánlataFizetett hirdetés

+36 70 681
Pap Éva Zsuzsanna
OTPip - Érd Bajcsy-Zsilinszky út 160 - OTP Ingatlanpont Iroda

Érdekel az OTP Bank kedvezményes lakáshitel ajánlata? *

* A kérdésre „Igen” válasz bejelölése esetén, az „Üzenet küldése” gombra kattintva kijelentem, hogy az OTP Bank Nyrt. Adatkezelési tájékoztatójának tartalmát megismertem és tudomásul vettem.

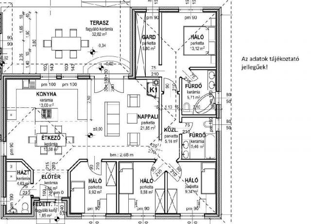
Eladó családi ház leírása

Tordason, csendes és nyugodt környezetben kínáljuk megvételre ezt a 2023-ban épült, 135 nm-es, prémium minőségű családi házat, amely egy közel 2 000 nm-es telken helyezkedik el.
Az ingatlan könnyűszerkezetes technológiával, kiemelkedő műszaki tartalommal épült, ennek köszönhetően AA energetikai besorolással és rendkívül alacsony rezsiköltséggel rendelkezik. A fűtésről és hűtésről hőszivattyú, fan-coil egységek és padlófűtés gondoskodnak, a nappaliban pedig egy kandalló teszi meghitté az esték hangulatát. A napelemrendszer kiépítésére előkészítés történt, így az új tulajdonos könnyedén bővítheti a ház energiafüggetlenségét.
Az elrendezés átgondolt és praktikus: amerikai konyhás nappali, négy hálószoba, két fürdőszoba, gardrób és háztartási helyiség áll rendelkezésre. A 33 nm-es fedett terasz közvetlen kapcsolattal bővíti a nappali életterét.
A házhoz elkészült a garázs és pince építési terve is, amelyet az új tulajdonos a vásárláskor megkap.
A kertben bőséges tér áll rendelkezésre további fejlesztésekhez vagy pihenőkert kialakításához. A biztonságról riasztórendszer előkészítés gondoskodik. azonosító: M314211

Hirdetés feltöltve: 2025. 10. 21. Utoljára módosítva: 2025. 11. 10.

Az ingatlan elhelyezkedése

Cím: Tordas

Eladó ingatlanok a környékről

Eladó családi ház
Eladó családi ház

Tordas

164.9 M Ft
6 szoba
138 m2
Eladó családi ház
Eladó családi ház

Mezőfalva

48 M Ft
3 + 2 szoba
133 m2
Eladó családi ház
Eladó családi ház

Tordas

210 M Ft
5 szoba
293 m2
Eladó panellakás
Eladó panellakás

Székesfehérvár

47.9 M Ft
2 szoba
49 m2
Eladó családi ház
Eladó családi ház

Baracska, Határ utca

74.9 M Ft
3 szoba
155 m2
Eladó családi ház
Eladó családi ház

Tordas

249.9 M Ft
7 szoba
388 m2
Eladó családi ház
Eladó családi ház

Lepsény, Róka sétány

64.9 M Ft
5 + 1 szoba
203 m2
Eladó családi ház
Eladó családi ház

Velence

80 M Ft
6 szoba
200 m2
Eladó családi ház
Eladó családi ház

Velence

119 M Ft
6 szoba
145 m2
Eladó családi ház
Eladó családi ház

Tordas

57 M Ft
4 szoba
133 m2
Eladó családi ház
Eladó családi ház

Sárbogárd, Tinódy utca

19.9 M Ft
3 szoba
75 m2
Eladó családi ház
Eladó családi ház

Székesfehérvár

64.9 M Ft
5 szoba
144 m2
Eladó családi ház
Eladó családi ház

Ercsi

51 M Ft
3 + 1 szoba
97 m2
Eladó családi ház
Eladó családi ház

Tordas

89 M Ft
3 szoba
75 m2
Eladó családi ház
Eladó családi ház

Vál

86.912 M Ft
4 szoba
80 m2
Eladó családi ház
Eladó családi ház

Dunaújváros, Petőfi Sándor utca 54

44 M Ft
3 szoba
70 m2
Eladó családi ház
Eladó családi ház

Tordas

57 M Ft
4 szoba
133 m2
Eladó családi ház
Eladó családi ház

Bakonycsernye

39 M Ft
3 szoba
350 m2
Eladó családi ház
Eladó családi ház

Pusztavám

22.9 M Ft
3 szoba
103 m2
Eladó családi ház
Eladó családi ház

Tordas

172 M Ft
4 szoba
135 m2
Eladó családi ház
Eladó családi ház

Tordas

240 M Ft
4 szoba
248 m2
Eladó családi ház
Eladó családi ház

Tordas

250 M Ft
7 szoba
388 m2
Eladó családi ház
Eladó családi ház

Székesfehérvár

59 M Ft
3 szoba
100 m2
Eladó családi ház
Eladó családi ház

Tordas

45 M Ft
2 szoba
80 m2

Falusi CSOK ingatlanok

Eladó családi ház
Eladó családi ház

Kaszaper

14.5 M Ft
3 szoba
63 m2
Eladó családi ház
Eladó családi ház

Balatonkeresztúr

117 M Ft
3 + 2 szoba
154 m2
Eladó családi ház
Eladó családi ház

Tihany, Csokonai utca 78

559 M Ft
8 szoba
340 m2
Eladó családi ház
Eladó családi ház

Varbóc

7.9 M Ft
2 szoba
86 m2
Eladó családi ház
Eladó családi ház

Vitnyéd, Petőfi Sándor utca 3

16.71 M Ft
1 + 1 szoba
99 m2
Eladó családi ház
Eladó családi ház

Gutorfölde

45 M Ft
4 szoba
111 m2
Eladó családi ház
Eladó családi ház

Seregélyes

75 M Ft
6 szoba
160 m2
Eladó családi ház
Eladó családi ház

Magyarszék

48.5 M Ft
3 + 1 szoba
86 m2