Aerogate Homes

Eladó családi ház
Tiszaeszlár

Figyelem!

Ez az ingatlan a 2019.07.01-től induló falusi CSOK által támogatott településen található

+ 17 kép 1/20
30 900 000 Ft30.9 M Ft 194 340 Ft/m2
4 szoba
159 m²
építés éve:1980

Részletes adatok

Állapot: Átlagos
Telekméret: 867 m2
Fűtés: Elektromos
Energetikai besorolás: Nem adta meg a hirdető

Az OTP Bank lakáshitel ajánlataFizetett hirdetés

+36 20 390
Tóth Zoltán
OTPIP Nyíregyháza Hunyadi u.

Érdekel az OTP Bank kedvezményes lakáshitel ajánlata? *

* A kérdésre „Igen” válasz bejelölése esetén, az „Üzenet küldése” gombra kattintva kijelentem, hogy az OTP Bank Nyrt. Adatkezelési tájékoztatójának tartalmát megismertem és tudomásul vettem.

Eladó családi ház leírása

Házat venne Tiszaeszlár nyugodt, csendes környékén?
Akkor ez az kiváló lehetőség!
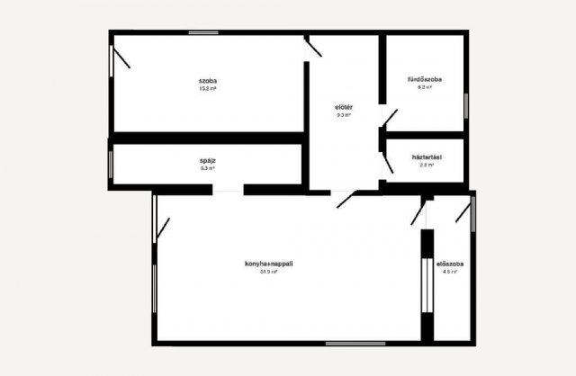
Eladó 867 nm-es telken egy kétszintes, 159 nm hasznos alapterületű, vegyes falazatú, cserép tetővel ellátott családi házat Tiszaeszlár csendes, nyugodt részén. Az ingatlan alsó szintjén szoba, fürdőszoba, előtér, spájz, konyha nappalival és előszoba került kialakításra, míg az emeleten három szoba, külön wc, tároló, előtér és erkély található. Az emeleti szobák és a közlekedő padlószőnyeggel, a további helyiségek járólappal burkoltak. A fűtésről kandalló, gázfűtés és klíma gondoskodik, így több alternatíva is rendelkezésre áll a komfortos hőérzet biztosítására. A házhoz kisebb méretű, rendezett telek tartozik néhány gyümölcsfával és egy melléképülettel, amely kiválóan alkalmas tárolásra, de igény szerint műhellyé vagy garázzsá is alakítható. A közelben megtalálható óvoda, iskola és gyógyszertár, így a mindennapi élethez szükséges intézmények könnyen elérhetők. Az ingatlan bútorozottan is eladó, amely megegyezés tárgyát képezi, és akár 60 napon belül birtokba vehető.

OTP Banki hátterünknek köszönhetően finanszírozási igényekben (pl. Otthon Start Hitelprogram, Babaváró, Falusi CSOK, CSOK Plusz, Lakáshitel, Személyi kölcsön stb.), illetve biztosítások tekintetében is díjmentesen, soron kívüli ügyintézéssel segítem ügyfeleim! Referenciaszám:M323038

Hirdetés feltöltve: 2026. 04. 01. Utoljára módosítva: 2026. 05. 10.

Az ingatlan elhelyezkedése

Cím: Tiszaeszlár

Eladó ingatlanok a környékről

Nyíregyháza
Eladó családi ház

Nyíregyháza

69.9 M Ft
3 szoba
140 m²
Tiszaeszlár, Rákóczi Ferenc utca
Eladó családi ház

Tiszaeszlár

22.9 M Ft
3 + 1 szoba
118 m²
Tiszaeszlár
Eladó családi ház

Tiszaeszlár

30.9 M Ft
4 szoba
159 m²
Nyíregyháza
Eladó családi ház

Nyíregyháza

150 M Ft
2 szoba
120 m²
Nyíregyháza
Eladó családi ház

Nyíregyháza

240 M Ft
3 szoba
204 m²
Vaja
Eladó családi ház

Vaja

9 M Ft
4 szoba
100 m²
Túristvándi
Eladó családi ház

Túristvándi

10.9 M Ft
2 szoba
75 m²
Nyíregyháza
Eladó családi ház

Nyíregyháza

250 M Ft
4 szoba
440 m²
Napkor
Eladó családi ház

Napkor

115 M Ft
5 szoba
292 m²
Nyíregyháza
Eladó családi ház

Nyíregyháza

98 M Ft
4 szoba
125 m²
Nyíregyháza
Eladó családi ház

Nyíregyháza

140 M Ft
3 szoba
190 m²
Tiszavasvári
Eladó családi ház

Tiszavasvári

12.5 M Ft
1 szoba
70 m²
Tiszaeszlár
Eladó családi ház

Tiszaeszlár

30.9 M Ft
4 szoba
159 m²
Nyírtelek
Eladó családi ház

Nyírtelek

130 M Ft
3 szoba
159 m²
Kállósemjén
Eladó családi ház

Kállósemjén

24.99 M Ft
2 szoba
67 m²
Tiszaeszlár
Eladó családi ház

Tiszaeszlár

29.9 M Ft
3 + 1 szoba
104 m²
Tiszaeszlár, Rákóczi Ferenc utca
Eladó családi ház

Tiszaeszlár

26 M Ft
3 szoba
120 m²
Tiszaeszlár
Eladó családi ház

Tiszaeszlár

30.9 M Ft
4 szoba
159 m²
Nyíregyháza
Eladó családi ház

Nyíregyháza

63.9 M Ft
2 + 1 szoba
100 m²
Nyíregyháza
Eladó téglalakás

Nyíregyháza

46.9 M Ft
3 szoba
66 m²
Túristvándi
Eladó családi ház

Túristvándi

12 M Ft
2 + 1 szoba
65 m²
Nyíregyháza
Eladó téglalakás

Nyíregyháza

67.9 M Ft
3 szoba
62 m²
Nyírpazony
Eladó ikerház

Nyírpazony

75.999 M Ft
3 szoba
95 m²
Nyíregyháza
Eladó családi ház

Nyíregyháza

199.9 M Ft
6 szoba
500 m²

Falusi CSOK ingatlanok

Tápiógyörgye
Eladó családi ház

Tápiógyörgye

22.5 M Ft
3 + 1 szoba
83 m²
Tápiószőlős
Eladó családi ház

Tápiószőlős

9.9 M Ft
3 szoba
0 m²
Kétegyháza
Eladó családi ház

Kétegyháza

21 M Ft
3 szoba
105 m²
Csurgó
Eladó családi ház

Csurgó

19.9 M Ft
4 szoba
136 m²
Egerbakta
Eladó családi ház

Egerbakta

43.9 M Ft
5 + 1 szoba
160 m²
Balatonszemes
Eladó téglalakás

Balatonszemes

123.3 M Ft
2 szoba
0 m²
Tápiószőlős
Eladó családi ház

Tápiószőlős

39.9 M Ft
4 szoba
120 m²
Badacsonytomaj
Eladó családi ház

Badacsonytomaj

285 M Ft
4 szoba
230 m²

Falusi CSOK ingatlanok

Balatonszemes, Ady Endre u
Eladó téglalakás

Balatonszemes

64.9 M Ft
1 szoba
37 m²
Sumony
Eladó családi ház

Sumony

19 M Ft
4 szoba
120 m²
Szob
Eladó sorház

Szob

16 M Ft
2 szoba
45 m²
Letenye
Eladó családi ház

Letenye

35.9 M Ft
3 szoba
105 m²
Arló, Mátyás Király utca
Eladó családi ház

Arló

14.99 M Ft
2 szoba
66 m²
Seregélyes
Eladó családi ház

Seregélyes

87 M Ft
4 szoba
96 m²
Kétegyháza
Eladó családi ház

Kétegyháza

21 M Ft
3 szoba
105 m²
Szigetújfalu
Eladó családi ház

Szigetújfalu

66 M Ft
3 szoba
118 m²