BAM Living

Eladó családi ház
Telki

+ 13 kép 1/16
326 000 000 Ft326 M Ft 1 509 259 Ft/m2
5 szoba
216 m2
építés éve:2002

Részletes adatok

Telekméret: 1203 m2
Fűtés: Egyéb
Energetikai besorolás: Nem adta meg a hirdető

Az OTP Bank lakáshitel ajánlataFizetett hirdetés

+36 20 560
Nagybányai Zénó
Immo1

Érdekel az OTP Bank kedvezményes lakáshitel ajánlata? *

* A kérdésre „Igen” válasz bejelölése esetén, az „Üzenet küldése” gombra kattintva kijelentem, hogy az OTP Bank Nyrt. Adatkezelési tájékoztatójának tartalmát megismertem és tudomásul vettem.

Eladó családi ház leírása

Telkiben 216 m2-es, 4 szobás, jó műszaki állapotú, tehermentes családi ház nagy telekkel eladó!

ELHELYEZKEDÉS:
- Csendes, családi házas övezetben, 12 km távolságra Budapesttől
- Közelben: óvoda, iskola, orvosi rendelő, gyógyszertár, buszmegálló, élelmiszerbolt
- Dupla garázs, de még két autónak van lehetőség parkolásra

INGATLAN:
- Telek: 1203 m2
- Lakótér: nettó 131 m2

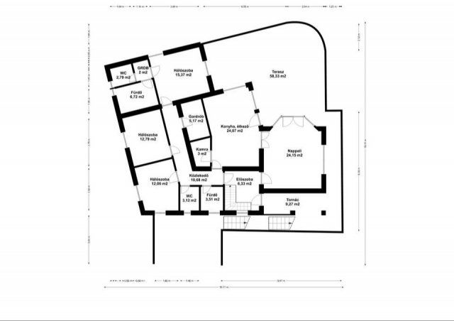
HELYISÉGEK:
Nappali: 24,15 m2
Étkezős konyha: 24,07m2
3 háló: összesen 40 m2
2 fürdő: összesen 17,54 m2
1 szuterén dolgozó:
1 szauna helyiség ( jelenleg raktár)
Dupla garázs: 57 m2
Kazánház, egyéb helyiség: 27,45
Teraszok: 67,6 m2 + kb 20 m2 panorámás filagória, szalonnasütővel

MŰSZAKI/ÁLLAPOT:

- Téglaépítésű (38 phorotherm) ház, perlites hőszigetelő vakolat
- Monolit födém (beépíthető)
- Építés éve: 2002
- Tetőtér beépíthető, tetőfedés: Bramac betoncserép, a tetőszerkezet kiváló állapotú
- Műanyag nyílászárók, 3 rétegű hőszigetelt üveggel, aluminium redőnyökkel, szúnyoghálóval
- A szobákban gőzölt akác parketta (nem laminált!)
- A hidegburkolatok olaszországból importáltak (Valentino)
- Központi fűtés Hoval kondenzációs gázkazánnal, 110 literes puffer tartállyal
- Teljes közmű
- Általános állapot: Általánosan jó, azonnal költözhető
- Cseresznyefa konyhabútor
- Csiszolt gránit munkalap
- Öntözőrendszer, Husqvarna
- 2 db Daikin inverteres klíma
- Vízlágyító és víztisztító rendszer
- Elektromos kapu és garázskapu
- Riasztórendszer

EXTRÁK:
Panorámás filagória, kerti kő grill
Teljes, beállt parkosítás
Szauna előkészítés a földszinten
80%-ban sík telek, panorámával

Napelem pályázatot nyert az ingatlan, de az eladás miatt nem lett elkészítve, de a tetőszerkezet és a tájolás tökéletesen alkalmas rá.

FINANSZÍROZÁS:
Az ingatlan per, teher és igénymentes, pénzintézeti hitel igénybevételével is megvásárolható.

A telek körbekerített. Az udvar tágas, családi összejövetelekhez és kinti szórakozásra is alkalmas.

Az ingatlant elsősorban nagyobb családoknak ajánlom. A tetőtér beépíthetősége és jó megközelítése további szobák kialakítását teszi lehetővé.
Telki csendes, zöldövezeti környezetben, Budapest közelében kínál kiváló életminőséget. A település az MLSZ edzőközpontjáról, prémium egészségügyi szolgáltatásairól és kirándulóhelyeiről ismert. Ideális választás családoknak és a nyugodt életre vágyóknak. Élvezze a természet közelségét a főváros elérhető távolságában!

Rugalmasan megtekinthető.
A költözési idő szintén rugalmas.

Hirdetés feltöltve: 2025. 12. 03.

5 szobás családi házak ára Telkin

Ebből az összehasonlításból megtudhatod, hogyan viszonyul a lakás ára a környékbeli családi házak átlagos árához. Ez nem azt jelenti, hogy ennyivel olcsóbb vagy drágább, mint amennyit a lakás ér, hanem hogy ennyivel tér el a környékbeli átlagtól.

Ennek a m² ára
Telki m² ár
1509 e Ft
1039 e Ft -45%
Ennek az ára
Telki átlagár
326 M Ft m Ft
272.5 m Ft -20%

Az ingatlan elhelyezkedése

Cím: Telki

Eladó családi házak a környékről

Eladó családi ház
Eladó családi ház

Tápiószele

32.9 M Ft
4 szoba
200 m2
Eladó családi ház
Eladó családi ház

Pécel, Reményik Sándor utca

296 M Ft
6 szoba
396 m2
Eladó családi ház
Eladó családi ház

Telki

1499 M Ft
11 szoba
1060 m2
Eladó családi ház
Eladó családi ház

Telki

159.9 M Ft
8 szoba
254 m2
Eladó családi ház
Eladó családi ház

Telki

159.9 M Ft
8 szoba
254 m2
Eladó családi ház
Eladó családi ház

Gyál, Gyál út

169.9 M Ft
2 szoba
90 m2
Eladó családi ház
Eladó családi ház

Telki

159.9 M Ft
8 szoba
254 m2
Eladó családi ház
Eladó családi ház

Telki

179 M Ft
3 + 1 szoba
200 m2
Eladó családi ház
Eladó családi ház

Telki

225 M Ft
5 + 1 szoba
235 m2
Eladó családi ház
Eladó családi ház

Telki

225 M Ft
4 + 1 szoba
180 m2
Eladó családi ház
Eladó családi ház

Kerepes

199 M Ft
6 szoba
360 m2
Eladó családi ház
Eladó családi ház

Budakeszi

130 M Ft
5 szoba
30 m2
Eladó családi ház
Eladó családi ház

Telki

125 M Ft
4 szoba
165 m2
Eladó családi ház
Eladó családi ház

Dunavarsány

49.9 M Ft
3 + 2 szoba
130 m2
Eladó családi ház
Eladó családi ház

Telki

179 M Ft
3 + 1 szoba
200 m2
Eladó családi ház
Eladó családi ház

Budakeszi, Budakeszi kertváros

140 M Ft
2 szoba
55 m2
Eladó családi ház
Eladó családi ház

Telki, Szilfa utca

760 M Ft
10 szoba
478 m2
Eladó családi ház
Eladó családi ház

Telki

125 M Ft
4 szoba
165 m2
Eladó családi ház
Eladó családi ház

Telki

247.65 M Ft
6 szoba
350 m2
Eladó családi ház
Eladó családi ház

Telki

300 M Ft
4 + 1 szoba
180 m2
Eladó családi ház
Eladó családi ház

Telki

179 M Ft
3 + 1 szoba
200 m2
Eladó családi ház
Eladó családi ház

Sződ, Rátóti utca

149.99 M Ft
11 szoba
270 m2
Eladó családi ház
Eladó családi ház

Telki

396 M Ft
6 szoba
420 m2
Eladó családi ház
Eladó családi ház

Budaörs, Városközpont utca

119.5 M Ft
5 + 1 szoba
140 m2

Falusi CSOK ingatlanok

Eladó családi ház
Eladó családi ház

Sükösd

18.5 M Ft
3 szoba
89 m2
Eladó téglalakás
Eladó téglalakás

Vasvár

40.52 M Ft
2 szoba
59 m2
Eladó családi ház
Eladó családi ház

Ónod, Kossuth út 10

27.499 M Ft
3 + 2 szoba
120 m2
Eladó családi ház
Eladó családi ház

Mezőfalva

39 M Ft
3 szoba
77 m2
Eladó családi ház
Eladó családi ház

Újlengyel

110 M Ft
4 szoba
121 m2
Eladó családi ház
Eladó családi ház

Hernádnémeti

18.9 M Ft
2 szoba
62 m2
Eladó családi ház
Eladó családi ház

Ceglédbercel, Iskola utca

99.99 M Ft
5 szoba
128 m2
Eladó családi ház
Eladó családi ház

Tápiógyörgye

32 M Ft
3 szoba
86 m2