City Pearl

Eladó családi ház
Tatabánya

+ 17 kép 1/20
199 000 000 Ft199 M Ft 710 714 Ft/m2
6 + 3 szoba
280 m2
építés éve:2009

Részletes adatok

Telekméret: 3200 m2
Fűtés: Gázkazán
Energetikai besorolás: Nem adta meg a hirdető

Az OTP Bank lakáshitel ajánlataFizetett hirdetés

+36 70 639
Szabó Gábor
referens

Érdekel az OTP Bank kedvezményes lakáshitel ajánlata? *

* A kérdésre „Igen” válasz bejelölése esetén, az „Üzenet küldése” gombra kattintva kijelentem, hogy az OTP Bank Nyrt. Adatkezelési tájékoztatójának tartalmát megismertem és tudomásul vettem.

Eladó családi ház leírása

Egyedülálló birtok három különálló ingatlannal természetközeli luxus és sokoldalú lehetőségek!
Eladó Komárom-Esztergom vármegyében, festői környezetben három külön helyrajzi számon nyilvántartott, egymáshoz közeli ingatlan, összesen több mint 3.400 m? területtel. A birtok ideális választás lehet családi otthonnak, vendégháznak, wellness központnak vagy akár borászatnak is.
csendes, zöldövezeti környezetben kínálunk megvételre egy különleges birtokot, amely három külön helyrajzi számon nyilvántartott ingatlanból áll, összesen több mint 3.400 m2 területtel.
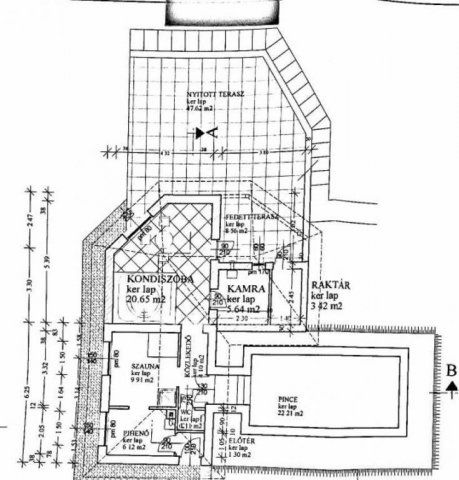
Az első ingatlan egy eredetileg présházként funkcionáló, ma már fürdőházzá alakított épület, amely 2006-ban lett kibővítve. Az épület 80 m2 es, tégla szerkezetű, benne konyha, fürdő, előtér és két tároló található. A wellness élményt jakuzzi és infra szauna biztosítja. A fűtés gázról történik egy saját 5 m2-es tartályról, kiegészítve vegyes tüzelésű vízteres kazánnal fa tüzelésű vízteres kandallóval. A házhoz tartozik egy boltíves pince (3,5×8 m), egy különálló fa szerkezetű tárolóépület , egy hat szögletű filagória, valamint egy nyitott és fedett burkolt terasz. A kert parkosított, szintezett és lejtős kialakítású, kerti csapokkal és fa kerítéssel körbevett játszótérrel a felső szinten.
A második ingatlan egy lakóépület, amely 2000-2010-ben épült, 110 m2 alapterülettel és egy fa szerkezetű galériával. Az épületben nappali, konyha, kamra, fürdőszoba, hálószoba és dolgozószoba található, valamint két tetőtéri szoba. A fűtés itt is gázról történik saját tartályról, kiegészítve fa tüzelésű vízteres kandallóval. Két boltíves pince is tartozik az ingatlanhoz az egyik belülről, a másik kívülről nyílik , valamint egy külön bejáratú nyárikonyha (8×4 m). A kert szintén parkosított, lejtős, gyümölcsfákkal és kerti csapokkal ellátott.
A harmadik ingatlan egy gazdasági épület, amely présházként és pincével épült, jelenleg eszköztárolóként funkcionál. Az épület kb. 48 m2 alapterületű, az emeleti terasz 36 m2-es. A földszinten konyha, fürdő, tároló és előtér található, az épület több célra is hasznosítható akár vendégszállásként, akár műhelyként vagy borászati célra.
Mindhárom ingatlan önálló vízórával és villanyórával rendelkezik, a kerítés mindenhol tűzihorganyzott acélból készült, a szennyvíz zárt tárolókban kerül elhelyezésre. A birtok egésze kivételes lehetőséget kínál azok számára, akik nyugalmat, természetközelséget és sokoldalú hasznosítást keresnek. Legyen szó családi otthonról, vendéglátásról vagy befektetésről itt minden adott.
Amennyiben felkeltettük érdeklődését, kérem hívjon bizalommal!
Szabó Gábor +36-70-639-8927

Referencia szám: M312242-ZE

Hirdetés feltöltve: 2025. 12. 18. Utoljára módosítva: 2025. 12. 18.

Az ingatlan elhelyezkedése

Cím: Tatabánya

Eladó családi házak a környékről

Eladó családi ház
Eladó családi ház

Tatabánya

14.5 M Ft
2 szoba
49 m2
Eladó családi ház
Eladó családi ház

Tatabánya

20.5 M Ft
1 + 1 szoba
49 m2
Eladó családi ház
Eladó családi ház

Tatabánya, Alsógalla

57 M Ft
4 + 1 szoba
205 m2
Eladó családi ház
Eladó családi ház

Oroszlány

55.99 M Ft
5 szoba
163 m2
Eladó családi ház
Eladó családi ház

Komárom

65.691 M Ft
3 szoba
73 m2
Eladó családi ház
Eladó családi ház

Vértesszőlős

15.99 M Ft
2 szoba
80 m2
Eladó családi ház
Eladó családi ház

Tatabánya

98 M Ft
4 szoba
90 m2
Eladó családi ház
Eladó családi ház

Tatabánya

63.183 M Ft
4 szoba
145 m2
Eladó családi ház
Eladó családi ház

Tatabánya

149.9 M Ft
8 szoba
272 m2
Eladó családi ház
Eladó családi ház

Tatabánya

66.9 M Ft
4 szoba
120 m2
Eladó családi ház
Eladó családi ház

Tatabánya

49.091 M Ft
4 szoba
113 m2
Eladó családi ház
Eladó családi ház

Tatabánya, Felsőgalla, Réce

58.5 M Ft
3 + 1 szoba
130 m2
Eladó családi ház
Eladó családi ház

Tatabánya

180 M Ft
8 szoba
510 m2
Eladó családi ház
Eladó családi ház

Komárom

135 M Ft
7 + 2 szoba
254 m2
Eladó családi ház
Eladó családi ház

Tatabánya, Bánhida, Károlyi Mihály utca

36 M Ft
3 + 1 szoba
95 m2
Eladó családi ház
Eladó családi ház

Tatabánya

104.9 M Ft
4 szoba
110 m2
Eladó családi ház
Eladó családi ház

Pilismarót

33 M Ft
3 szoba
86 m2
Eladó családi ház
Eladó családi ház

Komárom

39.035 M Ft
1 + 1 szoba
43 m2
Eladó családi ház
Eladó családi ház

Tatabánya

98 M Ft
3 szoba
90 m2
Eladó családi ház
Eladó családi ház

Komárom

47.071 M Ft
2 szoba
50 m2
Eladó családi ház
Eladó családi ház

Tatabánya, Alsógalla

57 M Ft
4 + 1 szoba
205 m2
Eladó családi ház
Eladó családi ház

Szomor, Ady Endre utca

105 M Ft
4 szoba
295 m2
Eladó családi ház
Eladó családi ház

Tatabánya

140 M Ft
5 szoba
150 m2
Eladó családi ház
Eladó családi ház

Komárom

63.457 M Ft
2 + 1 szoba
71 m2

Falusi CSOK ingatlanok

Eladó családi ház
Eladó családi ház

Sellye

15 M Ft
3 szoba
120 m2
Eladó családi ház
Eladó családi ház

Vilonya

29 M Ft
2 szoba
70 m2
Eladó családi ház
Eladó családi ház

Kenyeri

39.9 M Ft
3 szoba
94 m2
Eladó családi ház
Eladó családi ház

Ipolyvece

18.9 M Ft
3 + 1 szoba
91 m2
Eladó családi ház
Eladó családi ház

Homokmégy

15.9 M Ft
2 + 1 szoba
78 m2
Eladó családi ház
Eladó családi ház

Pétfürdő

36.5 M Ft
3 szoba
100 m2
Eladó családi ház
Eladó családi ház

Dunaszekcső

27.5 M Ft
3 szoba
128 m2
Eladó családi ház
Eladó családi ház

Tápiógyörgye

30 M Ft
3 szoba
65 m2