Seven Pearl

Eladó családi ház
Tapolca

+ 17 kép 1/20
133 900 000 Ft133.9 M Ft 233 275 Ft/m2
7 szoba
574 m²
építés éve:1991

Részletes adatok

Telekméret: 924 m2
Fűtés: Egyéb
Parkolás: Garázs
Közmű: Víz, Gáz, Villany, Csatorna
Komfort: Összkomfortos
Energetikai besorolás: Nem adta meg a hirdető

Az OTP Bank lakáshitel ajánlataFizetett hirdetés

+36 30 275
Kovács József
referens

Érdekel az OTP Bank kedvezményes lakáshitel ajánlata? *

* A kérdésre „Igen” válasz bejelölése esetén, az „Üzenet küldése” gombra kattintva kijelentem, hogy az OTP Bank Nyrt. Adatkezelési tájékoztatójának tartalmát megismertem és tudomásul vettem.

Eladó családi ház leírása

Eladó Veszprém Vármegye Tapolca Családi Ház

Tapolcán eladó egy 574 nm hasznos alapterületű három szintes családi ház.
Az ingatlan összkomfortos teteje Bramac tető cserép, Állapota jó.
Elrendezése praktikus és napfényes.
Méretéből adódóan számos célra hasznosítható! Kivalló befektetési lehetőség!
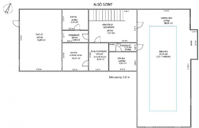
Az alsó szinten található: medence, 12 fős szauna, épületgépészet és sok tárolóhelyiség.
A földszinten található: Nagy méretű fedett terasz, egy nagy méretű napfényes nappali, konyha, előszoba, kettő fürdőszoba, kettő nagy szoba, közlekedő, lépcsőház és tárolók.
Felső szinten: Öt tágas szoba, nagy méretű nappali, kettő fürdőszoba, két erkély, lépcsőház és tároló helység.

Összesen 4 fürdőszoba, 7 szoba, 2 nappali.
Az otthon melegéről vegyes tüzelésű kazán gondoskodik. Valamint a gáz központi is kialakítva.
A nyári hőségről pedig 3 db légkondicionáló gondoskodik. Nappaliban egy szép kandalló is gondoskodik a hangulatról.
Minden helység lapradiátorral felszerelt.

Udvara rendezett folyamatosan karban tartott, nagy része térkövezett.
A ház folytatásában a kazánház új vegyes tüzelésű kazánnal, gázkazánnal és külön mosdóval felszerelt.
A garázs 36 m2-es, fűtött, kiváló állapotú!
Az udvaron felépítésre került egy 56 m2-es pavilon, mely kisebb rendezvények megtartására is alkalmas lehet.
Az ingatlan kamera rendszerrel és riasztóval felszerelt! A kapu elektromos.
Ipari áram bevezetésre került.
Telek mérete: 924 m2.
Tapolcai Malom-Tó öt perc sétával érhető el, így a központ is könnyű sétával megközelíthető.
Ajánlom az ingatlant befektetőknek, vállalkozóknak, mivel a Balaton közelsége adott.
Nem áll rendelkezésre energetikai tanűsítvány, folyamatban van.
Amennyiben hirdetésem felkeltette az érdeklődését, hívjon bizalommal.

Hirdetés feltöltve: 2026. 04. 10. Utoljára módosítva: 2026. 05. 16.

Az ingatlan elhelyezkedése

Cím: Tapolca

Eladó családi házak a környékről

Tihany
Eladó családi ház

Tihany

390 M Ft
6 szoba
417 m²
Tapolca
Eladó családi ház

Tapolca

195 M Ft
4 szoba
250 m²
Balatonakarattya
Eladó családi ház

Balatonakarattya

169 M Ft
4 szoba
149 m²
Tapolca
Eladó családi ház

Tapolca

33.9 M Ft
2 szoba
75 m²
Tapolca
Eladó családi ház

Tapolca

49 M Ft
3 szoba
125 m²
Tapolca
Eladó családi ház

Tapolca

79.9 M Ft
3 szoba
102 m²
Tapolca
Eladó családi ház

Tapolca

78 M Ft
4 + 4 szoba
210 m²
Badacsonytördemic
Eladó családi ház

Badacsonytördemic

79.9 M Ft
5 szoba
165 m²
Várpalota
Eladó családi ház

Várpalota

156.7 M Ft
4 szoba
130 m²
Tapolca
Eladó családi ház

Tapolca

93 M Ft
5 szoba
140 m²
Tapolca
Eladó családi ház

Tapolca

133.9 M Ft
7 szoba
574 m²
Tapolca
Eladó családi ház

Tapolca

133.9 M Ft
7 szoba
574 m²
Tapolca
Eladó családi ház

Tapolca

205 M Ft
6 szoba
338 m²
Pápa
Eladó családi ház

Pápa

39.9 M Ft
4 + 1 szoba
148 m²
Tapolca
Eladó családi ház

Tapolca

29.9 M Ft
1 szoba
40 m²
Tapolca
Eladó családi ház

Tapolca

205 M Ft
6 szoba
338 m²
Csopak
Eladó családi ház

Csopak

266 M Ft
9 szoba
350 m²
Várpalota
Eladó családi ház

Várpalota

156.7 M Ft
4 szoba
130 m²
Ábrahámhegy
Eladó családi ház

Ábrahámhegy

190 M Ft
5 szoba
112 m²
Tapolca
Eladó családi ház

Tapolca

41.9 M Ft
2 szoba
125 m²
Tapolca
Eladó családi ház

Tapolca

93 M Ft
5 szoba
140 m²
Várpalota
Eladó családi ház

Várpalota

55 M Ft
4 + 2 szoba
113 m²
Dörgicse
Eladó családi ház

Dörgicse

39.9 M Ft
2 + 1 szoba
66 m²
Tapolca
Eladó családi ház

Tapolca

59.9 M Ft
6 szoba
160 m²

Falusi CSOK ingatlanok

Rakamaz
Eladó családi ház

Rakamaz

86.9 M Ft
5 szoba
280 m²
Örkény
Eladó családi ház

Örkény

34 M Ft
2 + 1 szoba
85 m²
Újlengyel
Eladó családi ház

Újlengyel

77.9 M Ft
4 szoba
0 m²
Hosszúpereszteg
Eladó családi ház

Hosszúpereszteg

27.9 M Ft
4 szoba
0 m²
Végegyháza
Eladó családi ház

Végegyháza

62.9 M Ft
4 + 1 szoba
150 m²
Rábaszentmihály
Eladó családi ház

Rábaszentmihály

53 M Ft
3 szoba
156 m²
Pécsely
Eladó családi ház

Pécsely

85 M Ft
2 szoba
90 m²
Jászkarajenő
Eladó családi ház

Jászkarajenő

17 M Ft
3 szoba
81 m²