Eladó családi ház
Tapolca

+ 17 kép 1/20
185 000 000 Ft185 M Ft 393 617 Ft/m2
7 szoba
470 m2
építés éve:2005

Részletes adatok

Állapot: Felújított
Telekméret: 1151 m2
Fűtés: Gázkazán
Energetikai besorolás: Nem adta meg a hirdető

Az OTP Bank lakáshitel ajánlataFizetett hirdetés

+36 70 315
Verrasztó Edina Irén
OTP Ingatlanpont Celldömölk

Érdekel az OTP Bank kedvezményes lakáshitel ajánlata? *

* A kérdésre „Igen” válasz bejelölése esetén, az „Üzenet küldése” gombra kattintva kijelentem, hogy az OTP Bank Nyrt. Adatkezelési tájékoztatójának tartalmát megismertem és tudomásul vettem.

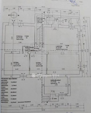
Eladó családi ház leírása

Balaton Felvidék Tapolca Családi Ház (Villa) Eladó

Tapolca kertvárosi részén csendes nyugodt környezetben mégis közel a belvároshoz található ez az igényesen kialakított 4 szintes villa, lakóház.
A fűtést gáz cirkó és vegyes kazán is biztosítja. Az épületben 7 szoba
2 fürdőszoba wc, konyha és több egyéb helyiség található. Az alagsor és a tetőtér is beépíthető. Az ingatlanhoz 1151nm telek
tartozik. Igényesen parkosított, füvesített és térkővel burkolt. Az udvaron szökőkútnak a vízvezeték kialakításra került. Az udvarban dupla garázs
és nyári konyha nappali is található. Az ingatlan 4 szer kapta meg Tapolca Város legszebb kertje címet. Az ingatlant riasztó és kamera rendszer védi. Az ingatlan kitűnő állapotú. Igényesen van kialakítva.
A belváros gyorsan elérhető. Bolt, iskola, óvoda, orvosi rendelő, kórház a közelben.
Amennyiben felkeltettem érdeklődését hívjon bizalommal.

185000000 Ft
Amennyiben az ingatlan felkeltette érdeklődését, esetleg bármivel kapcsolatban kérdése lenne, keressen Bizalommal! Verrasztó Edina: +36703156380

Referencia szám: M300502-ZE

Hirdetés feltöltve: 2025. 10. 23.

Az ingatlan elhelyezkedése

Cím: Tapolca

Eladó ingatlanok a környékről

Eladó téglalakás
Eladó téglalakás

Gyula

29.5 M Ft
2 szoba
55 m2
Eladó családi ház
Eladó családi ház

Elek

6.9 M Ft
2 + 1 szoba
70 m2
Eladó családi ház
Eladó családi ház

Békéssámson

29.9 M Ft
5 szoba
200 m2
Eladó sorház
Eladó sorház

Gyula

65 M Ft
4 szoba
160 m2
Eladó telek
Eladó telek

Szarvas

29 M Ft
828 m²
Eladó családi ház
Eladó családi ház

Békéssámson

7.99 M Ft
3 szoba
91 m2
Eladó családi ház
Eladó családi ház

Sarkad

18.9 M Ft
3 szoba
99 m2
Eladó téglalakás
Eladó téglalakás

Mezőhegyes

9.99 M Ft
3 szoba
81 m2
Eladó telek
Eladó telek

Békés

9.35 M Ft
3192 m²
Eladó családi ház
Eladó családi ház

Sarkad

8.7 M Ft
2 szoba
90 m2
Eladó családi ház
Eladó családi ház

Békéscsaba

59.5 M Ft
2 szoba
89 m2
Eladó családi ház
Eladó családi ház

Békéscsaba

74.99 M Ft
2 + 3 szoba
117 m2
Eladó családi ház
Eladó családi ház

Mezőkovácsháza

52.9 M Ft
7 szoba
400 m2
Eladó családi ház
Eladó családi ház

Battonya

7.5 M Ft
1 szoba
40 m2
Eladó családi ház
Eladó családi ház

Orosháza

6.5 M Ft
2 szoba
99 m2
Eladó családi ház
Eladó családi ház

Gyula

68.5 M Ft
5 szoba
147 m2
Eladó családi ház
Eladó családi ház

Békés

19.9 M Ft
1 szoba
50 m2
Eladó üzlethelyiség
Eladó üzlethelyiség

Mezőkovácsháza

17 M Ft
379 m²
104 m2
Eladó ikerház
Eladó ikerház

Mezőhegyes

3.5 M Ft
2 szoba
62 m2
Eladó családi ház
Eladó családi ház

Békéscsaba

72.075 M Ft
4 szoba
93 m2
Eladó családi ház
Eladó családi ház

Békéscsaba

28 M Ft
5 szoba
120 m2
Eladó mezogazdasagi ingatlan
Eladó mezogazdasagi ingatlan

Békéscsaba

1.999 M Ft
814 m²
814 m2
Eladó családi ház
Eladó családi ház

Kunágota

13.9 M Ft
2 + 1 szoba
63 m2
Eladó családi ház
Eladó családi ház

Szarvas

7 M Ft
2 szoba
57 m2

Falusi CSOK ingatlanok

Eladó családi ház
Eladó családi ház

Szeremle

25 M Ft
4 szoba
185 m2
Eladó ikerház
Eladó ikerház

Sáránd

69.9 M Ft
3 szoba
90 m2
Eladó családi ház
Eladó családi ház

Ságvár

59.9 M Ft
3 szoba
87 m2
Eladó családi ház
Eladó családi ház

Balatonberény

115.259 M Ft
5 szoba
145 m2
Eladó családi ház
Eladó családi ház

Böhönye, Dózsa körút

20.9 M Ft
5 + 1 szoba
127 m2
Eladó családi ház
Eladó családi ház

Kács

29.5 M Ft
4 szoba
150 m2
Eladó családi ház
Eladó családi ház

Lovászpatona

15.9 M Ft
3 szoba
72 m2
Eladó családi ház
Eladó családi ház

Zsámbok

45 M Ft
2 szoba
60 m2