Stay Family Park

Eladó családi ház
Tapolca

+ 4 kép 1/7
55 000 000 Ft55 M Ft 440 000 Ft/m2
2 szoba
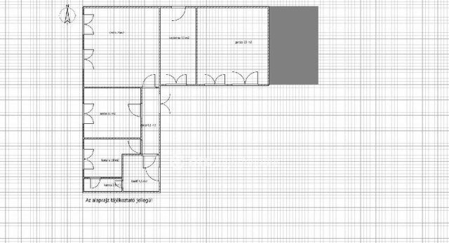
125 m2
építés éve:1970

Részletes adatok

Állapot: Felújítandó
Telekméret: 678 m2
Fűtés: Gázkonvektor
Közmű: Víz, Gáz, Villany, Csatorna
Energetikai besorolás: Nem adta meg a hirdető

Az OTP Bank lakáshitel ajánlataFizetett hirdetés

+36 70 429
Molnár Annamária
referens

Érdekel az OTP Bank kedvezményes lakáshitel ajánlata? *

* A kérdésre „Igen” válasz bejelölése esetén, az „Üzenet küldése” gombra kattintva kijelentem, hogy az OTP Bank Nyrt. Adatkezelési tájékoztatójának tartalmát megismertem és tudomásul vettem.

Eladó családi ház leírása

A Balaton északi partjának közelében, Veszprém vármegyében Tapolca belterületén a belvároshoz közel eladó egy erősen felújítandó 125 m2 alapterületű polgári ház 678 m2-es területen. A tulajdoni lapon kivett lakóház, udvar, gazdasági épület. Víz, villany, csatorna, gáz bevezetve. A fűtést konvektorok biztosították, de ezek is felújítandók. A tető cseréptető. A nyílászárók régi fa ablakok redőnnyel és egy fém bejárati ajtó. Az utca aszfaltozott, a kert kerítéssel körbevett.

Hirdetés feltöltve: 2025. 10. 17. Utoljára módosítva: 2025. 11. 02.

2 szobás családi házak ára Tapolcán

Ebből az összehasonlításból megtudhatod, hogyan viszonyul a lakás ára a környékbeli családi házak átlagos árához. Ez nem azt jelenti, hogy ennyivel olcsóbb vagy drágább, mint amennyit a lakás ér, hanem hogy ennyivel tér el a környékbeli átlagtól.

Ennek a m² ára
Tapolca m² ár
440 e Ft
580 e Ft 24%
Ennek az ára
Tapolca átlagár
55 M Ft m Ft
94.3 m Ft 42%

Az ingatlan elhelyezkedése

Cím: Tapolca

Eladó családi házak a környékről

Eladó családi ház
Eladó családi ház

Veszprém

149 M Ft
6 + 1 szoba
243 m2
Eladó családi ház
Eladó családi ház

Pápa, Hunyadi János utca

39 M Ft
3 szoba
125 m2
Eladó családi ház
Eladó családi ház

Tapolca

27.9 M Ft
2 szoba
75 m2
Eladó családi ház
Eladó családi ház

Balatonfűzfő

270 M Ft
5 + 4 szoba
270 m2
Eladó családi ház
Eladó családi ház

Csopak

266 M Ft
9 szoba
350 m2
Eladó családi ház
Eladó családi ház

Tapolca

49 M Ft
4 szoba
125 m2
Eladó családi ház
Eladó családi ház

Tapolca

44.5 M Ft
3 szoba
96 m2
Eladó családi ház
Eladó családi ház

Dabrony

2.2 M Ft
2 szoba
65 m2
Eladó családi ház
Eladó családi ház

Tapolca

89.9 M Ft
5 szoba
120 m2
Eladó családi ház
Eladó családi ház

Balatonfüred

449.9 M Ft
9 szoba
478 m2
Eladó családi ház
Eladó családi ház

Tapolca

56.9 M Ft
3 szoba
92 m2
Eladó családi ház
Eladó családi ház

Sáska

195 M Ft
4 szoba
254 m2
Eladó családi ház
Eladó családi ház

Tapolca

49 M Ft
3 szoba
125 m2
Eladó családi ház
Eladó családi ház

Tapolca

99 M Ft
4 szoba
212 m2
Eladó családi ház
Eladó családi ház

Tapolca

185 M Ft
7 szoba
470 m2
Eladó családi ház
Eladó családi ház

Badacsonytördemic

79.9 M Ft
5 szoba
165 m2
Eladó családi ház
Eladó családi ház

Tapolca

133.9 M Ft
7 szoba
574 m2
Eladó családi ház
Eladó családi ház

Városlőd

23 M Ft
2 szoba
95 m2
Eladó családi ház
Eladó családi ház

Balatonalmádi

172.464 M Ft
4 szoba
129 m2
Eladó családi ház
Eladó családi ház

Ábrahámhegy, Zsákutca

82.9 M Ft
3 + 2 szoba
110 m2
Eladó családi ház
Eladó családi ház

Tapolca

64.9 M Ft
3 szoba
92 m2
Eladó családi ház
Eladó családi ház

Tapolca

59.9 M Ft
6 szoba
160 m2
Eladó családi ház
Eladó családi ház

Lesencetomaj

90 M Ft
5 + 1 szoba
180 m2
Eladó családi ház
Eladó családi ház

Veszprém

149 M Ft
4 + 1 szoba
250 m2

Falusi CSOK ingatlanok

Eladó családi ház
Eladó családi ház

Jakabszállás

62.9 M Ft
4 szoba
91 m2
Eladó családi ház
Eladó családi ház

Mezőfalva

14.5 M Ft
3 szoba
76 m2
Eladó családi ház
Eladó családi ház

Tápiószőlős

3.5 M Ft
1 szoba
75 m2
Eladó családi ház
Eladó családi ház

Vácszentlászló

46 M Ft
41 + 1 szoba
100 m2
Eladó családi ház
Eladó családi ház

Csemő

79.8 M Ft
2 szoba
88 m2
Eladó családi ház
Eladó családi ház

Nemesszentandrás

75 M Ft
4 szoba
164 m2
Eladó családi ház
Eladó családi ház

Balatonkeresztúr

117 M Ft
3 + 2 szoba
154 m2
Eladó családi ház
Eladó családi ház

Nyékládháza, Mátyás király utca

36.9 M Ft
2 szoba
88 m2