Eladó családi ház
Tápiószentmárton

+ 17 kép 1/20
56 000 000 Ft56 M Ft 727 273 Ft/m2
3 szoba
77 m2
építés éve:1965

Részletes adatok

Telekméret: 934 m2
Fűtés: Gázkonvektor
Közmű: Gáz, Villany, Csatorna
Energetikai besorolás: Nem adta meg a hirdető
Zenga Premier

Friss hirdetések, amiket nem találsz meg más ingatlankereső portálon.

Fedezd fel elsőként a Zenga Premier címkés eladó ingatlanokat!

További részletek a zenga.hu-n

Az OTP Bank lakáshitel ajánlataFizetett hirdetés

+36 70 465
Kozmané Zsiros Krisztina
referens

Érdekel az OTP Bank kedvezményes lakáshitel ajánlata? *

* A kérdésre „Igen” válasz bejelölése esetén, az „Üzenet küldése” gombra kattintva kijelentem, hogy az OTP Bank Nyrt. Adatkezelési tájékoztatójának tartalmát megismertem és tudomásul vettem.

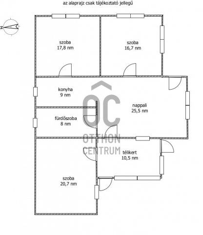
Eladó családi ház leírása

Egy igazán különleges ingatlant kínálunk eladásra Tápiószentmártonban, Pest vármegyében, amely ideális választás lehet középkorú ügyfelek számára, akik családjuknak vagy befektetési célra keresnek kiváló lehetőséget. Ez a használt ház 108 négyzetméteres alapterülettel rendelkezik, és egy 934 négyzetméteres telken helyezkedik el, amely bőséges teret biztosít a pihenésre és a szórakozásra. Az ingatlanban három tágas szoba található, melyek világosak és barátságosak, így ideális környezetet biztosítanak a család számára. A fürdőszoba nagy, kényelems. A ház állapota pedig kiváló, ami lehetővé teszi, hogy az új tulajdonos azonnal birtokba vegye. A fűtés gázkonvektorral történik, amely hatékony és gazdaságos megoldást kínál a téli hónapokban. A garázsban egy autó kényelmesen elfér, így a parkolás sosem jelent problémát. Az ingatlan tehermentes, ami gyors és zökkenőmentes ügyintézést garantál az új tulajdonos számára. A kisállattal költözhető lehetőség pedig különösen vonzóvá teszi az ingatlant azok számára, akik négylábú barátjaikkal együtt szeretnének új otthonra lelni. Tápiószentmárton környéke kiváló ellátottsággal büszkélkedik, közeli Termálfürdővel, és a Kincsem Lovasparkkal. A település kitűnő közlekedési lehetőségeket kínál, hiszen a faluközpont és a főbb közlekedési csomópontok könnyen megközelíthetők autóval és tömegközlekedéssel egyaránt. A csendes, biztonságos környék ideális választás családosok számára, akik értékelik a nyugodt lakókörnyezetet, de nem akarnak lemondani a városi élet kényelméről. Az ingatlan környezete barátságos és családias, a szomszédok segítőkészek és kedvesek, ami hozzájárul a kellemes életkörülményekhez. A település közösségi programjai és rendezvényei lehetőséget biztosítanak a helyi lakosok számára a kapcsolatok ápolására és a közösségi élet aktív részvételére. Amennyiben bármilyen kérdése merülne fel az ingatlannal kapcsolatban, ne habozzon keresni bennünket! Szívesen állunk rendelkezésére, hogy minden információt megosszunk Önnel, és segítsünk az álmai otthonának megtalálásában. Az ingatlan piaca dinamikusan változik, ezért érdemes mihamarabb lépni, hogy ne maradjon le erről a remek lehetőségről!

Hirdetés feltöltve: 2025. 10. 08.

3 szobás családi házak ára Tápiószentmártonon

Ebből az összehasonlításból megtudhatod, hogyan viszonyul a lakás ára a környékbeli családi házak átlagos árához. Ez nem azt jelenti, hogy ennyivel olcsóbb vagy drágább, mint amennyit a lakás ér, hanem hogy ennyivel tér el a környékbeli átlagtól.

Ennek a m² ára
Tápiószentmárton m² ár
727 e Ft
409 e Ft -78%
Ennek az ára
Tápiószentmárton átlagár
56 M Ft m Ft
32.4 m Ft -73%

Az ingatlan elhelyezkedése

Cím: Tápiószentmárton

Eladó családi házak a környékről

Eladó családi ház
Eladó családi ház

Budakeszi, Budakeszi kertváros

140 M Ft
2 szoba
55 m2
Eladó családi ház
Eladó családi ház

Tápiószentmárton, Kiss János út

23.9 M Ft
3 szoba
81 m2
Eladó családi ház
Eladó családi ház

Tápiószentmárton

54.5 M Ft
5 szoba
120 m2
Eladó családi ház
Eladó családi ház

Kerepes

199 M Ft
6 szoba
360 m2
Eladó családi ház
Eladó családi ház

Kerepes

81.99 M Ft
5 szoba
102 m2
Eladó családi ház
Eladó családi ház

Dunavarsány

46.9 M Ft
3 + 2 szoba
130 m2
Eladó családi ház
Eladó családi ház

Budakeszi

130 M Ft
5 szoba
30 m2
Eladó családi ház
Eladó családi ház

Tápiógyörgye

19.9 M Ft
3 szoba
65 m2
Eladó családi ház
Eladó családi ház

Tápiószentmárton

17.9 M Ft
1 szoba
30 m2
Eladó családi ház
Eladó családi ház

Tápiószentmárton, Viola utca

135 M Ft
6 szoba
502 m2
Eladó családi ház
Eladó családi ház

Tahitótfalu

188 M Ft
7 szoba
280 m2
Eladó családi ház
Eladó családi ház

Tápiószentmárton

25.9 M Ft
4 szoba
80 m2
Eladó családi ház
Eladó családi ház

Tápiószentmárton

26.5 M Ft
3 szoba
53 m2
Eladó családi ház
Eladó családi ház

Sződ, Rátóti utca

149.99 M Ft
11 szoba
270 m2
Eladó családi ház
Eladó családi ház

Tápiószentmárton

48 M Ft
5 szoba
180 m2
Eladó családi ház
Eladó családi ház

Érd

164.9 M Ft
5 szoba
192 m2
Eladó családi ház
Eladó családi ház

Budakeszi, Budakeszi kertváros

229 M Ft
10 szoba
450 m2
Eladó családi ház
Eladó családi ház

Pécel, Reményik Sándor utca

296 M Ft
6 szoba
396 m2
Eladó családi ház
Eladó családi ház

Tápiószentmárton

45 M Ft
3 szoba
92 m2
Eladó családi ház
Eladó családi ház

Tápiószentmárton

6.5 M Ft
1 szoba
35 m2
Eladó családi ház
Eladó családi ház

Gyál, Gyál út

169.9 M Ft
2 szoba
90 m2
Eladó családi ház
Eladó családi ház

Tápiószentmárton

82.9 M Ft
5 szoba
145 m2
Eladó családi ház
Eladó családi ház

Tápiószentmárton

16.5 M Ft
3 szoba
50 m2
Eladó családi ház
Eladó családi ház

Tápiószentmárton

7.9 M Ft
2 + 1 szoba
86 m2

Falusi CSOK ingatlanok

Eladó családi ház
Eladó családi ház

Homokmégy

15.9 M Ft
2 + 1 szoba
78 m2
Eladó családi ház
Eladó családi ház

Szigetbecse

99 M Ft
3 szoba
86 m2
Eladó családi ház
Eladó családi ház

Szőlősgyörök, Arany János utca

89.9 M Ft
3 szoba
130 m2
Eladó családi ház
Eladó családi ház

Sajópálfala

35 M Ft
3 szoba
83 m2
Eladó családi ház
Eladó családi ház

Pilisszentkereszt

139 M Ft
5 szoba
220 m2
Eladó családi ház
Eladó családi ház

Nagybaracska, Mohácsi utca

18 M Ft
4 szoba
140 m2
Eladó családi ház
Eladó családi ház

Magyarpolány

53 M Ft
2 szoba
71 m2
Eladó családi ház
Eladó családi ház

Vásárosdombó

14.99 M Ft
2 szoba
69 m2