Eladó családi ház
Táborfalva

Figyelem!

Ez az ingatlan a 2019.07.01-től induló falusi CSOK által támogatott településen található

+ 16 kép 1/19
65 000 000 Ft65 M Ft 541 667 Ft/m2
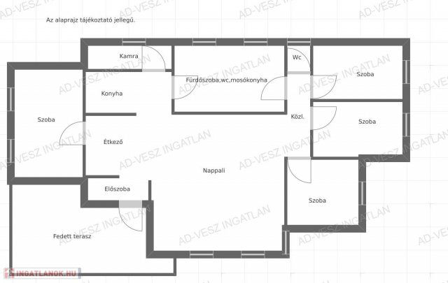
2 + 3 szoba
120 m2
építés éve:2007

Részletes adatok

Állapot: Újszerű
Telekméret: 1041 m2
Fűtés: Gázkazán
Parkolás: Kocsibeálló
Közmű: Víz, Gáz, Villany, Csatorna
Energetikai besorolás: Nem adta meg a hirdető

Az OTP Bank lakáshitel ajánlataFizetett hirdetés

+36 30 221
Bocskainé Gudmon Krisztina
AD-VESZ INGATLAN

Érdekel az OTP Bank kedvezményes lakáshitel ajánlata? *

* A kérdésre „Igen” válasz bejelölése esetén, az „Üzenet küldése” gombra kattintva kijelentem, hogy az OTP Bank Nyrt. Adatkezelési tájékoztatójának tartalmát megismertem és tudomásul vettem.

Eladó családi ház leírása

Táborfalván kínálunk eladásra egy nagyon jó állapotú, önálló családi házat.

A 120m2-es ingatlan, 1041m2-es összközműves telken helyezkedik el, csendes környéken.

A ház nagysága, és szobaszáma lehetővé teszi akár nagy család részére is a kényelmes együttélést.

Kialakításra került az ingatlanban 4 hálószoba, amerikai konyhás nappali, kamra, előszoba, wc, fürdőszoba, közlekedő, fedett terasz.

A ház részben alápincézett, beton alapra, tégla falazattal ,cserép fedéssel, fa födémmel épült 2007-ben.

Szigetelt, a központi fűtés gáz cirkóról, és vegyes tüzelésű kazánról egyaránt üzemeltethető, de klíma, és kandalló is rendelkezésre áll.

Az összkomfortos, tehermentes ingatlan hitelezhető.

Ha Ön egy kényelmes, tágas, világos, jó állapotú otthont keres csendes környéken, akkor hívjon, megmutatom ezt a remek házat!

Kizárólag irodánk kínálatában megtalálható.

Bocskainé Krisztina

+36-30/221-3336

Hirdetés feltöltve: 2025. 10. 17.

Az ingatlan elhelyezkedése

Cím: Táborfalva

Eladó családi házak a környékről

Eladó családi ház
Eladó családi ház

Táborfalva

15 M Ft
0 + 2 szoba
29 m2
Eladó családi ház
Eladó családi ház

Táborfalva

89 M Ft
6 szoba
295 m2
Eladó családi ház
Eladó családi ház

Dunavarsány

46.9 M Ft
3 + 2 szoba
130 m2
Eladó családi ház
Eladó családi ház

Táborfalva

29.5 M Ft
3 szoba
99 m2
Eladó családi ház
Eladó családi ház

Dunavarsány

69.9 M Ft
3 + 1 szoba
140 m2
Eladó családi ház
Eladó családi ház

Táborfalva

119.723 M Ft
5 szoba
105 m2
Eladó családi ház
Eladó családi ház

Dunakeszi

250 M Ft
4 szoba
180 m2
Eladó családi ház
Eladó családi ház

Táborfalva

15 M Ft
0 + 2 szoba
29 m2
Eladó családi ház
Eladó családi ház

Táborfalva

29.5 M Ft
4 szoba
99 m2
Eladó családi ház
Eladó családi ház

Táborfalva

36.5 M Ft
2 + 1 szoba
74 m2
Eladó családi ház
Eladó családi ház

Kerepes

81.99 M Ft
5 szoba
102 m2
Eladó családi ház
Eladó családi ház

Táborfalva

74.9 M Ft
2 + 1 szoba
81 m2
Eladó családi ház
Eladó családi ház

Budakeszi, Budakeszi kertváros

140 M Ft
2 szoba
55 m2
Eladó családi ház
Eladó családi ház

Táborfalva

29.5 M Ft
3 szoba
99 m2
Eladó családi ház
Eladó családi ház

Táborfalva

29.5 M Ft
3 szoba
99 m2
Eladó családi ház
Eladó családi ház

Kerepes

199 M Ft
6 szoba
360 m2
Eladó családi ház
Eladó családi ház

Táborfalva

45.9 M Ft
2 + 1 szoba
64 m2
Eladó családi ház
Eladó családi ház

Táborfalva

89 M Ft
3 + 3 szoba
295 m2
Eladó családi ház
Eladó családi ház

Tápiószele

37.9 M Ft
4 szoba
141 m2
Eladó családi ház
Eladó családi ház

Szigetszentmiklós, Városközpont, Tököli út közeli utca

120 M Ft
7 szoba
525 m2
Eladó családi ház
Eladó családi ház

Táborfalva

69 M Ft
1 + 3 szoba
85 m2
Eladó családi ház
Eladó családi ház

Táborfalva

117 M Ft
5 szoba
145 m2
Eladó családi ház
Eladó családi ház

Budakeszi, Budakeszi kertváros

229 M Ft
10 szoba
450 m2
Eladó családi ház
Eladó családi ház

Budaörs, Bányász utca

385 M Ft
6 szoba
300 m2

Falusi CSOK ingatlanok

Eladó családi ház
Eladó családi ház

Makád

18.5 M Ft
3 szoba
60 m2
Eladó családi ház
Eladó családi ház

Bakonycsernye

39 M Ft
3 szoba
350 m2
Eladó családi ház
Eladó családi ház

Tök

96.2 M Ft
4 szoba
104 m2
Eladó családi ház
Eladó családi ház

Szilvágy

49.99 M Ft
3 szoba
90 m2
Eladó családi ház
Eladó családi ház

Bag

39.5 M Ft
3 szoba
80 m2
Eladó családi ház
Eladó családi ház

Csemő

54.9 M Ft
4 szoba
108 m2
Eladó családi ház
Eladó családi ház

Kétegyháza

34.9 M Ft
3 szoba
125 m2
Eladó családi ház
Eladó családi ház

Jászkarajenő

25 M Ft
4 szoba
136 m2

Falusi CSOK ingatlanok

Eladó családi ház
Eladó családi ház

Hernádnémeti

19.9 M Ft
2 szoba
62 m2
Eladó családi ház
Eladó családi ház

Simontornya

23 M Ft
3 szoba
60 m2
Eladó családi ház
Eladó családi ház

Kislőd

44.9 M Ft
3 szoba
115 m2
Eladó családi ház
Eladó családi ház

Zsámbok, Szent László utca

38 M Ft
2 szoba
75 m2
Eladó családi ház
Eladó családi ház

Rábaszentmihály

65 M Ft
3 szoba
156 m2
Eladó családi ház
Eladó családi ház

Fertőd

189.9 M Ft
4 szoba
175 m2
Eladó családi ház
Eladó családi ház

Porva

74.6 M Ft
3 szoba
115 m2
Eladó családi ház
Eladó családi ház

Szigetújfalu

36 M Ft
2 szoba
58 m2