Astora Olive Club House

Eladó családi ház
Szűr

Figyelem!

Ez az ingatlan a 2019.07.01-től induló falusi CSOK által támogatott településen található

+ 17 kép 1/20
8 000 000 Ft8 M Ft 117 647 Ft/m2
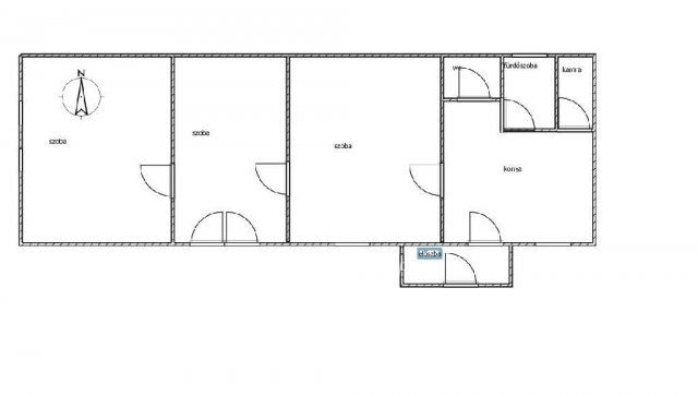
3 szoba
68 m²
építés éve:1970

Részletes adatok

Állapot: Átlagos
Telekméret: 353 m2
Fűtés: Gázkonvektor
Komfort: Komfortos
Energetikai besorolás: Nem adta meg a hirdető

Az OTP Bank lakáshitel ajánlataFizetett hirdetés

Hitelösszeg 10 millió Ft
Futamidő 20 év
Induló törlesztőrészlet 67 508 Ft
Törlesztőrészlet a 13. hónaptól 86 071 Ft
THM 8,6 %

A tájékoztatás nem teljes körű és nem minősül ajánlattételnek. Az OTP Évnyerő Lakáshitelei 1 éves türelmi idős kölcsönök, amellyel az első 12 hónapban alacsonyabb a havi törlesztőrészlet. A tőke törlesztését a 13. hónaptól kell megkezdeni.

    Részletes kalkuláció
    +36 20 938
    Vincze László György
    OTPIP - Pécs, Rákóczi út 19.

    Érdekel az OTP Bank kedvezményes lakáshitel ajánlata? *

    * A kérdésre „Igen” válasz bejelölése esetén, az „Üzenet küldése” gombra kattintva kijelentem, hogy az OTP Bank Nyrt. Adatkezelési tájékoztatójának tartalmát megismertem és tudomásul vettem.

    Eladó családi ház leírása

    Eladó családi ház Szűrön! Baranya megye egyik bájos, dombos falujában, Szűrön kínálok eladásra egy 68 nm-es, háromszobás családi házat, amely 353 nm-es telken fekszik. Ez az ingatlan remek lehetőség mindazoknak, akik a nyugodt vidéki életre vágynak, de nem szeretnének lemondani a jó infrastruktúráról sem. Főbb jellemzők. Vegyes falazatú, cserépfedésű, gázkonvektor és kályha fűtéssel rendelkezik. Elrendezése, három tágas egymásból nyíló szoba, konyha, fürdőszoba és külön wc. A telekhez garázs és külön tároló is tartozik. Az új műanyag ablakok már meg vannak vásárolva, ami benne van a vételárban. Igy a felújítás költsége ezzel csökken. A 353 nm-es telek elegendő helyet biztosít kertnek, pihenő saroknak, játszótérnek, akárcsak hobbiudvarnak. Környezet és infrastruktúrája, Szűr Baranya megyében, a Geresdi-dombság lankáin fekszik, gyönyörű vidéki környezetben. Az M60-as autópálya könnyen elérhető Véméndnél vagy Mohácsnál, így Pécs és más nagyvárosok is jól megközelíthetők. A faluban buszközlekedés rendszeresen működik. Szűr könnyen elérhető Mohácsról és Pécsváradról is. Szűr községében működik falugondnoki rendszer, amely segíti a helyi közösséget. Iskola és óvoda Himesházán található, gyerekjárattal szervezetten. Elérhető minden közmű a csatornázás is megoldott, és van szélessávú internet, így a modern igények sem maradnak kielégítetlenek. Az ingatlan ideális választás lehet családoknak, idősebbeknek vagy azoknak, akik vidéki, kényelmes életre vágynak. A telek viszonylag visszafogott mérete miatt a gondozása nem jelent jelentős terhet. . A ház falusi CSOK-ra alkalmas. További kérdéseivel és személyes megtekintésért keressen bizalommal! M317454

    8000000 Ft

    Referencia szám: M317454

    Hirdetés feltöltve: 2025. 12. 02. Utoljára módosítva: 2026. 05. 22.

    Az ingatlan elhelyezkedése

    Cím: Szűr

    Eladó ingatlanok a környékről

    Komló, Köztársaság utca
    Eladó téglalakás

    Komló

    21.9 M Ft
    2 szoba
    50 m²
    Szűr, Petőfi Sándor utca
    Eladó családi ház

    Szűr

    13 M Ft
    3 szoba
    100 m²
    Szűr
    Eladó családi ház

    Szűr

    13 M Ft
    3 szoba
    100 m²
    Pécs
    Eladó panellakás

    Pécs

    52.9 M Ft
    2 szoba
    50 m²
    Mohács
    Eladó családi ház

    Mohács

    9.3 M Ft
    1 szoba
    30 m²
    Magyartelek, Újsor utca
    Eladó családi ház

    Magyartelek

    16.5 M Ft
    3 szoba
    75 m²
    Görcsöny, Hársfa utca
    Eladó családi ház

    Görcsöny

    249 M Ft
    5 szoba
    270 m²
    Pécs, Meszesi lakóövezet, Pacca dűlő
    Eladó családi ház

    Pécs

    16 M Ft
    1 szoba
    28 m²
    Pécs
    Eladó téglalakás

    Pécs

    59 M Ft
    3 szoba
    78 m²
    Pécs
    Eladó téglalakás

    Pécs

    64.999 M Ft
    2 szoba
    58 m²
    Lánycsók
    Eladó családi ház

    Lánycsók

    75 M Ft
    7 szoba
    247 m²
    Szűr
    Eladó családi ház

    Szűr

    32 M Ft
    4 szoba
    94 m²
    Mohács
    Eladó családi ház

    Mohács

    13.5 M Ft
    1 szoba
    50 m²
    Mohács
    Eladó családi ház

    Mohács

    25 M Ft
    4 szoba
    120 m²
    Pécs, Megyer, Diána tér
    Eladó panellakás

    Pécs

    51.9 M Ft
    2 + 1 szoba
    48 m²
    Szűr
    Eladó családi ház

    Szűr

    95.665 M Ft
    3 szoba
    140 m²
    Siklós
    Eladó családi ház

    Siklós

    270 M Ft
    8 szoba
    600 m²
    Pécs, Szigeti külváros, Munkácsy Mihály utca
    Eladó téglalakás

    Pécs

    97 M Ft
    5 szoba
    129 m²
    Pécs
    Eladó panellakás

    Pécs

    32.5 M Ft
    2 szoba
    39 m²
    Pécs
    Eladó téglalakás

    Pécs

    57.643 M Ft
    2 szoba
    42 m²
    Versend
    Eladó családi ház

    Versend

    75 M Ft
    3 szoba
    123 m²
    Bükkösd, Kossuth Lajos utca
    Eladó családi ház

    Bükkösd

    16 M Ft
    1 szoba
    210 m²
    Harkány, Nefelejcs utca
    Eladó nyaraló

    Harkány

    34.9 M Ft
    4 szoba
    60 m²
    Pécs, Szigeti külváros, Erdész köz
    Eladó családi ház

    Pécs

    62.9 M Ft
    3 szoba
    56 m²

    Falusi CSOK ingatlanok

    Balinka, Petőfi S. utca 27
    Eladó családi ház

    Balinka

    12.65 M Ft
    1 + 2 szoba
    79 m²
    Újlengyel
    Eladó családi ház

    Újlengyel

    77.9 M Ft
    4 szoba
    0 m²
    Segesd
    Eladó családi ház

    Segesd

    79.9 M Ft
    8 szoba
    500 m²
    Tihany
    Eladó családi ház

    Tihany

    590 M Ft
    8 szoba
    340 m²
    Kunadacs
    Eladó családi ház

    Kunadacs

    80 M Ft
    4 szoba
    148 m²
    Csurgó
    Eladó családi ház

    Csurgó

    19.9 M Ft
    4 szoba
    136 m²
    Fonyód
    Eladó téglalakás

    Fonyód

    175 M Ft
    3 szoba
    79 m²
    Zsámbok
    Eladó családi ház

    Zsámbok

    54.85 M Ft
    3 szoba
    120 m²

    Falusi CSOK ingatlanok

    Tápióság
    Eladó családi ház

    Tápióság

    57 M Ft
    4 szoba
    94 m²
    Törtel
    Eladó családi ház

    Törtel

    31 M Ft
    3 szoba
    66 m²
    Balatonszemes
    Eladó téglalakás

    Balatonszemes

    125.2 M Ft
    2 szoba
    50 m²
    Tápiógyörgye
    Eladó családi ház

    Tápiógyörgye

    22.5 M Ft
    3 + 1 szoba
    83 m²
    Balatonszemes
    Eladó téglalakás

    Balatonszemes

    119.9 M Ft
    2 szoba
    0 m²
    Dunapataj, Árpád utca
    Eladó családi ház

    Dunapataj

    43.7 M Ft
    3 szoba
    90 m²
    Mesteri
    Eladó családi ház

    Mesteri

    29.7 M Ft
    4 szoba
    140 m²
    Tihany
    Eladó családi ház

    Tihany

    385 M Ft
    5 szoba
    200 m²