Kedves Felhasználónk! Rendszerfrissítés miatt az oldalunk 2026. február 9-én 12 órától várhatóan 20 óráig nem lesz elérhető. Köszönjük megértésed!
Aerogate Homes

Eladó családi ház
Szilvásvárad

Figyelem!

Ez az ingatlan a 2019.07.01-től induló falusi CSOK által támogatott településen található

+ 17 kép 1/20
31 900 000 Ft31.9 M Ft 389 024 Ft/m2
2 szoba
82 m2
építés éve:1965

Részletes adatok

Állapot: Átlagos
Telekméret: 602 m2
Fűtés: Gázkonvektor
Parkolás: Garázs
Energetikai besorolás: Nem adta meg a hirdető

Az OTP Bank lakáshitel ajánlataFizetett hirdetés

+36 70 344
Angyal Tamás József
referens

Érdekel az OTP Bank kedvezményes lakáshitel ajánlata? *

* A kérdésre „Igen” válasz bejelölése esetén, az „Üzenet küldése” gombra kattintva kijelentem, hogy az OTP Bank Nyrt. Adatkezelési tájékoztatójának tartalmát megismertem és tudomásul vettem.

Eladó családi ház leírása

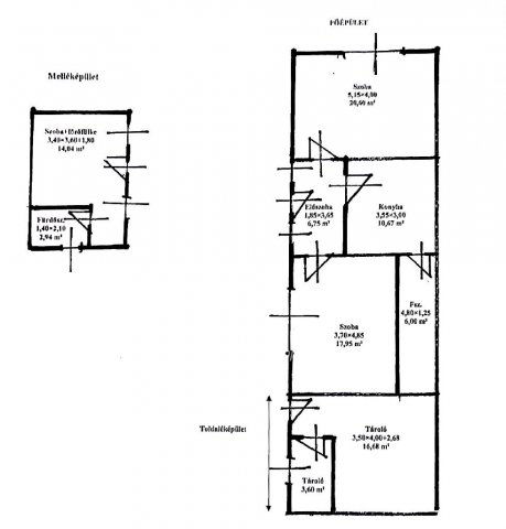
Szilvásvárad egyik csendes, rendezett utcájában eladó egy hangulatos, földszintes családi ház 600 m2-es, gondozott telken. A 82 m2-es ingatlan frissen festett, tiszta és költözhető állapotban várja új tulajdonosát.

A házban két szoba, konyha, fürdőszoba és egy tágas, világos előtér található. Déli tájolása miatt a helyiségek napfényesek és barátságosak. A konyha és az egyik szoba között működő cserépkályha teremti meg az otthon melegét, emellett gázkonvektoros fűtés is biztosított. A tető cserépfedésű, jó állapotú, a nyílászárók korszerű, műanyag kivitelűek. A fürdőszoba alatt egy rejtett pince is található, amely extra lehetőségeket kínál.

Az udvaron fedett pavilon és alatta száraz pince kapott helyet. A kertben egy hivatalosan is nyilvántartott melléképület található, amelyet korábban vendégházként használtak - egy szoba, konyha és fürdőszoba tartozik hozzá, így akár külön lakrésznek is ideális. Az udvaron továbbá egy utcáról megközelíthető, felújítandó, de használható garázs is van, valamint egy hagyományos kemence, ami igazi vidéki hangulatot varázsol.

A környék csendes, igényes és barátságos, a szomszédok rendezettek. Az ingatlan tehermentes, azonnal költözhető, és versenyképes áron kínálja a lehetőséget, hogy Szilvásvárad egyik legszebb részén találja meg új otthonát.

Amennyiben felkeltette érdeklődését az ingatlan, jöjjön el és győződjön meg személyesen is a leírtakról! Ingatlanirodánk ügyvédi háttérrel, CSOK, babaváró hitel, valamint kamatkedvezményes hitel ügyintézésével támogatja ügyfelei ingatlanvásárlását! Kérem érdeklődéskor hivatkozzon az M317150 számra.

Hirdetés feltöltve: 2025. 11. 14. Utoljára módosítva: 2026. 01. 13.

2 szobás családi házak ára Szilvásváradon

Ebből az összehasonlításból megtudhatod, hogyan viszonyul a lakás ára a környékbeli családi házak átlagos árához. Ez nem azt jelenti, hogy ennyivel olcsóbb vagy drágább, mint amennyit a lakás ér, hanem hogy ennyivel tér el a környékbeli átlagtól.

Ennek a m² ára
Szilvásvárad m² ár
389 e Ft
479 e Ft 19%
Ennek az ára
Szilvásvárad átlagár
31.9 M Ft m Ft
71.2 m Ft 55%

Az ingatlan elhelyezkedése

Cím: Szilvásvárad

Eladó ingatlanok a környékről

Eladó családi ház
Eladó családi ház

Mátraszentimre

250 M Ft
8 szoba
300 m2
Eladó családi ház
Eladó családi ház

Szilvásvárad

50 M Ft
5 szoba
146 m2
Eladó családi ház
Eladó családi ház

Bükkszék

69 M Ft
5 szoba
240 m2
Eladó családi ház
Eladó családi ház

Andornaktálya

42 M Ft
4 szoba
116 m2
Eladó családi ház
Eladó családi ház

Szilvásvárad

31.9 M Ft
2 szoba
82 m2
Eladó családi ház
Eladó családi ház

Szilvásvárad

120 M Ft
8 szoba
310 m2
Eladó családi ház
Eladó családi ház

Szilvásvárad

34.5 M Ft
2 szoba
85 m2
Eladó családi ház
Eladó családi ház

Szilvásvárad

224.9 M Ft
6 szoba
284 m2
Eladó családi ház
Eladó családi ház

Szilvásvárad

104.9 M Ft
5 szoba
340 m2
Eladó családi ház
Eladó családi ház

Szilvásvárad

50 M Ft
5 szoba
217 m2
Eladó családi ház
Eladó családi ház

Eger

72.9 M Ft
2 + 2 szoba
80 m2
Eladó családi ház
Eladó családi ház

Bükkszék

44.9 M Ft
3 + 2 szoba
114 m2
Eladó családi ház
Eladó családi ház

Szilvásvárad

34.5 M Ft
2 szoba
85 m2
Eladó családi ház
Eladó családi ház

Bükkszék

78.9 M Ft
2 + 1 szoba
160 m2
Eladó családi ház
Eladó családi ház

Egerbakta

36.5 M Ft
5 szoba
120 m2
Eladó családi ház
Eladó családi ház

Szilvásvárad

34.5 M Ft
2 szoba
85 m2
Eladó családi ház
Eladó családi ház

Demjén

108 M Ft
5 szoba
200 m2
Eladó családi ház
Eladó családi ház

Ostoros

94.5 M Ft
3 szoba
96 m2
Eladó családi ház
Eladó családi ház

Andornaktálya

28.5 M Ft
2 szoba
60 m2
Eladó családi ház
Eladó családi ház

Szilvásvárad

50 M Ft
3 szoba
69 m2
Eladó családi ház
Eladó családi ház

Eger, Felsőváros

159 M Ft
5 szoba
205 m2
Eladó téglalakás
Eladó téglalakás

Hatvan

35.9 M Ft
1 szoba
31 m2
Eladó családi ház
Eladó családi ház

Szilvásvárad

224.9 M Ft
6 szoba
284 m2
Eladó családi ház
Eladó családi ház

Szilvásvárad

37 M Ft
2 szoba
85 m2

Falusi CSOK ingatlanok

Eladó családi ház
Eladó családi ház

Kál

31 M Ft
4 szoba
307 m2
Eladó családi ház
Eladó családi ház

Iváncsa

33.9 M Ft
2 + 1 szoba
72 m2
Eladó családi ház
Eladó családi ház

Pétfürdő

74.9 M Ft
3 szoba
89 m2
Eladó családi ház
Eladó családi ház

Tiszaroff

13.9 M Ft
2 szoba
81 m2
Eladó családi ház
Eladó családi ház

Szederkény

107.9 M Ft
6 szoba
224 m2
Eladó családi ház
Eladó családi ház

Bozsok

290 M Ft
6 szoba
370 m2
Eladó családi ház
Eladó családi ház

Bugac

170 M Ft
187 m2
Eladó családi ház
Eladó családi ház

Kemeneshőgyész

8 M Ft
2 szoba
60 m2

Falusi CSOK ingatlanok

Eladó családi ház
Eladó családi ház

Tabdi

95 M Ft
45 szoba
1490 m2
Eladó családi ház
Eladó családi ház

Tápiógyörgye

44.9 M Ft
3 + 1 szoba
120 m2
Eladó téglalakás
Eladó téglalakás

Balatonszemes

119.9 M Ft
2 szoba
81 m2
Eladó családi ház
Eladó családi ház

Újhartyán

89.9 M Ft
4 szoba
99 m2
Eladó családi ház
Eladó családi ház

Bag, Árpád utca 15

29.62 M Ft
1 + 1 szoba
155 m2
Eladó családi ház
Eladó családi ház

Badacsonytördemic

179.07 M Ft
4 szoba
160 m2
Eladó családi ház
Eladó családi ház

Porva

74.6 M Ft
3 szoba
115 m2
Eladó családi ház
Eladó családi ház

Versend, Jókai Mór utca 2

6.66 M Ft
1 + 1 szoba
109 m2