Oasis Residence

Eladó családi ház
Szigetszentmárton

+ 17 kép 1/20
148 500 000 Ft148.5 M Ft 475 962 Ft/m2
3 szoba
312 m2
építés éve:1993

Részletes adatok

Telekméret: 1218 m2
Fűtés: Héra
Parkolás: Garázs
Energetikai besorolás: Nem adta meg a hirdető

Az OTP Bank lakáshitel ajánlataFizetett hirdetés

+36 70 269
Göbölyös Judit
referens

Érdekel az OTP Bank kedvezményes lakáshitel ajánlata? *

* A kérdésre „Igen” válasz bejelölése esetén, az „Üzenet küldése” gombra kattintva kijelentem, hogy az OTP Bank Nyrt. Adatkezelési tájékoztatójának tartalmát megismertem és tudomásul vettem.

Eladó családi ház leírása

Eladó önálló családi ház vendéglátóegységgel!

Szigetszentmártonban kínálunk megvételre egy nettó 312 nm alapterületű önálló családi házat 1218 nm-es telken.

Az ingatlan jelenleg ételbárként üzemel, tulajdoni lap szerint : kivett lakóház, udvar, tároló, cukrászműhely, cukrászda besorolású és kialakítású.
Ebből adódóan kíváló lehet más tipusú vállalkozás üzemeltetésére is, továbbá a tetőtéri lakás kiadása is bevételt generálhat.

Azonban átalakítással tágas, több generáció együttélésére alkalmas családi ház lehet.

Az ingatlan 1993-ban Porotherm téglából épült, 5 cm-es külső szigeteléssel.
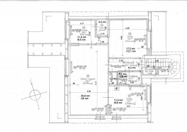
A földszinten melynek hasznos alapterülete: 106,6 nm + 40 nm terasz, és a pinceszinten 103,2 nm működik az ételbár, a tetőtérben egy 82,3 nm alapterületű lakás van kialakítva.

A lakás alapterülete 82,3 nm.
Beosztása-
- előszoba,
- nappali+ étkező,
- konyha,
- kamra,
- hálószoba,
- hálószoba,
- fürdőszoba,
- WC.
A lakásrészben 2021-ben történt felújítás:
- új burkolatok, fürdőszoba, konyhabútor új ajtókat kapott, új főzőlap,
sütő, elszívó,
- új klíma, új villanybojler,
- az eredeti fa, dupla thermo üvegezésű nyílászárókat átfestették.
A lakásnak külön mérőórái vannak.

2021-ben a termelő részben végzett felújítások:
- új műanyag nyílászárók, részleges padlófelújítás,
- hűtőkamra ajtaját cserélték, új aggregátor,

A fűtést és melegvizet gázkazán biztosítja radiátoros hőleadással.
- ipari gázóra és ipari áram van.
- az ingatlanban 2 db hűtő-fűtő klíma működik.

A telken található még egy 60 nm-es épület, 2 autónak garázs+ tároló, tetőszerkezetét 2020-ban felújították.

Az udvar térkövezett, több autónak beállási lehetőséget biztosítva.

Az ingatlannak két utcáról van bejárata.

Amivel segítjük az Ön ingatlanvásárlását:
- ingyenes hitelügyintézés,
- jogi háttér,
- földhivatali ügyintézés,
- energetikai tanúsítvány,
- a vevő számára az ingatlanközvetítés ingyenes.

Irodánk 30 éves szakmai tapasztalattal áll ügyfelei rendelkezésére!

Várom szíves megkeresését! ...TOVÁBBI, TÖBBEZRES INGATLAN KÍNÁLAT: www.gdn-ingatlan.hu - GDN azonosító: 389752

Hirdetés feltöltve: 2025. 11. 18. Utoljára módosítva: 2025. 11. 18.

3 szobás családi házak ára Szigetszentmártonban

Ebből az összehasonlításból megtudhatod, hogyan viszonyul a lakás ára a környékbeli családi házak átlagos árához. Ez nem azt jelenti, hogy ennyivel olcsóbb vagy drágább, mint amennyit a lakás ér, hanem hogy ennyivel tér el a környékbeli átlagtól.

Ennek a m² ára
Szigetszentmárton m² ár
476 e Ft
179 e Ft -165%
Ennek az ára
Szigetszentmárton átlagár
148.5 M Ft m Ft
16.4 m Ft -806%

Az ingatlan elhelyezkedése

Cím: Szigetszentmárton

Eladó családi házak a környékről

Eladó családi ház
Eladó családi ház

Szigetszentmárton

98.2 M Ft
4 + 2 szoba
170 m2
Eladó családi ház
Eladó családi ház

Remeteszőlős

399.9 M Ft
5 + 2 szoba
260 m2
Eladó családi ház
Eladó családi ház

Budakeszi

130 M Ft
5 szoba
30 m2
Eladó családi ház
Eladó családi ház

Tápiószele

37.9 M Ft
4 szoba
141 m2
Eladó családi ház
Eladó családi ház

Szigetszentmárton

159 M Ft
5 szoba
120 m2
Eladó családi ház
Eladó családi ház

Kerepes

199 M Ft
6 szoba
360 m2
Eladó családi ház
Eladó családi ház

Szigetszentmárton

98.2 M Ft
4 + 2 szoba
170 m2
Eladó családi ház
Eladó családi ház

Budaörs, Bányász utca

385 M Ft
6 szoba
300 m2
Eladó családi ház
Eladó családi ház

Szigetszentmárton

98.2 M Ft
4 + 2 szoba
170 m2
Eladó családi ház
Eladó családi ház

Szigetszentmárton

98.2 M Ft
4 + 2 szoba
170 m2
Eladó családi ház
Eladó családi ház

Szigetszentmárton

98.2 M Ft
4 + 2 szoba
170 m2
Eladó családi ház
Eladó családi ház

Gyál, Gyál út

169.9 M Ft
2 szoba
90 m2
Eladó családi ház
Eladó családi ház

Szigetszentmárton

98.2 M Ft
4 + 2 szoba
170 m2
Eladó családi ház
Eladó családi ház

Szigetszentmárton

88 M Ft
3 szoba
140 m2
Eladó családi ház
Eladó családi ház

Szigetszentmárton

114.5 M Ft
3 szoba
110 m2
Eladó családi ház
Eladó családi ház

Tápiógyörgye

19.9 M Ft
3 szoba
65 m2
Eladó családi ház
Eladó családi ház

Szigetszentmárton

84.9 M Ft
6 szoba
280 m2
Eladó családi ház
Eladó családi ház

Szigetszentmárton

64.9 M Ft
2 szoba
90 m2
Eladó családi ház
Eladó családi ház

Szigetszentmárton

84.9 M Ft
6 szoba
280 m2
Eladó családi ház
Eladó családi ház

Pécel, Reményik Sándor utca

296 M Ft
6 szoba
396 m2
Eladó családi ház
Eladó családi ház

Dunavarsány

46.9 M Ft
3 + 2 szoba
130 m2
Eladó családi ház
Eladó családi ház

Tápiószentmárton

7.9 M Ft
2 + 1 szoba
86 m2
Eladó családi ház
Eladó családi ház

Szigetszentmárton

65.9 M Ft
4 szoba
82 m2
Eladó családi ház
Eladó családi ház

Budakeszi, Makkosmária

100 M Ft
1 szoba
10 m2

Falusi CSOK ingatlanok

Eladó családi ház
Eladó családi ház

Újkígyós

19.99 M Ft
2 + 1 szoba
72 m2
Eladó családi ház
Eladó családi ház

Pápadereske

28 M Ft
2 szoba
78 m2
Eladó családi ház
Eladó családi ház

Magyarpolány

90 M Ft
2 szoba
70 m2
Eladó családi ház
Eladó családi ház

Adásztevel

8.9 M Ft
2 szoba
63 m2
Eladó családi ház
Eladó családi ház

Tésenfa, Kossuth utca 23/a

5.55 M Ft
1 + 1 szoba
109 m2
Eladó családi ház
Eladó családi ház

Ásványráró

94.9 M Ft
6 szoba
180 m2
Eladó családi ház
Eladó családi ház

Lakhegy

67.9 M Ft
4 szoba
115 m2
Eladó családi ház
Eladó családi ház

Háromfa, Kossuth

22.4 M Ft
66 m2