NapForrás 20 - Buda

Eladó családi ház
Szerencs

+ 17 kép 1/20
44 900 000 Ft44.9 M Ft 238 830 Ft/m2
5 szoba
188 m2
építés éve:1975

Részletes adatok

Állapot: Átlagos
Telekméret: 782 m2
Fűtés: Egyéb
Energetikai besorolás: Nem adta meg a hirdető

Az OTP Bank lakáshitel ajánlataFizetett hirdetés

+36 70 907
Klubert Gergő
OTP Ingatlanpont Miskolc Szemere

Érdekel az OTP Bank kedvezményes lakáshitel ajánlata? *

* A kérdésre „Igen” válasz bejelölése esetén, az „Üzenet küldése” gombra kattintva kijelentem, hogy az OTP Bank Nyrt. Adatkezelési tájékoztatójának tartalmát megismertem és tudomásul vettem.

Eladó családi ház leírása

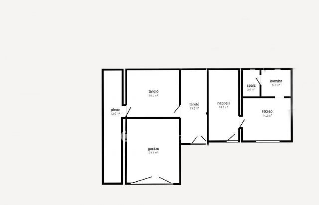
Szerencs Ond felőli részén, eladó egy 188 nm hasznos lakótérrel rendelkező, összesen 5 szobás, dupla komfortos, vegyes falazatú családi ház.
Az épület két lakrésszel rendelkezik, melyek jelenleg külön vannak használva, de könnyedén összenyithatóak.
A víz és a villanyhálózat közös, míg a fűtés külön üzemel.
Mindkét fűtési rendszer új vegyestüzelésű kazánt kapott az el elmúlt pár évben. A hőleadók radiátorok. A melegvízellátásról bojler gondoskodik.
Tetőszerkezete jó állapotú, statikailag kiváló.
Az épület lakható ( most is lakott) , de igény szerint felújítandó.
A szuterén szinten garázsok és tárolók találhatóak, melyek egyikéből nyílik egy kis borospince.
Összesen 3 zárható garázs és egy fedett kocsibeálló áll rendelkezésre.
A 782 nm es telken a főépület mögött további tárolók kaptak helyet. A porta hátsó fele füvesített illetve egy-egy sor csemege szőlő és egy két gyümölcsfa található.
Kiváló lehetőség befektetők, nagycsaládosok részére egyaránt. OTTHON START HITEL-re alkalmas!
OTP hátterünkkel díjmentes-, soron kívüli ügyintézést biztosítunk ügyfeleink számára. (OTTHONSTART HITEL 3%, FALUSI CSOK, CSOKPLUSZ, BABAVÁRÓ, JELZÁLOGHITEL, SZEMÉLYI KÖLCSÖN) Referenciaszám: M311274

Hirdetés feltöltve: 2025. 10. 22. Utoljára módosítva: 2025. 12. 03.

Az ingatlan elhelyezkedése

Cím: Szerencs

Eladó családi házak a környékről

Eladó családi ház
Eladó családi ház

Szerencs

54.99 M Ft
4 + 2 szoba
230 m2
Eladó családi ház
Eladó családi ház

Szerencs

44.9 M Ft
5 szoba
188 m2
Eladó családi ház
Eladó családi ház

Tiszalúc, Alkotmány utca

16.9 M Ft
4 szoba
137 m2
Eladó családi ház
Eladó családi ház

Taktaharkány, Magtár utca

9.9 M Ft
3 szoba
100 m2
Eladó családi ház
Eladó családi ház

Szerencs

44.9 M Ft
5 szoba
188 m2
Eladó családi ház
Eladó családi ház

Tiszalúc

19.9 M Ft
4 szoba
180 m2
Eladó családi ház
Eladó családi ház

Szerencs

43.9 M Ft
4 szoba
180 m2
Eladó családi ház
Eladó családi ház

Szerencs

20.49 M Ft
2 + 1 szoba
90 m2
Eladó családi ház
Eladó családi ház

Szerencs

20.49 M Ft
2 + 1 szoba
90 m2
Eladó családi ház
Eladó családi ház

Gönc, Kossuth Lajos utca

26 M Ft
2 + 1 szoba
130 m2
Eladó családi ház
Eladó családi ház

Szerencs

92 M Ft
5 + 1 szoba
320 m2
Eladó családi ház
Eladó családi ház

Ózd

15 M Ft
7 szoba
225 m2
Eladó családi ház
Eladó családi ház

Tarcal

19.9 M Ft
3 szoba
110 m2
Eladó családi ház
Eladó családi ház

Ózd

14.7 M Ft
3 szoba
95 m2
Eladó családi ház
Eladó családi ház

Edelény

31.5 M Ft
2 szoba
75 m2
Eladó családi ház
Eladó családi ház

Gönc

26 M Ft
3 szoba
130 m2
Eladó családi ház
Eladó családi ház

Miskolc

149 M Ft
4 szoba
463 m2
Eladó családi ház
Eladó családi ház

Szerencs

54.99 M Ft
4 + 2 szoba
230 m2
Eladó családi ház
Eladó családi ház

Taktaszada, Thököly utca

37 M Ft
4 + 1 szoba
190 m2
Eladó családi ház
Eladó családi ház

Nemesbikk, Kossuth utca 3

4.5 M Ft
2 szoba
80 m2
Eladó családi ház
Eladó családi ház

Szerencs

19 M Ft
5 szoba
98 m2
Eladó családi ház
Eladó családi ház

Miskolc

25.9 M Ft
4 szoba
148 m2
Eladó családi ház
Eladó családi ház

Szerencs

33.99 M Ft
4 szoba
150 m2
Eladó családi ház
Eladó családi ház

Putnok

11 M Ft
3 szoba
79 m2

Falusi CSOK ingatlanok

Eladó családi ház
Eladó családi ház

Kenyeri

39.9 M Ft
3 szoba
94 m2
Eladó családi ház
Eladó családi ház

Hernádnémeti

18.9 M Ft
2 szoba
62 m2
Eladó családi ház
Eladó családi ház

Szabadbattyán

30 M Ft
4 szoba
75 m2
Eladó családi ház
Eladó családi ház

Jakabszállás

62.9 M Ft
4 szoba
91 m2
Eladó családi ház
Eladó családi ház

Szabadbattyán

136 M Ft
5 szoba
226 m2
Eladó családi ház
Eladó családi ház

Rábaszentmihály

65 M Ft
3 szoba
156 m2
Eladó családi ház
Eladó családi ház

Ónod, Kossuth út 10

27.499 M Ft
3 + 2 szoba
120 m2
Eladó családi ház
Eladó családi ház

Szigetújfalu

120 M Ft
291 m2