BAM Living

Eladó családi ház
Szerencs

+ 17 kép 1/20
44 900 000 Ft44.9 M Ft 238 830 Ft/m2
5 szoba
188 m2
építés éve:1975

Részletes adatok

Állapot: Átlagos
Telekméret: 782 m2
Fűtés: Egyéb
Energetikai besorolás: Nem adta meg a hirdető

Az OTP Bank lakáshitel ajánlataFizetett hirdetés

+36 30 700
Fodor Zsuzsanna
OTP Ingatlanpont Miskolc Szemere

Érdekel az OTP Bank kedvezményes lakáshitel ajánlata? *

* A kérdésre „Igen” válasz bejelölése esetén, az „Üzenet küldése” gombra kattintva kijelentem, hogy az OTP Bank Nyrt. Adatkezelési tájékoztatójának tartalmát megismertem és tudomásul vettem.

Eladó családi ház leírása

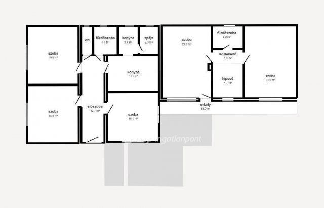
Szerencs Ond felőli részén, eladó egy 188 nm hasznos lakótérrel rendelkező, összesen 5 szobás, dupla komfortos, vegyes falazatú családi ház.
Az épület két lakrésszel rendelkezik, melyek jelenleg külön vannak használva, de könnyedén összenyithatóak.
A víz és a villanyhálózat közös, míg a fűtés külön üzemel.
Mindkét fűtési rendszer új vegyestüzelésű kazánt kapott az el elmúlt pár évben. A hőleadók radiátorok. A melegvízellátásról bojler gondoskodik.
Tetőszerkezete jó állapotú, statikailag kiváló.
Az épület lakható ( most is lakott) , de igény szerint felújítandó.
A szuterén szinten garázsok és tárolók találhatóak, melyek egyikéből nyílik egy kis borospince.
Összesen 3 zárható garázs és egy fedett kocsibeálló áll rendelkezésre.
A 782 nm es telken a főépület mögött további tárolók kaptak helyet. A porta hátsó fele füvesített illetve egy-egy sor csemege szőlő és egy két gyümölcsfa található.
Kiváló lehetőség befektetők, nagycsaládosok részére egyaránt. OTTHON START HITEL-re alkalmas!
OTP hátterünkkel díjmentes-, soron kívüli ügyintézést biztosítunk ügyfeleink számára. (OTTHONSTART HITEL 3%, FALUSI CSOK, CSOKPLUSZ, BABAVÁRÓ, JELZÁLOGHITEL, SZEMÉLYI KÖLCSÖN) Referenciaszám: M311274

Hirdetés feltöltve: 2025. 11. 12. Utoljára módosítva: 2025. 11. 26.

Az ingatlan elhelyezkedése

Cím: Szerencs

Eladó ingatlanok a környékről

Eladó családi ház
Eladó családi ház

Ózd

25.99 M Ft
4 szoba
198 m2
Eladó családi ház
Eladó családi ház

Miskolc

110 M Ft
6 szoba
199 m2
Eladó családi ház
Eladó családi ház

Tiszalúc, Alkotmány utca

16.9 M Ft
4 szoba
137 m2
Eladó téglalakás
Eladó téglalakás

Kazincbarcika, Építők útja

28.5 M Ft
2 szoba
54 m2
Eladó családi ház
Eladó családi ház

Szerencs

20.49 M Ft
2 + 1 szoba
90 m2
Eladó családi ház
Eladó családi ház

Szerencs

59.9 M Ft
4 szoba
110 m2
Eladó családi ház
Eladó családi ház

Miskolc

25.9 M Ft
4 szoba
148 m2
Eladó családi ház
Eladó családi ház

Rudabánya

19.9 M Ft
5 szoba
140 m2
Eladó családi ház
Eladó családi ház

Szerencs

44.9 M Ft
5 szoba
188 m2
Eladó téglalakás
Eladó téglalakás

Miskolc, Diósgyőr, Alsó Papírgyár telep

15.9 M Ft
1 szoba
40 m2
Eladó családi ház
Eladó családi ház

Miskolc

25.9 M Ft
4 szoba
148 m2
Eladó családi ház
Eladó családi ház

Szerencs

43.9 M Ft
4 szoba
180 m2
Eladó családi ház
Eladó családi ház

Komlóska

55.9 M Ft
7 szoba
247 m2
Eladó családi ház
Eladó családi ház

Tarcal

19.9 M Ft
3 szoba
110 m2
Eladó családi ház
Eladó családi ház

Szerencs

44.9 M Ft
5 szoba
188 m2
Eladó családi ház
Eladó családi ház

Ózd, 48-as út

39.9 M Ft
3 + 1 szoba
300 m2
Eladó családi ház
Eladó családi ház

Szerencs

54.99 M Ft
4 + 2 szoba
230 m2
Eladó családi ház
Eladó családi ház

Szerencs

20.49 M Ft
2 + 1 szoba
90 m2
Eladó családi ház
Eladó családi ház

Szerencs

44.9 M Ft
5 szoba
188 m2
Eladó családi ház
Eladó családi ház

Szerencs

20.49 M Ft
2 + 1 szoba
90 m2
Eladó családi ház
Eladó családi ház

Ózd

15 M Ft
7 szoba
225 m2
Eladó téglalakás
Eladó téglalakás

Miskolc

79.9 M Ft
3 + 1 szoba
80 m2
Eladó családi ház
Eladó családi ház

Gönc

20.5 M Ft
2 szoba
80 m2
Eladó családi ház
Eladó családi ház

Nemesbikk, Kossuth utca 3

4.5 M Ft
2 szoba
80 m2

Falusi CSOK ingatlanok

Eladó családi ház
Eladó családi ház

Magyarpolány

69.8 M Ft
7 szoba
298 m2
Eladó családi ház
Eladó családi ház

Balatonfenyves

430 M Ft
4 szoba
274 m2
Eladó családi ház
Eladó családi ház

Baksa

61.99 M Ft
3 szoba
100 m2
Eladó panellakás
Eladó panellakás

Pétfürdő

49.9 M Ft
3 szoba
71 m2
Eladó családi ház
Eladó családi ház

Sellye

54.99 M Ft
4 szoba
99 m2
Eladó családi ház
Eladó családi ház

Szentliszló

29.9 M Ft
3 + 2 szoba
157 m2
Eladó családi ház
Eladó családi ház

Levelek

61 M Ft
4 szoba
102 m2
Eladó családi ház
Eladó családi ház

Kunadacs

114.9 M Ft
4 szoba
174 m2