Kedves Felhasználónk! Rendszerfrissítés miatt az oldalunk 2026. február 9-én 12 órától várhatóan 20 óráig nem lesz elérhető. Köszönjük megértésed!
Seven Pearl

Eladó családi ház
Szentes

+ 17 kép 1/20
34 900 000 Ft34.9 M Ft 283 740 Ft/m2
4 + 1 szoba
123 m2
építés éve:1960

Részletes adatok

Állapot: Felújítandó
Telekméret: 701 m2
Fűtés: Gázkazán
Energetikai besorolás: Nem adta meg a hirdető

Az OTP Bank lakáshitel ajánlataFizetett hirdetés

+36 70 677
Jószai Olívia
referens

Érdekel az OTP Bank kedvezményes lakáshitel ajánlata? *

* A kérdésre „Igen” válasz bejelölése esetén, az „Üzenet küldése” gombra kattintva kijelentem, hogy az OTP Bank Nyrt. Adatkezelési tájékoztatójának tartalmát megismertem és tudomásul vettem.

Eladó családi ház leírása

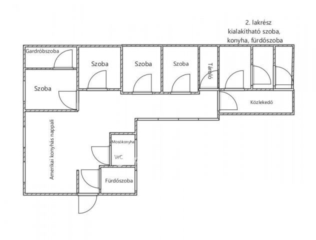
*** Csak az OTP Ingatlanpont kínálatában eladó Szentesen, közel a városközponthoz egy 701 nm-es telken elfekvő 150 nm-es, amerikai konyhás + 4 szobás családi ház, ahol a felújítási munkálatok egy része megtörtént, befejezése az új tulajdonosra vár. Milyen jó, hogy ÖN a saját ízlésére formálhatja! Hatalmas terek, kényelmes méretű helyiségek várják! Új, hőszigetelt műanyag nyílászárók vannak beépítve. A gázkazánnal történő fűtési rendszer kiépítése is megtörtént. A házhoz épített 25 nm-es külön bejáratú lakrészben egy szoba, konyha és fürdőszoba alakítható ki.
FONTOS! Készültségi állapotát tekintve hitelfelvételre nem alkalmas, csak készpénzes vásárlóknak ajánljuk! Amennyiben mégis hitelt szeretne a vevő, úgy csakis extra ingatlanfedezet bevonásával oldható meg! Amennyiben az OTP Ingatlanpont kínálatából választ, számíthat szakmai támogatásunkra a teljes vételi folyamat során az adásvételi szerződés megkötésétől a hitel-ügyintézésen át az ingatlan átadásáig. Ajánlom minden kedves ügyfelem részére az OTP Bank által közvetített Babaváró, CSOK PLUSZ, Otthon Start Hitelprogram vagy egyéb kölcsönök intézését. Az OTP Ingatlanpont kedvezményes pénzügyi konstrukciókkal áll ügyfelei rendelkezésére, és VIP-szolgáltatást nyújt az OTP-hiteltermékek, ügyintézésben. Kedvező hitelajánlatokkal (BABAVÁRÓ hitel, piaci hitel, és szabadfelhasználású hitel) várjuk jelentkezését. Számos konstrukció közül választhatnak. Irodáink Szentes, Petőfi u. 12. a buszmegálló felől és Csongrád, Fő u. 54. szám alatt várja a személyes érdeklődőket. ***VÁLASSZUK KI EGYÜTT AZ ÖNNEK LEGMEGFELELŐBB AJÁNLATOT! BANKI SORBAN ÁLLÁS NÉLKÜL! ***

Hirdetés feltöltve: 2026. 01. 15. Utoljára módosítva: 2026. 02. 05.

5 szobás családi házak ára Szentesen

Ebből az összehasonlításból megtudhatod, hogyan viszonyul a lakás ára a környékbeli családi házak átlagos árához. Ez nem azt jelenti, hogy ennyivel olcsóbb vagy drágább, mint amennyit a lakás ér, hanem hogy ennyivel tér el a környékbeli átlagtól.

Ennek a m² ára
Szentes m² ár
284 e Ft
366 e Ft 23%
Ennek az ára
Szentes átlagár
34.9 M Ft m Ft
68.1 m Ft 49%

Az ingatlan elhelyezkedése

Cím: Szentes

Eladó családi házak a környékről

Eladó családi ház
Eladó családi ház

Szeged

54.89 M Ft
3 szoba
110 m2
Eladó családi ház
Eladó családi ház

Szentes

21 M Ft
3 szoba
65 m2
Eladó családi ház
Eladó családi ház

Szentes, Nagyörvény utca

19 M Ft
2 szoba
52 m2
Eladó családi ház
Eladó családi ház

Szeged

220 M Ft
12 + 2 szoba
760 m2
Eladó családi ház
Eladó családi ház

Röszke

75 M Ft
4 szoba
95 m2
Eladó családi ház
Eladó családi ház

Szeged

195 M Ft
4 szoba
210 m2
Eladó családi ház
Eladó családi ház

Szentes

27 M Ft
3 szoba
140 m2
Eladó családi ház
Eladó családi ház

Szentes

20 M Ft
4 szoba
85 m2
Eladó családi ház
Eladó családi ház

Szeged, Alsóváros, Szabadság tér

89.9 M Ft
3 + 1 szoba
100 m2
Eladó családi ház
Eladó családi ház

Mindszent

49.9 M Ft
8 szoba
280 m2
Eladó családi ház
Eladó családi ház

Hódmezővásárhely, Kishomok, Új-Kishomok

69 M Ft
3 szoba
100 m2
Eladó családi ház
Eladó családi ház

Szentes

69 M Ft
4 szoba
240 m2
Eladó családi ház
Eladó családi ház

Szentes

29.8 M Ft
2 szoba
115 m2
Eladó családi ház
Eladó családi ház

Szentes, Soós utca 16

4.3 M Ft
1 + 1 szoba
51 m2
Eladó családi ház
Eladó családi ház

Szentes

25 M Ft
4 szoba
123 m2
Eladó családi ház
Eladó családi ház

Szentes

43 M Ft
6 szoba
225 m2
Eladó családi ház
Eladó családi ház

Szentes

58 M Ft
4 szoba
147 m2
Eladó családi ház
Eladó családi ház

Szentes

14.9 M Ft
2 szoba
66 m2
Eladó családi ház
Eladó családi ház

Szentes

24 M Ft
4 szoba
115 m2
Eladó családi ház
Eladó családi ház

Szentes

17.8 M Ft
4 szoba
131 m2
Eladó családi ház
Eladó családi ház

Szentes

42 M Ft
3 + 2 szoba
180 m2
Eladó családi ház
Eladó családi ház

Szeged, Újszeged, Radnóti utca

329.9 M Ft
12 + 2 szoba
619 m2
Eladó családi ház
Eladó családi ház

Szentes

29.5 M Ft
4 szoba
128 m2
Eladó családi ház
Eladó családi ház

Szentes

128 M Ft
3 szoba
372 m2

Falusi CSOK ingatlanok

Eladó családi ház
Eladó családi ház

Gyöngyöshalász

59 M Ft
4 + 3 szoba
214 m2
Eladó családi ház
Eladó családi ház

Kenyeri

21.8 M Ft
2 szoba
75 m2
Eladó családi ház
Eladó családi ház

Recsk

40 M Ft
3 + 1 szoba
130 m2
Eladó családi ház
Eladó családi ház

Sellye

48.2 M Ft
4 szoba
99 m2
Eladó családi ház
Eladó családi ház

Csátalja, Táncsics Mihály utca 2

28 M Ft
3 szoba
100 m2
Eladó családi ház
Eladó családi ház

Nyírtura

69.9 M Ft
4 szoba
120 m2
Eladó családi ház
Eladó családi ház

Beremend, 7827 Beremend, Petőfi Sándor utca 10

11.95 M Ft
1 + 1 szoba
124 m2
Eladó családi ház
Eladó családi ház

Csátalja, Dózsa György utca

36 M Ft
3 szoba
110 m2