Eladó családi ház
Szentes

+ 17 kép 1/20
42 990 000 Ft42.99 M Ft 330 692 Ft/m2
3 szoba
130 m2
építés éve:1980

Részletes adatok

Állapot: Átlagos
Telekméret: 472 m2
Fűtés: Gázkazán
Parkolás: Garázs
Energetikai besorolás: Nem adta meg a hirdető
Zenga Premier

Friss hirdetések, amiket nem találsz meg más ingatlankereső portálon.

Fedezd fel elsőként a Zenga Premier címkés eladó ingatlanokat!

További részletek a zenga.hu-n

Az OTP Bank lakáshitel ajánlataFizetett hirdetés

+36 70 429
Majzik Alexandra
referens

Érdekel az OTP Bank kedvezményes lakáshitel ajánlata? *

* A kérdésre „Igen” válasz bejelölése esetén, az „Üzenet küldése” gombra kattintva kijelentem, hogy az OTP Bank Nyrt. Adatkezelési tájékoztatójának tartalmát megismertem és tudomásul vettem.

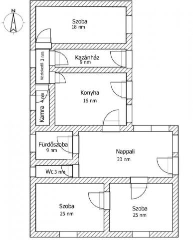
Eladó családi ház leírása

Szentes központjában családi ház eladó! Kizárólag az OTP Ingatlanpont kínálatában! Eladásra kínálunk Szentes szívében egy 130 nm-es családi házat, amely egy 472 nm-es telken helyezkedik el. Az ingatlan az évek során részlegesen felújításon esett át, radiátoros fűtéssel rendelkezik, valamint vegyestüzelésű kazán is biztosítja a meleget. A belső térben 3 kényelmes szoba, egy nagy előszoba (akár nappaliként is használható), konyha, fürdőszoba, külön WC, kamra és kazánház kapott helyet. A melegvizet bojler biztosítja. A telken ipari áram is van. Az udvarban melléképület és dupla garázs is található, a szennyvíz derítőaknával megoldott. A ház központi, jól megközelíthető helyen van, mégis csendes, kellemes környezetben. Minden fontos szolgáltatás, bolt, iskola, óvoda, orvosirendelő karnyújtásnyira elérhető. Ez az otthon remek választás lehet családoknak vagy akár vállalkozásra is. Ha érdeklődsz az ingatlan iránt, keress bizalommal! Nézzük meg együtt! Legújabb szolgáltatásként ajánlom minden kedves ügyfelem részére az OTP Bank által közvetített Babaváró, CSOK PLUSZ, Otthon Start Hitelprogram vagy egyéb kölcsönök intézését. Az OTP Ingatlanpont kedvezményes pénzügyi konstrukciókkal áll ügyfelei rendelkezésére! VIP-szolgáltatást nyújtunk az OTP-hiteltermékek ügyintézésében. Jogi és pénzügyi segítséget nyújtanak szakértőink, hogy az adásvétel folyamata gördülékeny legyen. Amennyiben a vételár a kérdés, és úgy gondolja még nincs meg az összeg a leendő új otthonra? Lehet, hogy még is rendelkezésére áll a vételár csak még Ön nem is tudja? Tisztában van valóban az anyagi lehetőségeivel? Az áthidaló megoldásokkal? Esetleg csak az az akadály, hogy nem adta el még a saját ingatlanját? Nem gond, a tulajdonosaink, eladóink szívesen megvárják Önt, segítünk a gyors értékesítésben is. Ne maradjon le a vételről, ha már megtalálta a megfelelő új otthont! Szolgáltatásunk ingyenes, kizárólag sikeres értékesítés esetén van megbízási díj fizetési kötelezettség. A vevők is nálunk vannak és lehet az Ön ingatlanjára várnak?! Tudjon meg többet, hívjon bizalommal! Eladó ingatlanja van? Nincs vevője? Hívjon segítek az értékesítésben! Kedvező hitelajánlatokkal (BABAVÁRÓ hitel, piaci hitel, és szabadfelhasználású hitel) várjuk jelentkezését. Számos konstrukció közül választhatnak. Irodáink Szentes, Petőfi utca 12. (a buszmegálló felől) és Csongrád, Fő utca 54. szám alatt várja a személyes érdeklődőket. ***VÁLASSZUK KI EGYÜTT AZ ÖNNEK LEGMEGFELELŐBB AJÁNLATOT! BANKI SORBAN ÁLLÁS NÉLKÜL! ***

Hirdetés feltöltve: 2025. 10. 27. Utoljára módosítva: 2025. 10. 27.

3 szobás családi házak ára Szentesen

Ebből az összehasonlításból megtudhatod, hogyan viszonyul a lakás ára a környékbeli családi házak átlagos árához. Ez nem azt jelenti, hogy ennyivel olcsóbb vagy drágább, mint amennyit a lakás ér, hanem hogy ennyivel tér el a környékbeli átlagtól.

Ennek a m² ára
Szentes m² ár
331 e Ft
307 e Ft -8%
Ennek az ára
Szentes átlagár
42.99 M Ft m Ft
39.8 m Ft -8%

Az ingatlan elhelyezkedése

Cím: Szentes

Eladó családi házak a környékről

Eladó családi ház
Eladó családi ház

Szentes

28 M Ft
2 szoba
65 m2
Eladó családi ház
Eladó családi ház

Szentes

28.5 M Ft
2 szoba
76 m2
Eladó családi ház
Eladó családi ház

Szeged, Alsóváros, Szabadság tér

89.9 M Ft
3 + 1 szoba
100 m2
Eladó családi ház
Eladó családi ház

Makó, Királyhegyesi utca

25 M Ft
3 szoba
90 m2
Eladó családi ház
Eladó családi ház

Szentes

23 M Ft
3 szoba
65 m2
Eladó családi ház
Eladó családi ház

Szentes

29.99 M Ft
4 szoba
112 m2
Eladó családi ház
Eladó családi ház

Szeged

149.9 M Ft
10 szoba
310 m2
Eladó családi ház
Eladó családi ház

Szentes

64 M Ft
5 + 2 szoba
218 m2
Eladó családi ház
Eladó családi ház

Szentes

23.5 M Ft
3 szoba
130 m2
Eladó családi ház
Eladó családi ház

Szeged

220 M Ft
12 + 2 szoba
760 m2
Eladó családi ház
Eladó családi ház

Szeged

225 M Ft
5 szoba
203 m2
Eladó családi ház
Eladó családi ház

Szeged

259 M Ft
6 szoba
314 m2
Eladó családi ház
Eladó családi ház

Szentes

67 M Ft
6 szoba
173 m2
Eladó családi ház
Eladó családi ház

Szentes

43 M Ft
6 szoba
225 m2
Eladó családi ház
Eladó családi ház

Röszke

15.9 M Ft
3 szoba
80 m2
Eladó családi ház
Eladó családi ház

Szentes

58 M Ft
4 szoba
147 m2
Eladó családi ház
Eladó családi ház

Szentes

50 M Ft
4 szoba
156 m2
Eladó családi ház
Eladó családi ház

Szentes

20.5 M Ft
3 szoba
80 m2
Eladó családi ház
Eladó családi ház

Szentes

29.9 M Ft
3 + 1 szoba
95 m2
Eladó családi ház
Eladó családi ház

Hódmezővásárhely, Kishomok, Új-Kishomok

60 M Ft
3 szoba
100 m2
Eladó családi ház
Eladó családi ház

Szeged

79.9 M Ft
5 szoba
135 m2
Eladó családi ház
Eladó családi ház

Makó, Ráday 9/b

42 M Ft
1 szoba
150 m2
Eladó családi ház
Eladó családi ház

Szentes

25 M Ft
4 szoba
123 m2
Eladó családi ház
Eladó családi ház

Szentes

27 M Ft
3 szoba
140 m2

Falusi CSOK ingatlanok

Eladó családi ház
Eladó családi ház

Emőd

31.99 M Ft
2 szoba
75 m2
Eladó családi ház
Eladó családi ház

Rém

10.5 M Ft
3 szoba
105 m2
Eladó családi ház
Eladó családi ház

Tápióbicske

12.5 M Ft
2 szoba
51 m2
Eladó családi ház
Eladó családi ház

Fonyód

124.9 M Ft
4 szoba
173 m2
Eladó családi ház
Eladó családi ház

Kaposgyarmat

695 M Ft
6 szoba
610 m2
Eladó családi ház
Eladó családi ház

Darnózseli

79.9 M Ft
4 szoba
104 m2
Eladó családi ház
Eladó családi ház

Császártöltés, Kossuth utca 155

9.38 M Ft
1 + 1 szoba
119 m2
Eladó családi ház
Eladó családi ház

Kuncsorba, Kölcsey

14.5 M Ft
3 + 1 szoba
108 m2