Eladó családi ház
Székesfehérvár

+ 4 kép 1/7
93 900 000 Ft93.9 M Ft 998 936 Ft/m2
4 szoba
94 m2
építés éve:2026

Részletes adatok

Telekméret: 470 m2
Fűtés: Egyéb
Energetikai besorolás: Nem adta meg a hirdető

Az OTP Bank lakáshitel ajánlataFizetett hirdetés

+36 70 389
Horgos Tamás
City & Home ingatlan

Érdekel az OTP Bank kedvezményes lakáshitel ajánlata? *

* A kérdésre „Igen” válasz bejelölése esetén, az „Üzenet küldése” gombra kattintva kijelentem, hogy az OTP Bank Nyrt. Adatkezelési tájékoztatójának tartalmát megismertem és tudomásul vettem.

Eladó családi ház leírása

Székesfehérvár kedvelt kertvárosi övezetében Maroshegyen kínáljuk ezt az újépítésű, átgondolt beosztású, rezsibarát családi házat.
A 94,35 m²-es alapterület optimális méretű tereket ad egy 3 hálószobás családi otthonhoz, külön konyha-étkezővel és tágas nappalival.
A ház erőssége a vastag hőszigetelés, a minden helyiségben kiépített padlófűtés, valamint a H-tarifás klíma, így a mindennapi komfort és az alacsony fenntartás kéz a kézben jár.

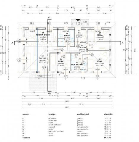
Elrendezés az alaprajz szerint:
– Előszoba – 3,99 m² (gres)
– Közlekedő – 7,43 m² (gres)
– Fürdő – 7,46 m² (gres) – kád + zuhanyfülke, WC a fürdőben
– Konyha-étkező – 15,80 m² (gres) – ablakos, jól bútorozható
– Nappali – 18,32 m² (lam. parketta) – kertkapcsolat a nyugati terasz felé
– Hálószoba – 10,20 m² (lam. parketta)
– Hálószoba – 12,42 m² (lam. parketta)
– Hálószoba – 12,42 m² (lam. parketta)
– Háztartási helyiség – 6,31 m² (gres) – mosógép, gépészet, tároló
Összesen: 94,35 m²
(Terasz: nyugati fekvés, 8,0 × 3,95 m = 31,6 m², teljes szélességű pergolával)

Műszaki tartalom:
– Alapozás: kútalap, monolit vasbeton lábazat, GV4 bitumenes talajpára-szigetelés
– Falazat: Porotherm/Leier 30 NF főfalak, Leier 10 NF válaszfalak
– Homlokzat: 15 cm EPS, lábazaton 13 cm XPS, 1,5 mm kapart vakolat (I. színkód)
– Födém/álmennyezet: fémvázas gipszkarton, 30 cm fújt szálas szigetelés
– Tető: kezelt fa szerkezet, Terrán beton cserépfedés (25–35°), padlástér deszkázva
– Gépészet: Ariston EVO 24 kW kondenzációs kombi gázkazán; padlófűtés minden helyiségben; 5,5 kW H-tarifás split klíma
– Elektromos: réz vezeték, 32 A; Schneider kapcsolók/dugaljak; kültéren sarkonként mozgásérzékelős lámpakiállás
– Víz/csatorna: KPE gerinc + épületen belül ötrétegű cső; KG csatorna az utcai hálózatra
– Szaniterek (keret): Ravak kád (70 000 Ft), előregyártott zuhanykabin épített tálcával (78 000 Ft), Mofém csaptelepek (3× 25 500 Ft), LIV falsík alatti tartályok
– Burkolatok (keret): gres 5 200 Ft/m²; csempe 5 000 Ft/m² (vizes helyiségekben 2,1 m-ig); laminált 4 000 Ft/m²
– Felületképzés: 2× glett, 2× fehér diszperzió

Kültér:
Térkövezett autóbeálló (kb. 3 m széles sáv az épület mellett) és térköves járda a bejáratig
Durva tereprendezés elkészült; füvesítés és növénytelepítés igény szerint

Alapterület: 94,35 m² • Elrendezés: nappali + 3 hálószoba • Nagy, nyugati terasz pergolával (31,6 m²)

Kiemelt előnyök:
Masszív szerkezet, 15 cm EPS + 13 cm XPS, 30 cm födémszigetelés
Padlófűtés minden helyiségben + H-tarifás 5,5 kW split klíma
VEKA 3 rétegű nyílászárók (U≈0,7), redőny + szúnyogháló
31,6 m² nyugati terasz teljes szélességű pergolával – naplementés kertkapcsolat
Térkövezett autóbeálló és járda a telken belül
Márkás szaniterek (Ravak, Mofém), megbízható gépészet (Ariston EVO 24 kW

Kapcsolat: Érdeklődj üzenetben vagy telefonon, és egyeztess személyes megtekintést!
***City & Home Ingatlan Iroda***
8000 Székesfehérvár
+36 70 389 1111
www.chingatlan.hu
info@chingatlan.hu

Teljes körű ügyintézés szívvel-lélekkel:
– Díjmentes ingatlanérték-meghatározás
– Személyre szabott hiteltanácsadás
– Ügyvédi és jogi háttér biztosítva

V9766

Hirdetés feltöltve: 2025. 10. 23. Utoljára módosítva: 2025. 10. 23.

4 szobás családi házak ára Székesfehérvárott

Ebből az összehasonlításból megtudhatod, hogyan viszonyul a lakás ára a környékbeli családi házak átlagos árához. Ez nem azt jelenti, hogy ennyivel olcsóbb vagy drágább, mint amennyit a lakás ér, hanem hogy ennyivel tér el a környékbeli átlagtól.

Ennek a m² ára
Székesfehérvár m² ár
999 e Ft
836 e Ft -19%
Ennek az ára
Székesfehérvár átlagár
93.9 M Ft m Ft
106 m Ft 11%

Az ingatlan elhelyezkedése

Cím: Székesfehérvár

Eladó családi házak a környékről

Eladó családi ház
Eladó családi ház

Pusztavám

22.9 M Ft
3 szoba
103 m2
Eladó családi ház
Eladó családi ház

Székesfehérvár

64.5 M Ft
3 szoba
113 m2
Eladó családi ház
Eladó családi ház

Dunaújváros, Óváros utca

79.9 M Ft
5 szoba
190 m2
Eladó családi ház
Eladó családi ház

Bicske

80 M Ft
6 szoba
350 m2
Eladó családi ház
Eladó családi ház

Lepsény, Róka sétány

64.9 M Ft
5 + 1 szoba
203 m2
Eladó családi ház
Eladó családi ház

Székesfehérvár

149 M Ft
5 szoba
151 m2
Eladó családi ház
Eladó családi ház

Székesfehérvár

119.9 M Ft
5 szoba
135 m2
Eladó családi ház
Eladó családi ház

Székesfehérvár

69.9 M Ft
3 szoba
95 m2
Eladó családi ház
Eladó családi ház

Székesfehérvár

64.9 M Ft
4 szoba
81 m2
Eladó családi ház
Eladó családi ház

Bakonycsernye

39 M Ft
3 szoba
350 m2
Eladó családi ház
Eladó családi ház

Velence, Körmös utca

365 M Ft
8 szoba
630 m2
Eladó családi ház
Eladó családi ház

Dunaújváros, Petőfi Sándor utca 54

44 M Ft
3 szoba
70 m2
Eladó családi ház
Eladó családi ház

Mezőfalva

48 M Ft
3 + 2 szoba
133 m2
Eladó családi ház
Eladó családi ház

Székesfehérvár

64.9 M Ft
5 szoba
144 m2
Eladó családi ház
Eladó családi ház

Sárbogárd, Tinódy utca

19.9 M Ft
3 szoba
75 m2
Eladó családi ház
Eladó családi ház

Székesfehérvár

120 M Ft
6 szoba
173 m2
Eladó családi ház
Eladó családi ház

Székesfehérvár, Belváros

60 M Ft
2 szoba
100 m2
Eladó családi ház
Eladó családi ház

Székesfehérvár

64.9 M Ft
4 szoba
81 m2
Eladó családi ház
Eladó családi ház

Székesfehérvár

64.9 M Ft
4 szoba
81 m2
Eladó családi ház
Eladó családi ház

Székesfehérvár

59 M Ft
3 szoba
100 m2
Eladó családi ház
Eladó családi ház

Pusztaszabolcs

143.9 M Ft
4 szoba
149 m2
Eladó családi ház
Eladó családi ház

Székesfehérvár

89.99 M Ft
1836 m²
559 m2
Eladó családi ház
Eladó családi ház

Székesfehérvár

114.9 M Ft
5 szoba
229 m2
Eladó családi ház
Eladó családi ház

Székesfehérvár

59 M Ft
3 szoba
100 m2

Falusi CSOK ingatlanok

Eladó családi ház
Eladó családi ház

Németkér

149.9 M Ft
2 szoba
540 m2
Eladó családi ház
Eladó családi ház

Nagybaracska

35 M Ft
3 szoba
110 m2
Eladó családi ház
Eladó családi ház

Pannonhalma

169.9 M Ft
5 szoba
200 m2
Eladó családi ház
Eladó családi ház

Szilvágy

49.99 M Ft
3 szoba
90 m2
Eladó családi ház
Eladó családi ház

Perkáta

62.4 M Ft
5 szoba
120 m2
Eladó családi ház
Eladó családi ház

Újszilvás

9.5 M Ft
3 szoba
57 m2
Eladó családi ház
Eladó családi ház

Kaposgyarmat

5.9 M Ft
1 szoba
40 m2
Eladó családi ház
Eladó családi ház

Tápióság

58 M Ft
4 szoba
92 m2