Aerogate Homes

Eladó családi ház
Szeged

+ 14 kép 1/17
178 000 000 Ft178 M Ft 941 799 Ft/m2
4 szoba
189 m²
építés éve:2026

Részletes adatok

Telekméret: 413 m2
Fűtés: Egyéb
Energetikai besorolás: Nem adta meg a hirdető

Az OTP Bank lakáshitel ajánlataFizetett hirdetés

+36 70 455
Szlovák Ibolya
Csongrád OTP Ingatlanpont Iroda

Érdekel az OTP Bank kedvezményes lakáshitel ajánlata? *

* A kérdésre „Igen” válasz bejelölése esetén, az „Üzenet küldése” gombra kattintva kijelentem, hogy az OTP Bank Nyrt. Adatkezelési tájékoztatójának tartalmát megismertem és tudomásul vettem.

Eladó családi ház leírása

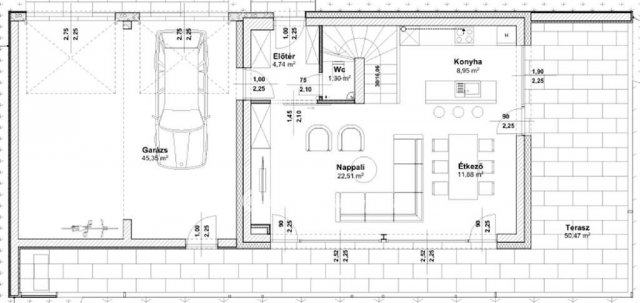
Szeged, Újszeged egyik legjobb utcájának legcsendesebb részén - a Fűvészkert és a Tisza szomszédságában - eladó egy 189 m2 alapterületű, 4 szobás, Török Csongor által tervezett, kulcsrakész családi ház, 2026-os átadással. Az épületben amerikai konyhás nappali + 3 szoba + 2 fürdőszoba + garázs + terasz is található. A rendkívűl kedvező hőszigetelési paraméterekkel rendelkező házban az otthon melegét hőszivattyús fűtés biztosítja. Ajánlom a könnyen megközelíthető területet olyan családok részére, akik Újszegeden, természetközeli miliőben érzik jól magukat és a centrumhoz közel, de a város zajától mentesen szeretnék élvezni a mindennapokat. További információért hívjon bizalommal akár hétvégén is! Megtekintésre telefonos egyeztetés alapján van lehetőség. CSOK és kedvezményes kamatozású lakásvásárlási és felújítási hitelek elérhetőek az OTP hátterével, irodánkban.
Érdeklődni: Szlovák Ibolya +36704550993

Referencia szám: M325201-ZE

Hirdetés feltöltve: 2026. 04. 13.

4 szobás családi házak ára Szegeden

Ebből az összehasonlításból megtudhatod, hogyan viszonyul a lakás ára a környékbeli családi házak átlagos árához. Ez nem azt jelenti, hogy ennyivel olcsóbb vagy drágább, mint amennyit a lakás ér, hanem hogy ennyivel tér el a környékbeli átlagtól.

Ennek a m² ára
Szeged m² ár
942 e Ft
906 e Ft -4%
Ennek az ára
Szeged átlagár
178 M Ft m Ft
111.7 m Ft -59%

Az ingatlan elhelyezkedése

Cím: Szeged

Eladó családi házak a környékről

Szeged
Eladó családi ház

Szeged

198.9 M Ft
4 + 2 szoba
175 m²
Szeged
Eladó családi ház

Szeged

37.425 M Ft
3 szoba
75 m²
Szeged
Eladó családi ház

Szeged

49 M Ft
4 szoba
98 m²
Szeged
Eladó családi ház

Szeged

99.99 M Ft
6 szoba
217 m²
Szeged
Eladó családi ház

Szeged

199.8 M Ft
5 szoba
140 m²
Szeged
Eladó családi ház

Szeged

109 M Ft
2 szoba
980 m²
Tiszasziget
Eladó családi ház

Tiszasziget

49.9 M Ft
4 szoba
160 m²
Szeged
Eladó családi ház

Szeged

160 M Ft
5 szoba
187 m²
Szeged
Eladó családi ház

Szeged

125 M Ft
4 szoba
106 m²
Szeged
Eladó családi ház

Szeged

19.9 M Ft
2 szoba
35 m²
Szeged
Eladó családi ház

Szeged

199.8 M Ft
5 szoba
140 m²
Szeged
Eladó családi ház

Szeged

37.425 M Ft
3 szoba
75 m²
Szeged
Eladó családi ház

Szeged

15.4 M Ft
31 m²
Szeged, Alsóváros, Szabadság tér
Eladó családi ház

Szeged

89.9 M Ft
3 + 1 szoba
100 m²
Szeged
Eladó családi ház

Szeged

225 M Ft
5 szoba
203 m²
Szeged
Eladó családi ház

Szeged

214 M Ft
5 szoba
203 m²
Szeged
Eladó családi ház

Szeged

15.4 M Ft
31 m²
Makó, Ráday 9/b
Eladó családi ház

Makó

42 M Ft
1 szoba
150 m²
Szeged
Eladó családi ház

Szeged

154.99 M Ft
4 szoba
145 m²
Hódmezővásárhely, Kishomok, Új-Kishomok
Eladó családi ház

Hódmezővásárhely

69 M Ft
3 szoba
100 m²
Röszke
Eladó családi ház

Röszke

75 M Ft
4 szoba
95 m²
Szeged
Eladó családi ház

Szeged

115 M Ft
7 szoba
196 m²
Szeged, Újszeged, Radnóti utca
Eladó családi ház

Szeged

329.9 M Ft
12 + 2 szoba
619 m²
Szeged
Eladó családi ház

Szeged

214 M Ft
5 szoba
203 m²

Falusi CSOK ingatlanok

Bogács
Eladó családi ház

Bogács

64.95 M Ft
7 szoba
125 m²
Olaszfalu, Felsőpere
Eladó családi ház

Olaszfalu

130 M Ft
11 szoba
500 m²
Kenyeri
Eladó családi ház

Kenyeri

39.9 M Ft
3 szoba
94 m²
Sumony
Eladó családi ház

Sumony

19 M Ft
4 szoba
120 m²
Bag
Eladó családi ház

Bag

110 M Ft
5 szoba
320 m²
Bőny
Eladó családi ház

Bőny

69.9 M Ft
4 szoba
91 m²
Balatonszemes
Eladó téglalakás

Balatonszemes

119.9 M Ft
2 szoba
81 m²
Érpatak
Eladó családi ház

Érpatak

35 M Ft
4 szoba
160 m²