NapForrás 20 - Buda

Eladó családi ház
Szeged

+ 14 kép 1/17
178 000 000 Ft178 M Ft 941 799 Ft/m2
4 szoba
189 m²
építés éve:2026

Részletes adatok

Telekméret: 413 m2
Fűtés: Egyéb
Energetikai besorolás: A++

Az OTP Bank lakáshitel ajánlataFizetett hirdetés

+36 30 628
Kádár Zoltán László
Szeged Széchenyi tér 6 - OTP Ingatlanpont Iroda

Érdekel az OTP Bank kedvezményes lakáshitel ajánlata? *

* A kérdésre „Igen” válasz bejelölése esetén, az „Üzenet küldése” gombra kattintva kijelentem, hogy az OTP Bank Nyrt. Adatkezelési tájékoztatójának tartalmát megismertem és tudomásul vettem.

Eladó családi ház leírása

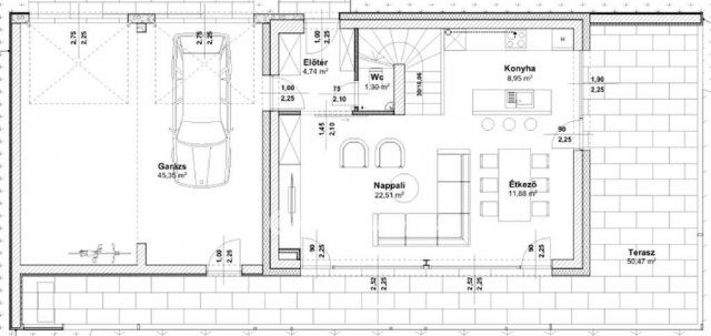
Szeged, Újszeged egyik legjobb utcájának legcsendesebb részén - a Fűvészkert és a Tisza szomszédságában - eladó egy 189 m2 alapterületű, 4 szobás, Török Csongor által tervezett, kulcsrakész családi ház, 2026-os átadással. Az épületben amerikai konyhás nappali + 3 szoba + 2 fürdőszoba + garázs + terasz is található. A rendkívűl kedvező hőszigetelési paraméterekkel rendelkező házban az otthon melegét hőszivattyús fűtés biztosítja. Ajánlom a könnyen megközelíthető területet olyan családok részére, akik Újszegeden, természetközeli miliőben érzik jól magukat és a centrumhoz közel, de a város zajától mentesen szeretnék élvezni a mindennapokat. További információért hívjon bizalommal akár hétvégén is! Megtekintésre telefonos egyeztetés alapján van lehetőség. CSOK és kedvezményes kamatozású lakásvásárlási és felújítási hitelek elérhetőek az OTP hátterével, irodánkban.

Hirdetés feltöltve: 2026. 03. 20. Utoljára módosítva: 2026. 03. 20.

4 szobás családi házak ára Szegeden

Ebből az összehasonlításból megtudhatod, hogyan viszonyul a lakás ára a környékbeli családi házak átlagos árához. Ez nem azt jelenti, hogy ennyivel olcsóbb vagy drágább, mint amennyit a lakás ér, hanem hogy ennyivel tér el a környékbeli átlagtól.

Ennek a m² ára
Szeged m² ár
942 e Ft
861 e Ft -9%
Ennek az ára
Szeged átlagár
178 M Ft m Ft
104.7 m Ft -70%

Az ingatlan elhelyezkedése

Cím: Szeged

Eladó családi házak a környékről

Szeged
Eladó családi ház

Szeged

60 M Ft
4 szoba
120 m²
Szeged
Eladó családi ház

Szeged

198.9 M Ft
4 + 2 szoba
175 m²
Szeged
Eladó családi ház

Szeged

125 M Ft
4 szoba
106 m²
Szeged
Eladó családi ház

Szeged

37.425 M Ft
3 szoba
75 m²
Szeged
Eladó családi ház

Szeged

12 M Ft
17 m²
Szeged
Eladó családi ház

Szeged

60 M Ft
4 szoba
120 m²
Makó
Eladó családi ház

Makó

87.5 M Ft
6 + 1 szoba
300 m²
Hódmezővásárhely, Kishomok, Új-Kishomok
Eladó családi ház

Hódmezővásárhely

69 M Ft
3 szoba
100 m²
Szeged
Eladó családi ház

Szeged

125 M Ft
4 szoba
106 m²
Szeged
Eladó családi ház

Szeged

49 M Ft
4 szoba
98 m²
Szeged
Eladó családi ház

Szeged

54.89 M Ft
3 szoba
110 m²
Szeged
Eladó családi ház

Szeged

198.9 M Ft
4 + 2 szoba
175 m²
Szeged, Újszeged, Radnóti utca
Eladó családi ház

Szeged

329.9 M Ft
12 + 2 szoba
619 m²
Szeged
Eladó családi ház

Szeged

19.9 M Ft
2 szoba
35 m²
Szeged
Eladó családi ház

Szeged

220 M Ft
12 + 2 szoba
760 m²
Szeged
Eladó családi ház

Szeged

149.9 M Ft
10 szoba
310 m²
Mórahalom
Eladó családi ház

Mórahalom

63 M Ft
3 szoba
94 m²
Szeged
Eladó családi ház

Szeged

115 M Ft
7 szoba
196 m²
Röszke
Eladó családi ház

Röszke

15.9 M Ft
3 szoba
80 m²
Szeged
Eladó családi ház

Szeged

160 M Ft
5 szoba
187 m²
Szeged
Eladó családi ház

Szeged

149.9 M Ft
10 szoba
310 m²
Szeged
Eladó családi ház

Szeged

214 M Ft
5 szoba
203 m²
Szeged, Újszeged, Radnóti utca
Eladó családi ház

Szeged

329.9 M Ft
12 + 2 szoba
619 m²
Szeged
Eladó családi ház

Szeged

154.99 M Ft
4 szoba
145 m²

Falusi CSOK ingatlanok

Aranyosgadány
Eladó családi ház

Aranyosgadány

24.9 M Ft
2 szoba
70 m²
Balatonszemes
Eladó téglalakás

Balatonszemes

123.3 M Ft
2 szoba
70 m²
Balatonszemes
Eladó téglalakás

Balatonszemes

125.2 M Ft
2 szoba
50 m²
Tápióbicske
Eladó családi ház

Tápióbicske

14.9 M Ft
2 szoba
51 m²
Nyáregyháza
Eladó családi ház

Nyáregyháza

114.99 M Ft
7 szoba
267 m²
Balatonendréd
Eladó családi ház

Balatonendréd

52 M Ft
4 szoba
102 m²
Szigetcsép
Eladó családi ház

Szigetcsép

110 M Ft
3 szoba
137 m²
Somogyhárságy
Eladó családi ház

Somogyhárságy

108.75 M Ft
4 szoba
330 m²