Kedves Felhasználónk! Rendszerfrissítés miatt az oldalunk 2026. február 9-én 12 órától várhatóan 20 óráig nem lesz elérhető. Köszönjük megértésed!
Avico Greentop

Eladó családi ház
Szeged

+ 9 kép 1/12
289 000 000 Ft289 M Ft 850 000 Ft/m2
10 + 1 szoba
340 m2

Részletes adatok

Telekméret: 923 m2
Fűtés: Gázkazán
Parkolás: Garázs, Kocsibeálló
Közmű: Víz, Gáz, Villany, Csatorna
Energetikai besorolás: Nem adta meg a hirdető

Az OTP Bank lakáshitel ajánlataFizetett hirdetés

+36 30 346
Földvári Anna Ingatlan
referens

Érdekel az OTP Bank kedvezményes lakáshitel ajánlata? *

* A kérdésre „Igen” válasz bejelölése esetén, az „Üzenet küldése” gombra kattintva kijelentem, hogy az OTP Bank Nyrt. Adatkezelési tájékoztatójának tartalmát megismertem és tudomásul vettem.

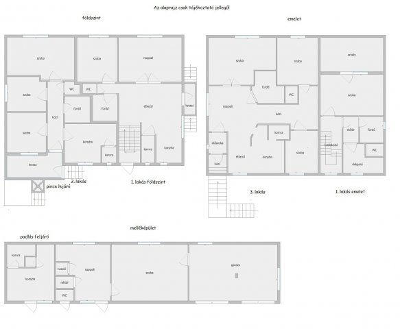
Eladó családi ház leírása

Szeged, Petőfitelep csendes és napfényes részén, nem is oly messze a Tiszavirág sportuszodától nagy családoknak, összeköltözőknek tökéletes, több lakrészből álló családi ház eladó!
A 923 m2-es telken elhelyezkedő ingatlan 4 külön bejáratú apartmanból áll.

Elosztását tekintve:

1-es "lakás":
- 104 m2, két szintes,
- nappali +2 hálószoba, dolgozószoba,
- konyha, étkező, kamra,
- 2 fürdőszoba és 2 WC,
- az emeleten egy 13,66 m2-es terasz alkotja.

2-es "lakás":
- 68,45 m2, földszinti,
- 3 hálószoba,
- konyha, kamra,
- fürdőszoba és külön WC,
- földszinti 8,6 m2-es terasz alkotja.

3. "lakás":
- 87/78,62 m2, emeleti,
- amerikai konyhás nappali, kamra,
- 3 hálószoba,
- fürdőszoba és külön WC alkotja.

A melléképületben kapott helyet a 4. "lakás", 67,95 m2 területű, egy konyha, kamra, nappali, 1 hálószoba, tusoló és WC elosztású.
Szintén a melléképület része a dupla garázs, mely 25 m2-es.

A házban lakó egységenként külön szabályozható a fűtés, külön mérhető a fogyasztás almérőkön keresztül. A fűtés cirkó kazánokkal biztosított, a nyílászárók műanyagok, redőnnyel és szúnyoghálóval felszerelve. Az ingatlan minél gazdaságosabb fenntarthatóságához a 3,5+6 kW-os napelem rendszer és a 8 cm-es szigetelés is hozzájárul. A ház felújítása 2019-ben történt meg.

Az udvarban kapott helyet még egy 14 m2-es, téliesíthető filagória, mely pazar kilátást nyújt a kertben pompázó sokféle növényre. A további gépkocsik tárolásáról pedig a 4 fedett beálló gondoskodik.

Az ingatlan jelenleg vendégházként funkcionál, teljes berendezéssel eladó, akár hosszú távú kiadásra is kiválóan alkalmas, de több generációs családok, baráti társaságok állandó lakhelyeként is megállja a helyét.

Ajánlom mindenkinek, aki karnyújtásnyira a belvárostól egy nyugodt otthonra vagy befektetésre vágyik, ami szinte azonnal az ölébe hullhat!

További információért keressen bizalommal!

Hirdetés feltöltve: 2025. 11. 20. Utoljára módosítva: 2026. 01. 13.

Az ingatlan elhelyezkedése

Cím: Szeged

Eladó családi házak a környékről

Eladó családi ház
Eladó családi ház

Szeged

220 M Ft
12 + 2 szoba
760 m2
Eladó családi ház
Eladó családi ház

Makó

87.5 M Ft
6 + 1 szoba
300 m2
Eladó családi ház
Eladó családi ház

Szeged

220 M Ft
12 + 2 szoba
760 m2
Eladó családi ház
Eladó családi ház

Szeged

195 M Ft
4 szoba
210 m2
Eladó családi ház
Eladó családi ház

Szeged

19.9 M Ft
2 szoba
35 m2
Eladó családi ház
Eladó családi ház

Szeged

49 M Ft
4 szoba
98 m2
Eladó családi ház
Eladó családi ház

Hódmezővásárhely, Kishomok, Új-Kishomok

69 M Ft
3 szoba
100 m2
Eladó családi ház
Eladó családi ház

Szeged

195 M Ft
4 szoba
210 m2
Eladó családi ház
Eladó családi ház

Szeged

60 M Ft
4 szoba
120 m2
Eladó családi ház
Eladó családi ház

Szeged

214 M Ft
5 szoba
203 m2
Eladó családi ház
Eladó családi ház

Szeged

225 M Ft
5 szoba
203 m2
Eladó családi ház
Eladó családi ház

Szeged

198.9 M Ft
4 + 2 szoba
175 m2
Eladó családi ház
Eladó családi ház

Szeged

129.5 M Ft
1 + 3 szoba
122 m2
Eladó családi ház
Eladó családi ház

Szeged

125 M Ft
4 szoba
106 m2
Eladó családi ház
Eladó családi ház

Szeged

125 M Ft
4 szoba
106 m2
Eladó családi ház
Eladó családi ház

Szeged, Újszeged, Radnóti utca

329.9 M Ft
12 + 2 szoba
619 m2
Eladó családi ház
Eladó családi ház

Szeged

37.425 M Ft
3 szoba
75 m2
Eladó családi ház
Eladó családi ház

Röszke

75 M Ft
4 szoba
95 m2
Eladó családi ház
Eladó családi ház

Szeged

149.9 M Ft
10 szoba
310 m2
Eladó családi ház
Eladó családi ház

Szeged

15.24 M Ft
31 m2
Eladó családi ház
Eladó családi ház

Szeged

198.9 M Ft
4 + 2 szoba
175 m2
Eladó családi ház
Eladó családi ház

Szeged

59.8 M Ft
4 szoba
92 m2
Eladó családi ház
Eladó családi ház

Makó, Béke utca

115 M Ft
4 szoba
146 m2
Eladó családi ház
Eladó családi ház

Szeged

12.192 M Ft
17 m2

Falusi CSOK ingatlanok

Eladó családi ház
Eladó családi ház

Bakonycsernye

39 M Ft
3 szoba
350 m2
Eladó családi ház
Eladó családi ház

Bugac

55 M Ft
3 szoba
90 m2
Eladó családi ház
Eladó családi ház

Illocska

15 M Ft
2 szoba
105 m2
Eladó családi ház
Eladó családi ház

Recsk

23 M Ft
3 szoba
98 m2
Eladó családi ház
Eladó családi ház

Kaposgyarmat

695 M Ft
6 szoba
610 m2
Eladó családi ház
Eladó családi ház

Szederkény

107.9 M Ft
6 szoba
224 m2
Eladó családi ház
Eladó családi ház

Gégény, Kossuth

15 M Ft
4 szoba
135 m2
Eladó téglalakás
Eladó téglalakás

Balatonszemes

119.9 M Ft
2 szoba
81 m2